Найти в Дзене
АО «ТАМАК»

Двухэтажный дом с 2 спальнями и детской комнатой 140,61 м²

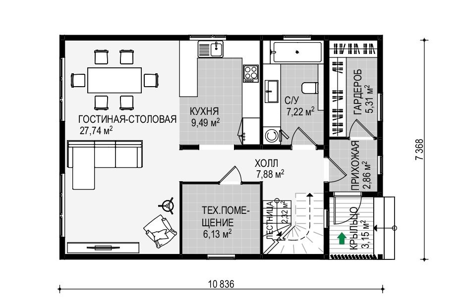
Двухэтажный дом «Турин–131» для семейной пары с ребенком вызывает ощущение монументальности и надежности. И это так. Однако главные его преимущества спрятаны внутри. Речь идет о максимально комфортном жизненном пространстве, которое обеспечено тщательно продуманными планами. На площади в 140,61 квадратных метрах нашлось место всем необходимым функциональным зонам — от гостиной и трех спален до гардеробной и двух полноценных ванных комнат. План 1 этажа: План 2 этажа: Характеристики проекта: Общая площадь: 140,61 м²
Площадь помещений: 130,83 м²
Площадь террас и балконов: 9,78 м²
Общая площадь 1 этажа: 72,1 м²
Общая площадь 2 этажа: 68,95 м²
Спальни, шт.: 3
Санузлы, шт.: 2
Техническое помещение: да
Гардероб: да Ваша оценка данного дома: Мы производим долговечные дома «Тhermomak Haus». Для конструкции дома используются экологичные и прочные монолитные цементно-стружечные плиты плотностью 1250-1400 кг/м³ собственного производства АО «ТАМАК». Каркас дома изготавливается из древесины поставля

Двухэтажный дом «Турин–131» для семейной пары с ребенком вызывает ощущение монументальности и надежности. И это так. Однако главные его преимущества спрятаны внутри. Речь идет о максимально комфортном жизненном пространстве, которое обеспечено тщательно продуманными планами. На площади в 140,61 квадратных метрах нашлось место всем необходимым функциональным зонам — от гостиной и трех спален до гардеробной и двух полноценных ванных комнат.

План 1 этажа:

-2

План 2 этажа:

-3

Характеристики проекта:

Общая площадь: 140,61 м²
Площадь помещений: 130,83 м²
Площадь террас и балконов: 9,78 м²
Общая площадь 1 этажа: 72,1 м²
Общая площадь 2 этажа: 68,95 м²
Спальни, шт.: 3
Санузлы, шт.: 2
Техническое помещение: да
Гардероб: да

Ваша оценка данного дома:

Мы производим долговечные дома «Тhermomak Haus». Для конструкции дома используются экологичные и прочные монолитные цементно-стружечные плиты плотностью 1250-1400 кг/м³ собственного производства АО «ТАМАК». Каркас дома изготавливается из древесины поставляемой из экологически чистых регионов России - с севера европейской части, Урала и Сибири. Пиломатериал проходит строгий входящий контроль, автоматическую калибровку, сортировку и промышленную сушку. В готовых конструкциях пиломатериал не подвергается негативным воздействиям.

Телефон: 8(800)300-89-77

Наш сайт: https://tamak.ru/