Найти в Дзене
ЭТО ВАШ ИНТЕРЬЕР

Посмотрите, как в угрюмой "хрущевке" хозяйка сделала шикарный ремонт (фото До и После вас точно удивят)

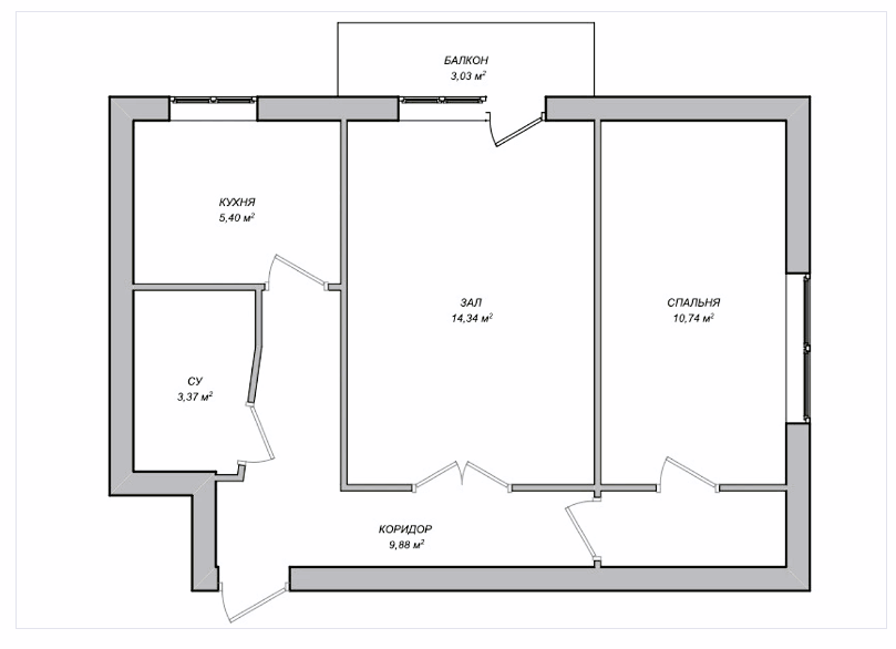
Данная квартира досталась нашей героини в ужасном состоянии, но зато по приемлемой цене. Сама жилплощадь была приобретена не для собственного проживания, а для сдачи квартиры в аренду. Новая владелица является дизайнером, поэтому ужасное состояние "хрущевки" её не особо напугало, и она после завершения сделки сразу принялась за создание дизайн-проекта. Проект Квартира уже имела небольшие изменения в планировке, но их было недостаточно для хозяйки, поэтому ремонт начался с перепланировки. Коридор на кухню убрали и отдали эту часть для увеличения санузла и увеличения площади кухни. Проход на кухню перенесли в гостиную. Кухня-гостиная Весь интерьер квартиры получился светлым, просторным и воздушным. Стены покрасили в классический белый цвет, а на полу использовали инженерную доску, которая досталась хозяйке бесплатно (дело в том, что на одном из проектов хозяйки рабочие снимали старый пол и клали новый - именно этот пол она забрала себе и покрасила лаком). Потолки сделали натяжные. При
Оглавление

Данная квартира досталась нашей героини в ужасном состоянии, но зато по приемлемой цене. Сама жилплощадь была приобретена не для собственного проживания, а для сдачи квартиры в аренду. Новая владелица является дизайнером, поэтому ужасное состояние "хрущевки" её не особо напугало, и она после завершения сделки сразу принялась за создание дизайн-проекта.

Проект

  • Местонахождение: г. Геленджик
  • Площадь квартиры: 43 кв. м
  • Владельцы: женщина-дизайнер (квартира предназначается для сдачи туристам)
  • Бюджет: 1 млн рублей
-2

Квартира уже имела небольшие изменения в планировке, но их было недостаточно для хозяйки, поэтому ремонт начался с перепланировки. Коридор на кухню убрали и отдали эту часть для увеличения санузла и увеличения площади кухни. Проход на кухню перенесли в гостиную.

-3

Кухня-гостиная

Весь интерьер квартиры получился светлым, просторным и воздушным. Стены покрасили в классический белый цвет, а на полу использовали инженерную доску, которая досталась хозяйке бесплатно (дело в том, что на одном из проектов хозяйки рабочие снимали старый пол и клали новый - именно этот пол она забрала себе и покрасила лаком). Потолки сделали натяжные.

При входе в помещение расположилась просторная гостиная. Здесь разместили: винтажное кресло (которое нашли буквально на улице и восстановили), ярко-синий стеллаж (который является ярким акцентом в пространстве), журнальный стол-трансформер (который при необходимости можно сложить), диван-кушетка и телевизионная зона. Большинство мебели - икеевская, но так как на момент ремонта этот бренд уже нас покинул, купили всё это на авито.

Кухню присоединили к гостиной. Так как на кухне есть газ, здесь в скором времени хозяйка планирует установить стеклянную перегородку, которая до сих пор делается на заказ. Для пола выбрали шестиугольную плитку. Гарнитур разместили по двум стенам. Фасады нижнего яруса имитируют деревянную поверхность, а верхние выполнены в классическом белом цвете. На фартуке использовали керамогранит. Так же здесь расположилась обеденная группа со стульями из ротанга.

Спальня

В спальню ведут стеклянные распашные двери. Здесь расположилась двуспальная кровать, а за ней организовали зону гардеробной.

Ванная комната

На полу в санузле уложена та же плитка, которую использовали на кухне. Стены оформили квадратной голубой плиткой. В нише установили душевую, так как от классической ванны хозяйка решила отказаться.

Если вам понравилась статья, то не забудьте поставить лайк и подписаться, чтобы не пропустить новый материал!

Так же пишите в комментариях, что вам понравилось в этом проекте, а что вызывает сомнения.

Если вам интересна тематика дач, загородных домов и сада, то смело заходите на мой второй новый канал)