Найти в Дзене

Вот это европейцы "ГЭ" построили... Лучшая планировка дома на Западе. Почему наши мужики из частного сектора до такого редко доходят

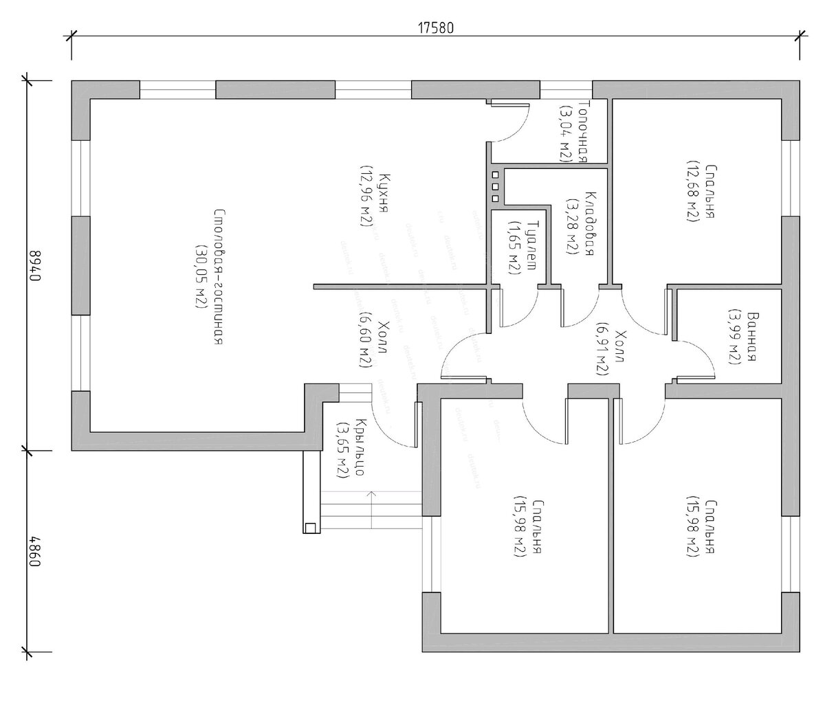
В любом уголке мира у людей свое представление о прекрасном, в том числе о планировке домов и их комфорте. Да что говорить о разных странах, если даже на территории России у каждого народа свое мнение. Ведь кому-то достаточно одного этажа, а кому-то и трех будет мало. Проект Если вы думаете, что победителем стал проект какого-то роскошного дворца, то мы вас огорчим. Это обычный дом, созданный для обычной семьи, просто с необычной планировкой. А если быть конкретнее, о Г-образной формы. Планировка предусматривает наличие всего необходимого для комфортной жизни, разберем на примере с зонированием. Кстати, малое количество мокрых точек убирает необходимость тянуть все коммуникации из одного конца дома в другой. Что хорошего в такой планировке? Вы можете сказать: «ну что хорошего в такой планировке, это все можно расположить и в обычном прямоугольном доме». И это тоже верно. Однако все же есть несколько плюсов: В этом «закуточке» на улице можно сделать приватную зону отдыха, недоступную
Оглавление

В любом уголке мира у людей свое представление о прекрасном, в том числе о планировке домов и их комфорте.

Да что говорить о разных странах, если даже на территории России у каждого народа свое мнение. Ведь кому-то достаточно одного этажа, а кому-то и трех будет мало.

  • Однако сегодня хочется привести в пример проект победителя конкурса Ассоциации ведущих архитекторов и дизайнеров Европы в 2022 году и рассказать, какие у этого проекта есть плюсы и минусы.

Проект

Если вы думаете, что победителем стал проект какого-то роскошного дворца, то мы вас огорчим.

Это обычный дом, созданный для обычной семьи, просто с необычной планировкой. А если быть конкретнее, о Г-образной формы.

Планировка предусматривает наличие всего необходимого для комфортной жизни, разберем на примере с зонированием.

  1. Как видите на проекте, довольно внушительная часть дома отведена под гостиную, столовую и зону кухни.
  2. Еще одна часть помещения отведена под три спальни, а если семья небольшая, то можно сделать или гостевую комнату, или кабинет. При чем, все три довольно просторные.
  3. В центре дома расположены все коммуникации, туалет, можно даже разместить постирочную.

Кстати, малое количество мокрых точек убирает необходимость тянуть все коммуникации из одного конца дома в другой.

-2

Что хорошего в такой планировке?

Вы можете сказать: «ну что хорошего в такой планировке, это все можно расположить и в обычном прямоугольном доме». И это тоже верно. Однако все же есть несколько плюсов:

В этом «закуточке» на улице можно сделать приватную зону отдыха, недоступную для глаз соседей.

Например, это может быть открытая терраса или бассейн, детский уголок или зона барбекю. Кроме того, это зона будет защищать от ветра.

Можно расположить вход, как с внутреннего двора, так и с фронтовой части дома, а также отлично подходит для маленьких участков или участков неправильной формы.

Почему Г-образные дома трудно приживаются в России?

У таких домов есть и свои недостатки, которые могут перевешивать все преимущества. В их числе:

  • Большие тепловые потери в отличие от домов прямоугольной или квадратной формы. Это, в свою очередь, увеличивает расходы на отопление дома.
  • Удорожание строительства. У Г-образных домов площадь внешних стен больше, а значит, при одинаковых площадях с квадратными или прямоугольными домами, Г-образный обойдется на порядок дороже.

Поэтому при всех прочих равных условиях, если вы хотите получить не менее функциональный проект дома, но при этом избежать дополнительных затрат, то можете смело выбирать классическую планировку.

Например, проект «Грата – 149", который вы видите на рисунке выше. Строительная компания «Грата» на рынке с 2014 года. За это время у нас накопились сотни готовых проектов домов с продуманной планировкой, которые мы можем вам показать.

Для понимания порядка цен подготовили для вас форму, заполнив которую, вы увидите ориентировочную стоимость строительства кирпичного дома. При расчете учитывается и наличие земельного участка, и бюджет, и желаемая площадь, и даже необходимость в льготной ипотеке.

Поддержите наш канал лайком и подпиской!