Найти в Дзене
DIVAN.RU

Двушка 67 кв.м: бюджетный ремонт для семьи с ребенком

Яна вместе с мужем за год превратили «бетонную коробку» в новостройке в светлый и спокойный интерьер. Расскажем, как проходил ремонт, и на чем удалось сэкономить. О КВАРТИРЕ
Место: г. Балашиха, Московская обл.
Площадь и тип жилья: двухкомнатная квартира 67 кв.м
Кто здесь живет: семья из трех человек: Яна, ее супруг и дочь Ремонт длился больше года, — рассказывает Яна. — Квартира была без отделки, дизайн-проект продумывали самостоятельно. Многие решения давались с трудом. Оказалось, очень сложно предусмотреть с точностью до сантиметра расположение электроточек, а сделать это надо было уже на этапе чернового ремонта. А еще нам не нравилось выбирать отделочные материалы: от разнообразия начинала кружиться голова. Иногда, спустя 15 минут в магазине, мы просто уезжали, так ничего и не решив. Первым шагом в ремонте было объединение кухни с лоджией — так комната стала просторнее и светлее. Перепланировку узаконили, чтобы исключить возможные неприятности. Кухня После перепланировки площадь кух
Оглавление

Яна вместе с мужем за год превратили «бетонную коробку» в новостройке в светлый и спокойный интерьер. Расскажем, как проходил ремонт, и на чем удалось сэкономить.

Фото из личного архива @y.a_n.a
Фото из личного архива @y.a_n.a

О КВАРТИРЕ
Место:
г. Балашиха, Московская обл.
Площадь и тип жилья: двухкомнатная квартира 67 кв.м
Кто здесь живет: семья из трех человек: Яна, ее супруг и дочь

Ремонт длился больше года, — рассказывает Яна. — Квартира была без отделки, дизайн-проект продумывали самостоятельно. Многие решения давались с трудом. Оказалось, очень сложно предусмотреть с точностью до сантиметра расположение электроточек, а сделать это надо было уже на этапе чернового ремонта. А еще нам не нравилось выбирать отделочные материалы: от разнообразия начинала кружиться голова. Иногда, спустя 15 минут в магазине, мы просто уезжали, так ничего и не решив.

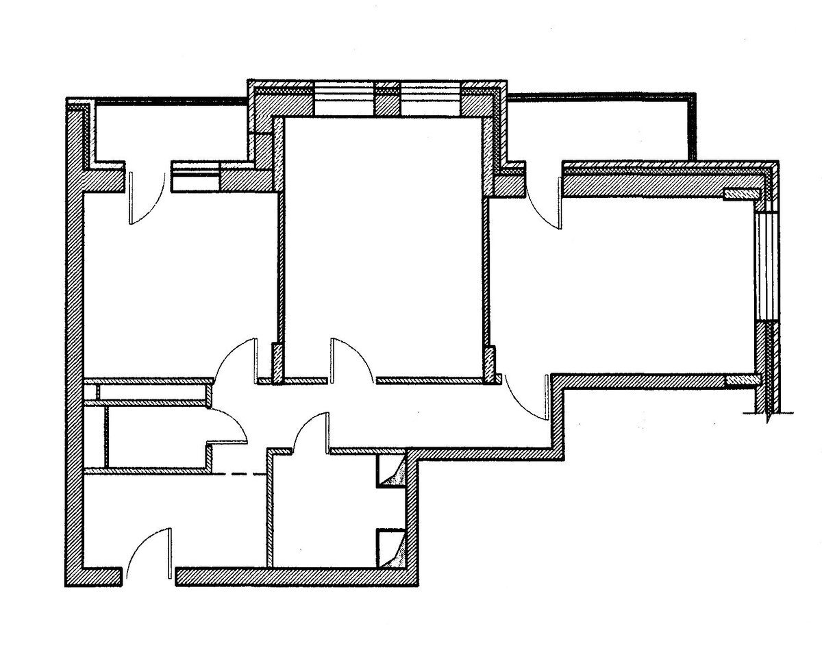
Первым шагом в ремонте было объединение кухни с лоджией — так комната стала просторнее и светлее. Перепланировку узаконили, чтобы исключить возможные неприятности.

Кухня

После перепланировки площадь кухни увеличилась до 16 кв.м. Шкафы кухонного гарнитура выполнены в оливковом и белом оттенках. Столешница под дерево дополняет такую природную палитру фасадов. Духовку решили встроить под плитой, над которой выделили шкаф с вытяжкой, сделав его больше остальных модулей. Нестандартное решение стало главным акцентом на кухне.

Фото из личного архива @y.a_n.a
Фото из личного архива @y.a_n.a

В столовой зоне — классические стол и стулья в белом цвете. Супруги намеренно не стали перегружать помещение диваном: в отдельной детской пока нет необходимости, поэтому одну из комнат удалось выделить под гостиную — диван установили там.

Фото из личного архива @y.a_n.a
Фото из личного архива @y.a_n.a

Гостиная

Спустя несколько месяцев после переезда супруги начали поиски дивана. Рассматривали модели по доступным ценам: основная часть бюджета на ремонт была выделена на черновую отделку. Выбор пал на диван Порту от divan.ru.

Диван идеально подошел в нашу гостиную: угловой, компактный, с широкими твердыми подлокотниками и местом для хранения, — рассказывает Яна. — Цвет обивки отлично вписался, да и соотношение цены/качества порадовало.

В кадре: диван угловой Порту, divan.ru от 32 990₽* >>

Спальня

Изначально в целях экономии мебель в этой комнате была из самой бюджетной серии IKEA. Перед рождением дочери Яна с мужем решили поменять местами спальню и гостиную. Это стало отличным поводом заменить мебель, которая не нравилась. Так что следующей покупкой от divan.ru стала кровать Слипсон — модель с мягким изголовьем.

Фото из личного архива @y.a_n.a
Фото из личного архива @y.a_n.a

В кадре: кровать Слипсон, divan.ru от 33 990₽* >>

-7

▶️ Эту кровать сейчас можно купить с выгодой до 16 000₽! Ищите мебель со скидками до -60% на распродаже divan.ru >>

Затем приобрели кресло Носта в обивке того же цвета, что и кровать, а также прикроватную тумбу. Все детали интерьера смотрятся гармонично — спальня получилась светлой и уютной.

В кадре: кресло Носта, divan.ru от 21 990₽* >>

За три с половиной года жизни в квартире мы меняли многое. Через пару лет планируем обустроить детскую. Меняются наши потребности, и квартира меняется вместе с ними.

Оцените интерьер в комментариях, а если материал понравился — не забудьте поставить лайк 👍

*Цены актуальны на момент публикации статьи