Найти в Дзене

Барнхаус из газобетона

Сегодня мы знакомим вас с домом, который находится на стадии реализации – в настоящее время мы уже занимаемся возведением стен второго этажа.
Этот дом выполнен в популярном стиле барнхаус. Лаконичные линии двускатной кровли без карнизных свесов переходят на стены, а типичную для этого стиля геометрию усложняют эркеры мансардного этажа.
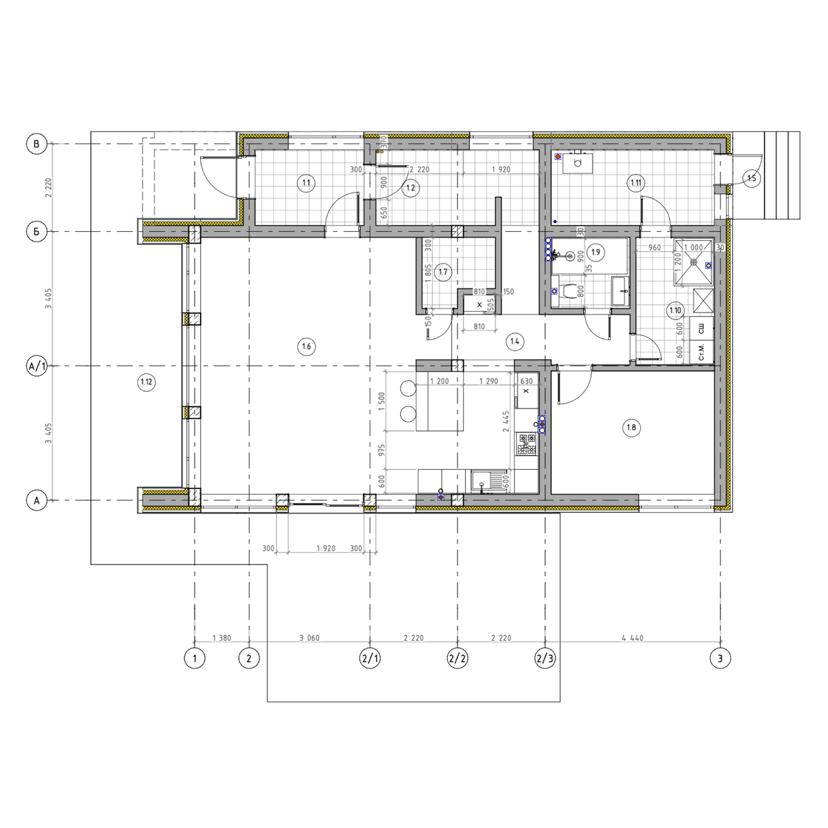
Планировка дома не менее впечатляющая и полностью соответствует его облику. Дом имеет 3 входа и террасу площадью порядка 60 кв. м. Светлая прихожая с большим окном предваряет путь в просторную кухню-гостиную площадью свыше 40 кв. м. Именно отсюда мы и попадаем на живописную «дышащую» террасу.
Помимо гостиной зоны, на первом этаже дома располагается также одна спальня и много технических помещений: котельная, постирочная, кладовая, а также гостевой саунзел, что и закладывает основной функционал этажа.
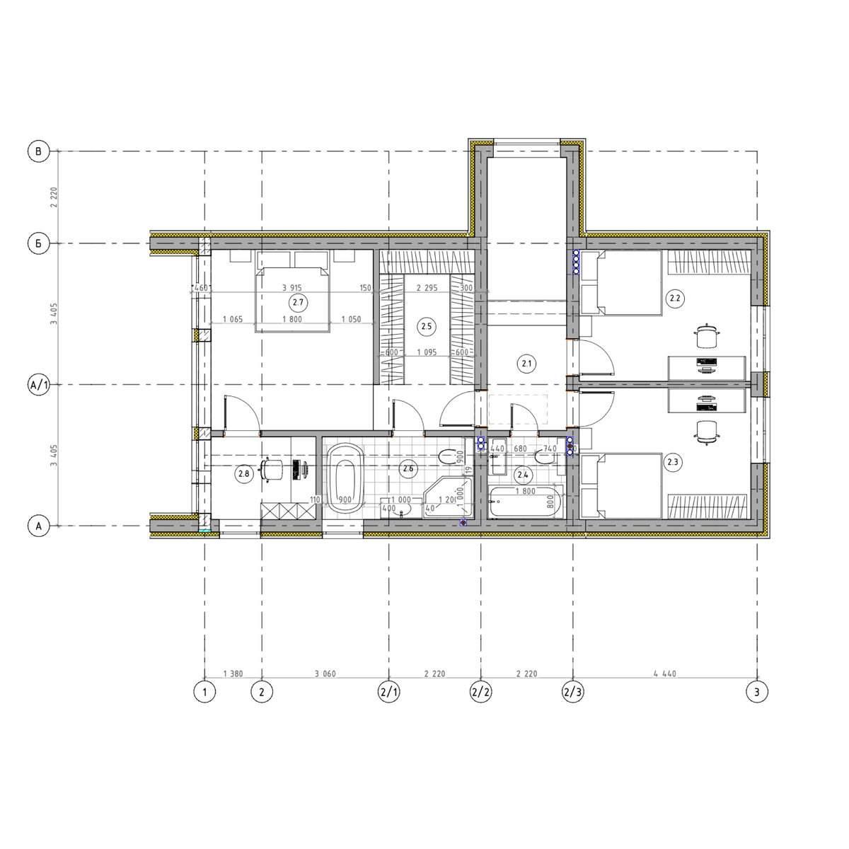
Второй этаж, наоборот, полностью превращен в приватное пространство. Большую часть мансардного этажа занимает мастер-спальня с отдельной ванной, гард

Сегодня мы знакомим вас с домом, который находится на стадии реализации – в настоящее время мы уже занимаемся возведением стен второго этажа.

Этот дом выполнен в популярном стиле барнхаус. Лаконичные линии двускатной кровли без карнизных свесов переходят на стены, а типичную для этого стиля геометрию усложняют эркеры мансардного этажа.

Планировка дома не менее впечатляющая и полностью соответствует его облику. Дом имеет 3 входа и террасу площадью порядка 60 кв. м. Светлая прихожая с большим окном предваряет путь в просторную кухню-гостиную площадью свыше 40 кв. м. Именно отсюда мы и попадаем на живописную «дышащую» террасу.

Помимо гостиной зоны, на первом этаже дома располагается также одна спальня и много технических помещений: котельная, постирочная, кладовая, а также гостевой саунзел, что и закладывает основной функционал этажа.

Второй этаж, наоборот, полностью превращен в приватное пространство. Большую часть мансардного этажа занимает мастер-спальня с отдельной ванной, гардеробной комнатой и  кабинетом. В противоположной стороне мансарды разместились еще 2 спальни и дополнительный санузел с ванной.

Мы уже с нетерпением ждем, когда сможем показать вам первые результаты своей работы. Уверены, даже коробка этого дома будет выглядеть впечатляюще.
Если у вас есть вопросы о проектировании и строительстве домов по индивидуальным проектам, задать их вы можете по номеру +7 (999) 3333-802