Добавить в корзинуПозвонить
Найти в Дзене
Все о ремонте квартир

Красивый яркий интерьер квартиры 150 м2

Заказчики, молодая семейная пара с двумя маленькими детьми, купили сразу две квартиры и решили их объединить, но таким образом, чтобы в будущем, при необходимости, иметь возможность вновь сделать жилье раздельным.
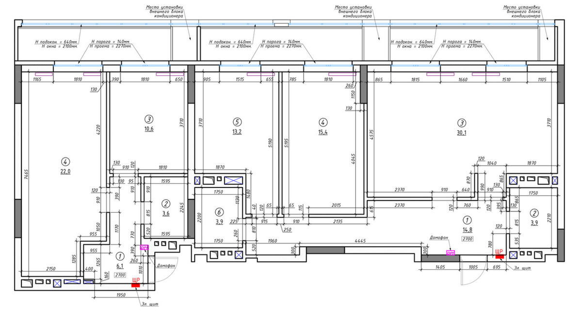
А для того, чтобы осуществить все их задумки, правильно спроектировать планировку и, красиво оформить интерьер, они обратились в студию дизайна "А+Б". Главные условия заказчиков по планировке: выделить две детские комнаты - одну для девочки и одну для сына, спальню родителей, 2-3 санузла, кабинет, постирочную и кухню-гостиную. По стилю и цвету: нравится современный стиль с элементами лофта, яркие насыщенные тона. План квартиры до и после перепланировки и установки мебели После грамотного планирования: все жилые комнаты расположились в светлой стороне, то есть там где есть окна и естественное освещение. В другой стороне оформили хозяйственные помещения: санузлы, постирочную, гардеробную. Глобальной перепланировки не было, все мокрые зоны остались на своих местах, их лишь расш

Заказчики, молодая семейная пара с двумя маленькими детьми, купили сразу две квартиры и решили их объединить, но таким образом, чтобы в будущем, при необходимости, иметь возможность вновь сделать жилье раздельным.
А для того, чтобы осуществить все их задумки, правильно спроектировать планировку и, красиво оформить интерьер, они обратились в студию дизайна "А+Б".

Главные условия заказчиков по планировке:
выделить две детские комнаты - одну для девочки и одну для сына, спальню родителей, 2-3 санузла, кабинет, постирочную и кухню-гостиную.
По стилю и цвету: нравится современный стиль с элементами лофта, яркие насыщенные тона.

План квартиры до и после перепланировки и установки мебели

После грамотного планирования: все жилые комнаты расположились в светлой стороне, то есть там где есть окна и естественное освещение. В другой стороне оформили хозяйственные помещения: санузлы, постирочную, гардеробную.

Глобальной перепланировки не было, все мокрые зоны остались на своих местах, их лишь расширили за счет нежилых помещений.

Так как вся семья любит вечерами за ужином и просмотром фильмов, то естественно, кухне-гостиной выделили большую площадь. Где расположили большую обеденную группу, полноценную кухню, просторную зону отдыха, а для перекусов и подачи блюд сделали полуостров.

Для отделки стен использовали краску в сочетании с обоями, зону ТВ выделили гипсовыми панелями с рельефной фактурой. Обеденную зону оформили в более выраженным стилем лофт (кирпич, штукатурка под бетон). В качестве напольного покрытия использовали кварцвинил, так как этот материал универсален не боится воды и механических повреждений.

Кухня-гостиная

Очень удачное расположение квартиры - 4 лоджии, которые обыграли как самодостаточную комнату с разным функционалом. На лоджии с выходом гостиной оформили небольшой зимний сад, из спальни спортивный уголок, а с выходом из детских место для игр.

Лоджия

Яркая прихожая задает характер и настроение интерьеру всей квартире, за амбарной дверью расположили просторную гардеробную. Недалеко от входа сделали гостевой санузел.

Прихожая

Гостевой санузел.

Дальше из коридора за стеклянной перегородкой находится спальня родителей, где очень интересно декорировали стену за изголовьем кровати - обои с птицами.

Та же тема птиц продолжается и в уютном небольшом кабинете, который специально организовали с выходом из спальни родителей, чтобы там можно было уединиться и побыть в тишине.

Напротив спальни разместили санузел с душевой комнату.

Для расположения детских комнат отдали дальнюю от входа часть квартиры.

Комната девочки - светлый общий фон удачно разбавили яркими акцентами, в виде текстиля, элементов мебели. Изюминкой здесь выступили обои-пано и роспись на стенах.

Комната сына - тоже яркая, эффектная, но оформлена уже в более "мужской" цветовой гамме.

В процессе планирования, удалось выделить отдельные санузлы для детей. Где ярко-желтый цвет заряжает малышей на позитив и прекрасное солнечное настроение.

И просторная постирочная в нейтральной гамме.

-12

В итоге получилась классная яркая квартира с настроением, и неповторимым интерьером!

Спасибо, что заглянули в мою студию! Понравилось ставьте лайки, пишите комментарии! И не забывайте подписываться!