Найти в Дзене
GREY HOUSE

Одноэтажный каркасный дом с 2-мя спальнями

Фотоотчет со стройки каркасного дома. Строим дом по проекту Химос с 2-мя спальнями. С. Михайловское, г.о. Домодедово, Московская обл. Размеры дома - 12х8,5 м + терраса Высота потолка - 2,5 - 3,4м (в коньке) Планировка дома Стандартная планировка Визуализация дома Химос 2 Фотоотчет со стройки Комплектация дома:
- Каркас дома сухой строганный 45х145 мм
- Ветрозащита - JUTAVEK 115
- Пароизоляция - Ютафол Н110+скотч Delta
- Отделка снаружи - Сайдинг Docke Premium, Корабельный брус, цвет Халва
- Утепление - пол и потолок - 200 мм, наружные стены 150 мм Технониколь  Роклайт, перегородки 100 мм
- Отделка внутри - вагонка толщиной 12,5 мм
- Отделка пола - половая доска толщиной 35 мм
- Отделка пола на террасе лиственницей толщиной 28мм
- Кровля - металлочерепица толщиной 0,45мм
- Окна ПВХ Rehau Grazio толщиной 70мм двойной стеклопакет
- Дверь входная - ПВХ Rehau толщиной 70мм
- Водосточная система GrandLine
- Защитная сетка от грызунов Формируем график строительства на 2024 год! Наши преимуще
Оглавление

Фотоотчет со стройки каркасного дома. Строим дом по проекту Химос с 2-мя спальнями. С. Михайловское, г.о. Домодедово, Московская обл.

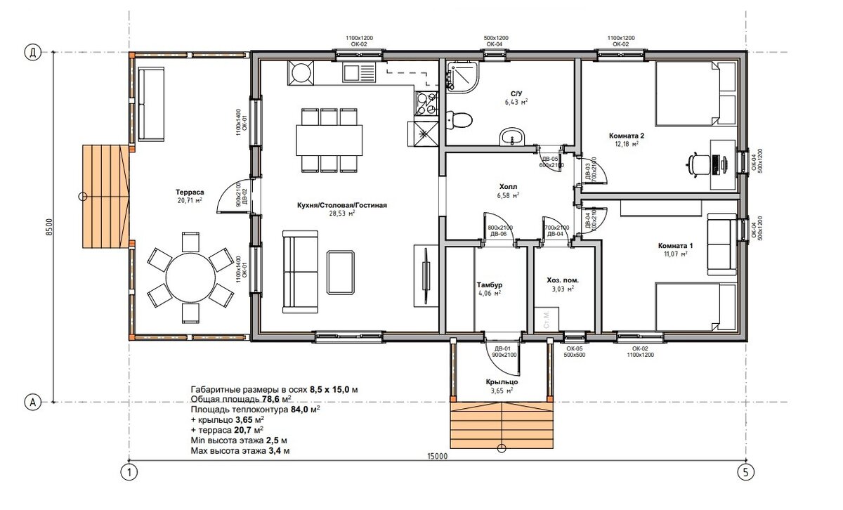
Размеры дома - 12х8,5 м + терраса

Высота потолка - 2,5 - 3,4м (в коньке)

Планировка дома

Стандартная планировка

-2

Визуализация дома Химос 2

Фотоотчет со стройки

Монтаж чернового пола
Монтаж чернового пола
Монтаж защитной сетки для грызунов
Монтаж защитной сетки для грызунов
Монтаж нулевого перекрытия
Монтаж нулевого перекрытия
Строительство каркаса дома
Строительство каркаса дома
Строительство каркаса дома
Строительство каркаса дома
Монтаж стропильной системы
Монтаж стропильной системы
Монтаж обрешетки и контробрешетки
Монтаж обрешетки и контробрешетки
Монтаж ветрозащиты
Монтаж ветрозащиты
Монтаж ветрозащиты
Монтаж ветрозащиты
Утепление пола
Утепление пола
Монтаж пароизоляции
Монтаж пароизоляции
Монтаж кровли
Монтаж кровли
Монтаж снегозадержателей
Монтаж снегозадержателей
Монтаж снегозадержателей и водосточной системы
Монтаж снегозадержателей и водосточной системы
Ограждение террасы
Ограждение террасы

Комплектация дома:
- Каркас дома сухой строганный 45х145 мм
- Ветрозащита -
JUTAVEK 115
- Пароизоляция - Ютафол Н110+скотч
Delta
- Отделка снаружи - Сайдинг Docke Premium, Корабельный брус, цвет Халва
- Утепление - пол и потолок - 200 мм, наружные стены 150 мм
 Технониколь  Роклайт, перегородки 100 мм
- Отделка внутри - вагонка толщиной 12,5 мм
- Отделка пола - половая доска толщиной 35 мм
- Отделка пола на террасе лиственницей толщиной 28мм
- Кровля - металлочерепица толщиной 0,45мм

- Окна
ПВХ Rehau Grazio толщиной 70мм двойной стеклопакет
- Дверь входная -
ПВХ Rehau толщиной 70мм
- Водосточная система
GrandLine
- Защитная сетка от грызунов

Формируем график строительства на 2024 год!

Наши преимущества:

1. Бригады: постоянные, история строительства (фотоотчеты), можно выбрать понравившуюся бригаду, можно посетить строящиеся объекты, почитать отзывы клиентов
2. Документация: детальная смета, чертежи дома в соответствии с нормами, разработанные конструктором
3. Премиальное качество и разумная цена

Внесение любых изменений в проект - бесплатно!

***
Все новости читайте в нашем телеграм-канале

Подписывайтесь на нашу группу Вконтакте

И, конечно же, подписывайтесь на нас в «Дзене»

Базовая цена и комплектация дома - https://grey-house.ru

Телефон: 8-495-504-71-33
What’s App
mail@grey-house.ru
Сайт:
grey-house.ru