Добавить в корзинуПозвонить
Найти в Дзене
Риверхаус

Как ускорить переезд в дом на набережной RIVER HOUSE

Весной Анастасия и Иван купили квартиру в RIVER HOUSE Щелково. Выдающийся дом на набережной активно достраивался и при одном взгляде на него хотелось как можно скорее приблизить долгожданный день новоселья. Как быстрее переехать, сэкономить ресурсы, а еще дать простор творчеству? Решение нашлось достаточно быстро - супруги сразу заказали отделку white box, сделав переезд на три месяца ближе. Расскажем, как это было и в чем преимущества такого варианта. До предчистовой отделки Квартира, которую купили Анастасия и Иван в RIVER HOUSE – трехкомнатная, с балконом, площадью 87,3 кв. м на 12 этаже. Окна выходят на набережную, вид на реку Клязьма завораживает. Изначально квартира покупалась без отделки, со свободной планировкой. Подразумевалось, что жилье нужно максимально адаптировать под запросы всех членов семьи. Расположение на этаже. Квартира подсвечена красным. Так выглядел исходный план квартиры до работы дизайнера. У застройщика «Риверхаус» есть партнерская программа, позволяющая поку
Оглавление


Весной Анастасия и Иван купили квартиру в RIVER HOUSE Щелково. Выдающийся дом на набережной активно достраивался и при одном взгляде на него хотелось как можно скорее приблизить долгожданный день новоселья. Как быстрее переехать, сэкономить ресурсы, а еще дать простор творчеству? Решение нашлось достаточно быстро - супруги сразу заказали отделку white box, сделав переезд на три месяца ближе. Расскажем, как это было и в чем преимущества такого варианта.

До предчистовой отделки

Квартира, которую купили Анастасия и Иван в RIVER HOUSE – трехкомнатная, с балконом, площадью 87,3 кв. м на 12 этаже. Окна выходят на набережную, вид на реку Клязьма завораживает. Изначально квартира покупалась без отделки, со свободной планировкой. Подразумевалось, что жилье нужно максимально адаптировать под запросы всех членов семьи.

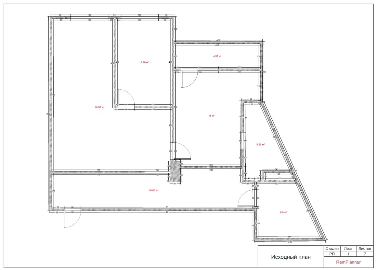
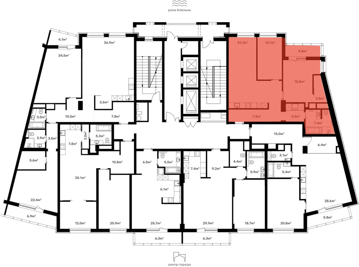
Расположение на этаже. Квартира подсвечена красным.

-2

Так выглядел исходный план квартиры до работы дизайнера.

У застройщика «Риверхаус» есть партнерская программа, позволяющая покупателям на выгодных условиях заказать отделку у надежной строительной компании. Партнерский договор на выполнение ремонтных работ в квартирах ЖК RIVER HOUSE Щелково заключен со «Строймакс» - компанией с десятилетней репутацией. В перечень услуг входят: разработка технического дизайн-проекта, полного дизайн-проекта, предчистовая отделка white box и дизайнерский ремонт «под ключ».

Заказчик может заключить договор как на один-два этапа работ, так на всё сразу. Для владельцев квартир ЖК RIVER HOUSE «Строймакс» предлагает три варианта дизайнерской отделки «под ключ». Покупатель выбирает цветовую гамму и материалы и получает готовую смету.

А в предчистовую отделку (white box) входят: стяжка пола, выравнивание и штукатурка стен, теплоизоляция, прокладка коммуникаций, установка радиаторов отопления, установка межкомнатных перегородок, монтаж электропроводки и другое.

Срок выполнения работ зависит от площади квартиры. Например, отделку white box в двухкомнатной квартире общей площадью около 80 кв. м компания готова сделать за 60 дней. Услугу на любой вид ремонта можно заказать как в момент заключения сделки, так и позже.

Анастасия и Иван заказали предчистовую отделку (white box). Они выбрали вариант с дизайн-проектом, поскольку самостоятельно предусмотреть множество деталей, спланировать розетки и нанести на план будущую мебель по всей квартире довольно сложно. В итоге, с учетом создания дизайн-проекта, предчистовая отделка квартиры заняла 3 месяца.

Стоимость отделки для квартиры 87,3 метра составила 1 315 000 ₽ (15 063 ₽ за квадратный метр). А так как у Анастасии и Ивана есть семилетний сын, то они получили скидку 5% и в итоге заплатили 1 249 000 ₽ (14 306 ₽ за квадрат).

Дизайнер и строители учли все пожелания

Сын мечтал о комнате в морском стиле, со шторами на деревянном карнизе, штурвалом и канатами на стене. А Анастасии хотелось радовать семью и гостей вкусными блюдами в большой кухне-гостиной. Дизайнер и строители учли эти пожелания, в том числе продумали не только планировку детской и кухни, но и подобрали мебель, элементы декора, аксессуары, оптимальный вариант освещения.

В ванной решили поставить и стиральную, и сушильную машины: этот момент обязательно стоит продумать еще до того, как в квартире смонтированы розетки и выключатели. Мебель в квартире на плане расставлена таким образом, чтобы было комфортно и родителям, и ребенку.

-3

Дизайнер составила детальный план

-4

На плане дизайнер наглядно показала, как будет расставлена мебель

В квартире сделали стяжку пола, выровняли и оштукатурили стены, добавили теплоизоляцию, проложили коммуникации, установили радиаторы отопления, смонтировали электропроводку. Использовали качественные строительные материалы. Например, зонирование было выполнено из кирпичей для перегородок, которые, в отличие от пеноблоков, обладают внушительной прочностью и звукоизоляцией.

-5

Квартира до отделки White box и после. Идеально ровные стены готовы к финишной отделке

Анастасия и Иван решили, что окна менять не будут: у застройщика они хорошие, двухкамерные “теплый алюминий” от немецкого производителя Schuco. Входную дверь тоже оставили: крепкая, надежная, выглядит красиво и эстетично. Тем более что весь дом выполнен в одном стиле и двери на этажных клетках и в лифтовых зонах в идеале тоже должны быть в единой цветовой гамме.

Квартира полностью готова к финальным отделочным работам.

Кстати, мастера-отделочники рекомендуют не спешить с ремонтом сразу после покупки нового дома, так как он может давать усадку в течение 2-3 лет. Однако в случае с RIVER HOUSE Щелково, дом уже выстоялся, и усадка не является проблемой. Это дает преимущество тем, кто хотел бы заказать отделку, white box или дизайнерский ремонт «под ключ», сразу при покупке квартиры - как Анастасия и Иван.

Вид из окна квартиры Анастасии и Ивана
Вид из окна квартиры Анастасии и Ивана

Отделка white box позволила семье сразу приступить к обустройству своего нового жилья, не тратя время и деньги на основные работы. Кстати, у Анастасии, Ивана и их сына есть собака, с которой они планируют гулять по набережной.

-7

С готовой отделкой можно сразу думать о приятном, например, о прогулках на набережной с собакой

«После сдачи ЖК RIVER HOUSE Щелково мы видим своей задачей помочь нашим покупателям сделать качественную отделку квартир. Покупатели освободят себя от тяжелой рутинной работы и получат профессиональный ремонт в оптимальные сроки. И главное - новоселье они отпразднуют раньше, чем это произойдет, если заниматься организацией всех работ самостоятельно», – комментирует Алексей Шаров, коммерческий директор компании «Риверхаус».

Реклама,Филиал ООО СЗ "Риверхаус" в г. Щелково ИНН: 3327121538 erid: 2VtzquyH1PQ