Добавить в корзинуПозвонить
Найти в Дзене

"Никто не верит, что сделали ремонт сами и без дизайнера!". Строитель объяснил способ, как бюджетно получить интерьер словно с картинки

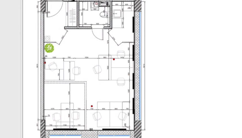
Если квартира приобретена в дорогом жилом комплексе в хорошем районе, да еще и под сдачу в аренду, то делать слишком простой дешевый ремонт как-то даже странно. А если хочется без больших затрат и красиво? Кто-то скажет, что невозможно сделать дизайнерский ремонт бюджетным, а мы ответим, что невозможное возможно. Исходное состояние Апартаменты площадью 48 м² в ЖК «Резиденция Архитекторов» без отделки, без перегородок, с потолками более 3 метров. Перегородки заказчик решил не возводить, кроме санузла и ниши — гардеробной в прихожей. Изолированных комнат здесь нет. Полы По полу дополнительно была сделана тремозвукоизоляция, поэтому стяжку нужно было делать плавающую увеличенной толщины с дополнительным армированием и подсыпкой керамзитом. В качестве финишного напольного покрытия был выбран керамогранит, который выглядит как натуральная доска. Выбор вполне понятен, потому что износостойкость и срок службы в коммерческих помещениях выходят на первый план. Стены Все стены оштукатурены по
Оглавление

Если квартира приобретена в дорогом жилом комплексе в хорошем районе, да еще и под сдачу в аренду, то делать слишком простой дешевый ремонт как-то даже странно.

А если хочется без больших затрат и красиво? Кто-то скажет, что невозможно сделать дизайнерский ремонт бюджетным, а мы ответим, что невозможное возможно.

  • И не просто ответим, а даже покажем это на примере апартаментов, где не так давно мы делали тот самый бюджетный ремонт.
  • Svetelkin1.ru магазин готовых ремонтов. Мы делаем ремонты по готовым проектам с фиксированной ценой за квадратный метр с материалами, сантехникой и электрикой.
Заказать ремонт квартир в Москве недорого можно в компании «Светелкин». Стоимость и сроки исполнения ниже, чем в среднем по рынку
Заказать ремонт квартир в Москве недорого можно в компании «Светелкин». Стоимость и сроки исполнения ниже, чем в среднем по рынку

Исходное состояние

Апартаменты площадью 48 м² в ЖК «Резиденция Архитекторов» без отделки, без перегородок, с потолками более 3 метров.

Перегородки заказчик решил не возводить, кроме санузла и ниши — гардеробной в прихожей. Изолированных комнат здесь нет.

  • Важное примечание: помещение не планируется сдавать для проживания, только для разных мероприятий, например, нетворкингов или тренингов или под офис. В связи с этим планировка и отделка сделана универсальная.
-2

Полы

По полу дополнительно была сделана тремозвукоизоляция, поэтому стяжку нужно было делать плавающую увеличенной толщины с дополнительным армированием и подсыпкой керамзитом.

В качестве финишного напольного покрытия был выбран керамогранит, который выглядит как натуральная доска. Выбор вполне понятен, потому что износостойкость и срок службы в коммерческих помещениях выходят на первый план.

Стены

Все стены оштукатурены по маякам, отшпаклеваны три раза с проклейкой стеклохолстом, а затем одна часть стен была окрашена краской в серый цвет с зеленоватым оттенком, а другая часть облицована плиткой под старый кирпич.

Получилось довольно хорошо, этакий стиль лофт.

Детали

  • Плинтус выбрали из базового пакета – белый ПВХ. Выглядит он хорошо, но главным его преимуществом стало то, что при поломке его легко заменить отдельными частями.
  • Почти все розетки из базового пакета – сдвоенные.
  • В рабочей зоне кухни фартук выложен гладкой плиткой. Если оставить шершавую плитку касавага, то возникнут трудности с уборкой.
Наполнение и актуальную стоимость всех пакетов наших ремонтов можно посмотреть на нашем сайте www.svetelkin1.ru
Наполнение и актуальную стоимость всех пакетов наших ремонтов можно посмотреть на нашем сайте www.svetelkin1.ru

Туалет

В санузле все сделано довольно просто: унитаз и раковина из базового пакета, а стены и пол облицованы плиткой.

  • Спросите, куда делась ванна или душевая кабина? Их нет, потому что проживание в этих апартаментах не предусмотрено. Однако если когда-то решение владельцев изменится, то душевую кабину можно будет поставить.
-6

Стоимость

Данный ремонт обошелся заказчику в 30 000 рублей за 1 кв.м, то есть всего около 1,5 млн рублей. Это уже включая проект, материалы и работы, а также все изменения и дополнения.

Как считаете, получилось совершить невозможное и сделать дизайнерский ремонт бюджетно?

Только для читателей Дзена мы проводим бесплатную консультацию. Присылайте фото понравившегося вам ремонта из интернета (который хотели бы сделать), а мы посчитаем, во сколько он сейчас обойдется, и распишем, какие материалы потребуются.

На нашем сайте www.svetelkin1.ru можно не только оставить заявку на консультацию, но и посмотреть готовые, до мелочей отработанные проекты, а также сделать запрос на бесплатную приемку квартиры у застройщика.