Добавить в корзинуПозвонить
Найти в Дзене
Филдс

Переделали интерьер «уставшей» евродвушки 29 м² в хрущёвке по заветам ГДР: фото до и после

Дизайнер Надежда Полякова оформила евродвушку 29 м² для себя и своей семьи. Интерьер старались сделать универсальным, поскольку квартиру планируют продать через пару лет. Вдохновение автор проекта почерпнула из журналов ГДР 1957-1989-х годов. Планировка до и после О будущей планировке дизайнер задумалась еще на этапе поиска квартиры. Выбор пал на угловую однушку. Благодаря окнам на двух сторонах удалось обустроить две изолированные зоны — спальню и кухню-гостиную. Санузел немного увеличили за счет коридора и кухни. Фото до ремонта Гостиная Диван расположили спинкой к проходу, чтобы очертить границы гостиной. У стены напротив построили мебельную стенку с множеством мест для хранения и нишей под телевизор. На подоконник установили столешницу, чтобы обустроить рабочее пространство. Она складная: выдающийся вперед край можно опустить, чтобы в комнате появилось больше пространства. Кухня За счет того, что задействовали подоконник, кухня получилась П-образной. Гарнитур заказали в ИКЕА, а
Оглавление

Дизайнер Надежда Полякова оформила евродвушку 29 м² для себя и своей семьи. Интерьер старались сделать универсальным, поскольку квартиру планируют продать через пару лет. Вдохновение автор проекта почерпнула из журналов ГДР 1957-1989-х годов.

  • Общая площадь: 29 м²
  • Место: Москва
  • Тип дома: хрущевка
  • Количество комнат: евродвушка
  • Высота потолка: 2,47 м
  • Бюджет: 3 млн рублей
  • Кто здесь живет: дизайнер с семьей
  • Фото: Ник Руденко

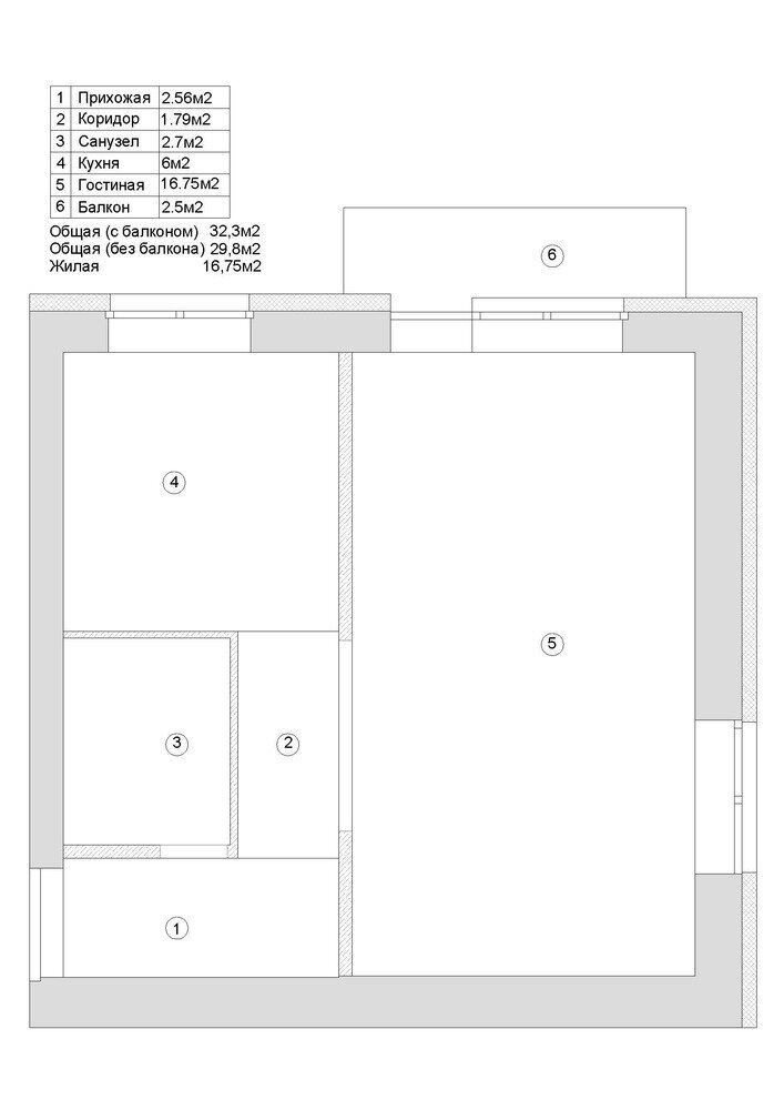
Планировка до и после

О будущей планировке дизайнер задумалась еще на этапе поиска квартиры. Выбор пал на угловую однушку. Благодаря окнам на двух сторонах удалось обустроить две изолированные зоны — спальню и кухню-гостиную. Санузел немного увеличили за счет коридора и кухни.

Фото до ремонта

Гостиная

Диван расположили спинкой к проходу, чтобы очертить границы гостиной. У стены напротив построили мебельную стенку с множеством мест для хранения и нишей под телевизор.

-3

На подоконник установили столешницу, чтобы обустроить рабочее пространство. Она складная: выдающийся вперед край можно опустить, чтобы в комнате появилось больше пространства.

Кухня

За счет того, что задействовали подоконник, кухня получилась П-образной. Гарнитур заказали в ИКЕА, а столешницу докупали отдельно. Духовой шкаф и мойка не видны на фоне светлых фасадов, а вот решетки на плите и черный смеситель вносят контраст.

-5

Холодильник в ретро-стиле поместили в мебельный короб. Он выступает в роли яркого акцента. На пол уложили плитку с рисунком терраццо, которая тянется прямиком из прихожей. Фартук оформили в тон стенам.

Спальня

От прихожей спальню отделяет двусторонний шкаф. Со стороны жилой комнаты находятся бельевые секции, а со стороны прихожей — гардеробные.

В отделке помещения использовали довольное яркое цветовое решение, которое компенсировали спокойными фасадами мебели. Вокруг изголовья построили систему хранения.

Прихожая

В прихожей также удалось предусмотреть достаточно мест для хранения за счет того же шкафа-перегородки. В его открытой секции даже устроили небольшую встроенную банкетку. Двери скрытого монтажа позволяют не дробить компактное пространство коридора.

Санузел

Стены в санузле полностью облицевали плиткой коричнево-розового оттенка. Тумбы под раковину в привычном ее понимании нет. Вместо этого подготовили Г-образный корпус, который облицевали плиткой.

Интересные мнения в комментариях приветствуются. Если материал понравился — ставь лайк!

🖤 Филдс — это не только блог на Дзене, но и магазин дизайнерских предметов интерьера. Заходите на сайт, чтобы увидеть мебель, которую дизайнеры выбирают для своих проектов.