Дом выполнен в стиле фахверк, что придает ему особый шарм и делает его непохожим на другие. Название проекта «Фахферк-118м» Особенности проекта Понравился проект? ☎️ : +7 (495) 152-74-93
Дом выполнен в стиле фахверк, что придает ему особый шарм и делает его непохожим на другие. Название проекта «Фахферк-118м» Особенности проекта Понравился проект? ☎️ : +7 (495) 152-74-93
...Читать далее
Дом выполнен в стиле фахверк, что придает ему особый шарм и делает его непохожим на другие.
Название проекта «Фахферк-118м»
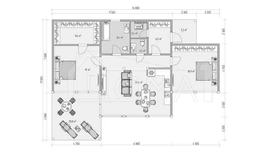
- Общая площадь: 118 м2
- Габариты: 16,0 х 11,5 м
- Количество спален: 2
- Количество санузлов: 2
Планировка
Особенности проекта
- Площадь 118 кв. м: Несмотря на относительно небольшую площадь, в доме есть все необходимое для комфортного проживания. Планировка включает просторную гостиную, совмещенную с кухней, 2 спальни, 2 санузла, котельную, гардеробную и террасу.
- Одноэтажный дом: Одноэтажная конструкция дома значительно упрощает его эксплуатацию и позволяет избежать лишних перемещений по лестнице. Особенно это удобно, если в семье есть пожилые люди и маленькие дети.
- В доме предусмотрено две спальни, что позволяет комфортно разместить всех членов семьи. Одна из спален может быть использована, как детская или гостевая комната.
- Большая терраса: Дом имеет просторную террасу, которая станет отличным местом для отдыха на свежем воздухе. Здесь можно устроить зону для барбекю или просто наслаждаться утренним кофе.
- Панорамные окна: Благодаря панорамным окнам, дом будет наполнен естественным светом, что создаст атмосферу уюта и комфорта. Из окон открывается потрясающий вид на окружающий ландшафт.
Понравился проект?
☎️ : +7 (495) 152-74-93