Добавить в корзинуПозвонить
Найти в Дзене
Филдс

Идеально продуманное хранение и ничего лишнего: интерьер евродвушки 34 м² для молодого мужчины

Дизайнеры Людмила Цыркова и Яна Сочаво оформили евродвушку площадью 34 м² для молодого мужчины. Особое внимание уделили размещению систем хранения. Интерьер выполнили в современном минималистичном стиле. Планировка до и после Коридор расширили за счет спальни, чтобы разместить в нежилом помещении хозблок со стиральной машиной. Вход в приватную зону перенесли из прихожей в гостиную. Также немного увеличили санузел, благодаря этому слева от входной двери появилась ниша для системы хранения. Кухня-гостиная Стены выкрасили в нейтральный серо-бежевый оттенок. Межкомнатные двери скрытого монтажа визуально не дробят отделку и придают интерьеру цельность, свойственную минимализму. Пол во всей квартире, не считая санузла, уложили инженерной доской из темного дерева. У окна поставили лаконичный серый диван, который поддерживает спокойную палитру. Место для отдыха оживили зеркальным бра, которое смотрится как арт-объект. Напротив организовали ТВ-зону. Подвесная тумба под телевизором и открытый
Оглавление

Дизайнеры Людмила Цыркова и Яна Сочаво оформили евродвушку площадью 34 м² для молодого мужчины. Особое внимание уделили размещению систем хранения. Интерьер выполнили в современном минималистичном стиле.

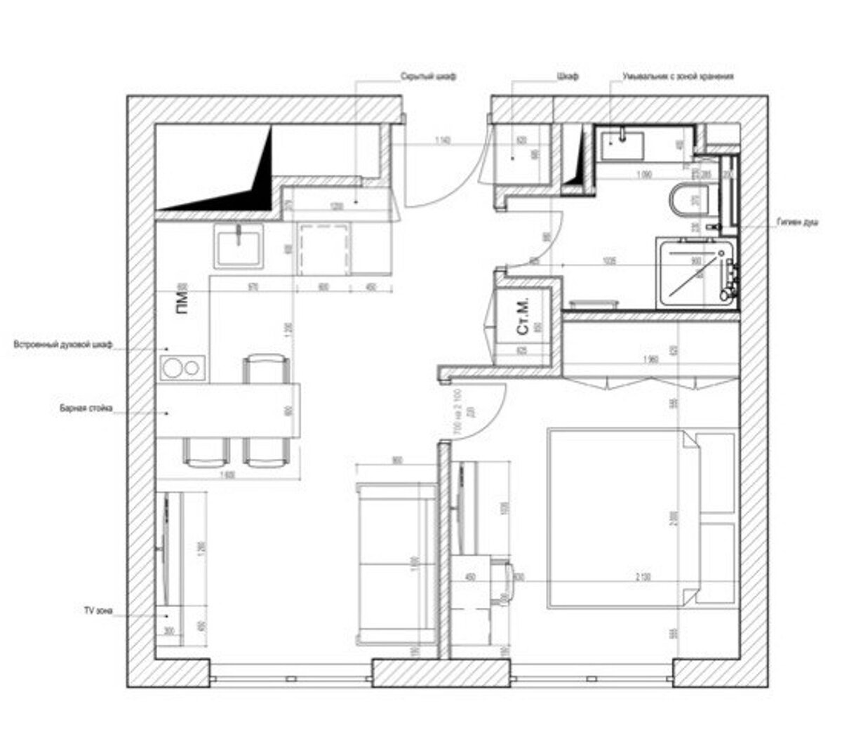
Планировка до и после

Коридор расширили за счет спальни, чтобы разместить в нежилом помещении хозблок со стиральной машиной. Вход в приватную зону перенесли из прихожей в гостиную. Также немного увеличили санузел, благодаря этому слева от входной двери появилась ниша для системы хранения.

Кухня-гостиная

Стены выкрасили в нейтральный серо-бежевый оттенок. Межкомнатные двери скрытого монтажа визуально не дробят отделку и придают интерьеру цельность, свойственную минимализму. Пол во всей квартире, не считая санузла, уложили инженерной доской из темного дерева.

У окна поставили лаконичный серый диван, который поддерживает спокойную палитру. Место для отдыха оживили зеркальным бра, которое смотрится как арт-объект. Напротив организовали ТВ-зону. Подвесная тумба под телевизором и открытый стеллаж в углу составляют единую мебельную конструкцию.

Угловой гарнитур зрительно слили с отделкой. Фасады в тон стенам и прозрачные панели на фартуке не отвлекают внимания от жилой зоны в общем пространстве. Единый объем кухни разбавляет только пара подвесных шкафов с дверцами из рифленого стекла.

Гарнитур продолжает барная стойка, которая служит обеденным столом, зонирующим элементом и дополнительной рабочей поверхностью.

-5

Спальня

Широкое изголовье кровати занимает весь низ стены. Постель укомплектовали лаконичной подвесной полкой для мелочей. В изножье обустроили рабочее место. Стол перетекает в подвесной комод. Над столешницей также предусмотрели открытые полки для книг и декора.

В глубине комнаты установили высокий встроенный шкаф для вещей, его светлые фасады не перегружают минималистичное пространство.

-7

Прихожая

В прихожей разместили три системы хранения, что позволило минимизировать количество шкафов в комнатах. В нишу слева от входа встроили открытую секцию с сиденьем, крючками для одежды, ящиками для мелочей и полкой для обуви внизу.

-8

С другой стороны от двери в санузел интегрировали систему хранения из трех отделений: внизу поставили стиральную машину, основная часть предназначается для верхней одежды, а наверху — антресоль для сезонного хранения. Напротив расположили узкий шкаф с зеркальной дверцей, там спрятали спортивный инвентарь — хозяин увлекается теннисом.

Санузел

Пол уложили керамогранитом под темное дерево, который перекликается с инженерной доской в остальной части квартиры. Стены оформили крупноформатным керамогранитом под травертин. Душевую изолировали перегородками из рельефного стекла.

Систему хранения с тумбой и открытыми нишами выстроили вокруг раковины. Дополнительно предусмотрели скрытый шкафчик для хозяйственных принадлежностей над инсталляцией.

-11

Интересные мнения в комментариях приветствуются. Если материал понравился — ставь лайк!

🖤 Филдс — это не только блог на Дзене, но и магазин дизайнерских предметов интерьера. Заходите на сайт, чтобы увидеть мебель, которую дизайнеры выбирают для своих проектов.