Добавить в корзинуПозвонить
Найти в Дзене
Тесты, КОМПАС 3D

Практическая работа. Подсчет объемов кирпичной кладки.

Вид практической работы: Выполнение наблюдений и опытов, решение задач экспериментального характера. Цель работы: Выработка умения применять знания на практике Задачи: 1. Развивать коммуникативные компетенции (как способности работать с текстом, информацией); 2. Развивать предметные компетенции (Умение выполнять подсчет объёмов каменных работ жилых зданий); 3. Формировать ключевые компетенции ((информационная: систематизировать, анализировать, использовать и обрабатывать полученную информацию); социально коммуникативная (соотносить свои устремления с интересами других людей)) Задание: Пользуясь исходными данными из приложения №1, по варианту, назначенному преподавателем, выполнить: 1. Перенести в тетрадь и заполнить ведомость элементов заполнения оконных и дверных проёмов (приложение №3). 2. Перенести в тетрадь с нанесением окон и дверей, а так же размеров согласно варианта задания. 3. Произвести подсчет объемов кирпичной кладки согласно варианта задания. 4. Написать вывод. *При выполн

Вид практической работы: Выполнение наблюдений и опытов, решение задач экспериментального характера.

Цель работы: Выработка умения применять знания на практике

Задачи:

1. Развивать коммуникативные компетенции (как способности работать с текстом, информацией);

2. Развивать предметные компетенции (Умение выполнять подсчет объёмов каменных работ жилых зданий);

3. Формировать ключевые компетенции ((информационная: систематизировать, анализировать, использовать и обрабатывать полученную информацию); социально коммуникативная (соотносить свои устремления с интересами других людей))

Задание:

Пользуясь исходными данными из приложения №1, по варианту, назначенному преподавателем, выполнить:

1. Перенести в тетрадь и заполнить ведомость элементов заполнения оконных и дверных проёмов (приложение №3).

2. Перенести в тетрадь с нанесением окон и дверей, а так же размеров согласно варианта задания.

3. Произвести подсчет объемов кирпичной кладки согласно варианта задания.

4. Написать вывод.

*При выполнении пункта 3 задания, можно пользоваться алгоритмом расчета изложенного в примере ниже.

1. Объём кладки наружных стен определяется по формуле (1):

(1)

Vнар.стен = Vкирп.кл. – Vпроёмов – Vперемычек, где

- Vкирп.кл. – объем кирпичной кладки определяется по формуле (2);

- Vпроёмов – объем проёмов окон и дверей определяется по формуле (3);

- Vперемычек – сумма всех перемычек в наружных стенах (по спецификации перемычек).

Vкирп.кл. = Рн.ст× Нэтажа × Bстены, где (2)

- Рн.ст– периметр, сумма длин всех наружных стен;

- Нэтажа – высота этажа (определяется по чертежу или задается преподавателем);

- Вн.ст. – толщина наружной стены (определяется по чертежу или задается преподавателем).

Vпроёмов = (Sокон + Sдверей) × Bстены, где (3)

- Sокон – сумма площадей всех окон в наружных стенах по наружному обводу (длина и высота окон определяется по чертежу);

- Sдверей – сумма площадей всех дверей в наружных стенах по наружному обводу (длина и высота окон определяется по чертежу);

- Вн.ст – толщина наружной стены (определяется по чертежу или задается преподавателем).

2. Объём кладки внутренних стен определяется по формуле (4):

Vвн.стен = Vкирп.кл. – Vпроёмов – Vперемычек, где (4)

- Vкирп.кл. – объем кирпичной кладки определяется по формуле (5);

- Vпроёмов – объем проёмов дверей определяется по формуле (6);

-Vперемычек – сумма объемов всех перемычек во внутренних стенах (по спецификации перемычек).

Vкирп.кл. = Рвн.ст. × Нэтажа × Bвн.ст., где (5)

- Рвн.ст. – периметр, сумма длин всех внутренних стен одинаковой ширины;

- Нэтажа – высота этажа (определяется по чертежу или задается преподавателем);

- Ввн.ст. – толщина внутренней стены (определяется по чертежу или задается преподавателем).

Vпроёмов = Sдверей × Bвн.ст., где (6)

- Sдверей – сумма площадей всех дверей во внутренних стенах (по спецификации окон и дверей)

- Ввн.ст. – толщина внутренней стены (определяется по чертежу или задается преподавателем).

Пример.
Дано:
Нэтажа – 2,8м

Рассчитаем объём кладки наружных стен.

1. Сначала рассчитаем объём кирпичной кладки наружных стен. Для это надо определить периметр, т.е. сумму всех наружных стен и толщину стены Bн.ст.

Делим стены на простые прямоугольники (рис.1):

- две стены длиной 12000 мм=12м (от оси 1 до оси 5),

- две стены длиной 10600(от оси А до оси В)+540(часть кладки со стороны оси А)+540(часть кладки со стороны оси В)= 11680мм=11,68м,

тогда периметр равен:

Рн.ст.= 12×2+11,68×2=47,36м

Рис. 1
Рис. 1

Bн.ст.=640мм=0,64м – определяем по рис.1

1. Определяем объём кирпичной кладки по формуле (2)

Vкирп.кл. = Рн.ст.× Нэтажа × Bн.ст.

Vкирп.кл. = 47,36 × 2,8 × 0,64= 84,87м3

2. Определяем объем проемов по формуле (3)

Vпроёмов = (Sокон + Sдверей) × Bн.ст.

3.1 С начала определим по наружному обводу, т.е. по фасаду и плану. В нашем задании всего два типа окна О-1 и О-2.

Ширину окна О-1 определяем по рис. 2

Рис. 2
Рис. 2

Высоту окна О-1 определяем по рис. 3 (Фасад 1-5) 2,135-0,7=1,435м

Рис. 3
Рис. 3

О-1 – 4шт.

SО-1 = (1,370×1,435) × 4 = 7,86 м2

По аналогии находим площади О-2- 2шт.

Рис. 4
Рис. 4
Рис. 5 (Фасад 5-1)
Рис. 5 (Фасад 5-1)

SО-2 = (1,570×1,435) × 2 = 4,51 м2

Sокон = SО-1+ SО-2 = 7,86+4,51=12,37 м2

3.2. Определим площадь дверей по наружному обводу. В нашем задании в наружной стене есть только одна дверь Д1.

Ширину Д1 определим по плану Рис. 6

Рис. 6
Рис. 6

Высоту Д1 определить по фасаду 5-1, Рис. 7

Рис. 7
Рис. 7

Sдверей = 1,070 × 2,035 = 2,18 м2

3.3. Подставляем полученные значения в формулу (3)

Vпроёмов = (Sокон + Sдверей) × Bн.ст.

Vпроёмов = (12,37+2,18) ×0,64 = 9,31 м3

1. Определяем Vперемычек по спецификации перемычек, рис. 8

В спецификации дан объём 1шт. и количество штук.

Рис. 8
Рис. 8

Vперемычек = (0,0302×10) + (0,0326×20) + (0,0252×5) = 1,08 м3

1. Определяем объем кладки наружных стен по формуле (1)

Vнар.стен = Vкирп.кл. – Vпроёмов – Vперемычек

Vнар.стен = 84,87 - 9,31 - 1,08 = 74,48 м3

Рассчитаем объем кладки внутренних стен

1. Сначала нужно определить объем кирпичной кладки внутренних стен. Для это надо определить Рвн.ст периметр, т.е. сумму всех внутренних стен и толщину стены Bвн.ст.

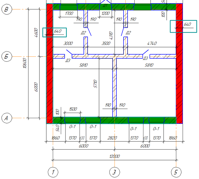
Делим стены на простые прямоугольники рис.9:

- самая длинная стена (красная) = 5810+190+190+5810= 12000=12,0м

- зеленая = 4310 × 2 = 8620мм = 8,62м

- голубая = 5710мм = 5,71м

Рвн.ст. = 12,0+8,62+5,71= 26,33м

Рис. 9
Рис. 9

Толщину внутренней стены Bвн.ст. определяем по рис.10

Рис. 10
Рис. 10

Все внутренние стены одной толщины, Bвн.ст. = 380мм = 0,38м

Объем кирпичной кладки определяем по формуле (5)

Vкирп.кл. = Рвн.ст. × Нэтажа × Bвн.ст.

Vкирп.кл. = 26,33×2,8×0,38 = 28,02 м3

2. Определяем Vпроемов по формуле (6)

Vпроёмов = Sдверей × Bвн.ст.

Во внутренних стенах нет окон, поэтому нам нужны только Sдверей.

В нашем примере внутренние двери – это Д2 и Д3. Их размеры и количество указаны в ведомости элементов заполнения оконных и дверных проёмов, рис.11

Рис. 11
Рис. 11

Sдверей = (0,9×2,1)×2 + (0,7×2,1)×2 = 3,92 м2

Vпроёмов = 3,92×0,38= 1,49 м3

3. Определяем Vперемычек по спецификации перемычек, рис. 12

Рис. 12
Рис. 12

Vперемычек = (0,0217×6) + (0,0173×6)= 0,234 м3

4. Определяем объем кладки внутренних стен по формуле (4)

Vвн.стен = Vкирп.кл. – Vпроёмов – Vперемычек

Vвн.стен = 28,02-1,49-0,2334=26,30 м3

5. Если нужен объем кладки во всем здании, то надо сложить объем кладки наружных стен с объемом кладки внутренних стен.

Vкладки зд. = Vнар.стен + Vвн.стен

Vкладки зд. = 74,48+26,30=100,78 м3

Приложение №1.

Данные для самостоятельной работы

Варианты

Приложение №1

-13
-14
-15

Приложение №4

-16

Приложение №5

-17
-18