Найти в Дзене

Перенос розеток и выключателей под дизайн проект. Изменение проводки с минимальными затратами

Оглавление

Вы стали обладателем новой квартиры. Может она, конечно, и не сильно новая - всё равно ПОЗДРАВЛЯЮ! Что ж, рано или поздно вы столкнётесь с необходимостью делать ремонт. Будет ли он производиться своими силами или наёмными, суть не в этом. Понимать, хотя бы в общих чертах, технологию - просто необходимо! Частичное изменение проводки не всегда обходится дешевле по оплате работы, но явно менее затратное по материалам. Про всё это ниже, в попытке совместить данный подход и дизайнерский ремонт. Хе-хе, вещи малосовместимые!

В некоторых моих предыдущих публикациях затрагивалась тема частичного изменения проводки. Можно почитать её по этой ссылке: Почему хорошие мастера не советуют делать перенос розеток и выключателей или частичное изменение проводки в новостройке

Ещё ссылки на статьи, затрагивающие некоторые специфические вопросы переноса розеток, выключателей и распределительных коробок, я оставлю в конце.

И так, перед вами довольно много букв с кучей фотографий. Это хроника, если так можно выразиться, одного объекта в реализации которого мне удалось поучаствовать. Возможно, некоторые решения покажутся вам спорными, противоречивыми, ну или вообще не соответствующими действующим правилам.

Если у вас есть, что сказать, то добро пожаловать в комментарии критика, советы и пожелания приветствуются. Если вы заметили грамматические, пунктуационные и другие ошибки, то так же не стесняйтесь это комментировать. Статья будет постепенно дополняться, так как на всё требуется время. Надеюсь материал будет полезен для вас.

Последняя редакция от: 27.09.2023 21:00

Что мы имеем от застройщика

Объект представляет из себя двух-комнатную квартиру. Многоэтажка, район массовой жилищной застройки. Дом кирпичный. Общий вид квартиры до начала выполнения работ можно посмотреть на видео. Там я убрал звук, так как присутствует матюки специфическая строительная лексика. Добавил пояснения в виде субтитров и пометил электроточки (розетки, выключатели, распределительные коробки). На коллегу, который пытался использовать мойку на кухне не по назначению, внимания не обращайте)))

Внимание! Видео обрабатывается и скоро будет доступно.

Можно посмотреть видеоролик, ставя на паузу, чтобы получше рассмотреть отдельные фрагменты. Некоторые моменты сохранились на фото. Они детально показывают то, что досталось от застройщика. Фотографии подписаны, полистайте - будет понятнее.

Стены выравнивались по маякам. Поэтому разметку делать очень легко. Автоматы находятся на лестничной площадке, внутри этажного щита (там, где шчётчики). В квартиру заведено четыре группы:

  1. Освещение
  2. Электроплита
  3. Розетки комнат
  4. Розетки кухни

От этажного шкафчика кабели проложены полом в ПНД трубах под стяжкой. Далее внутри квартиры выполнены подъёмы кабеля до распределительных коробок, от них кабели расходятся на расстоянии 15-18 сантиметров от потолка. Выключатели на высоте 90 см от пола, розетки 30.

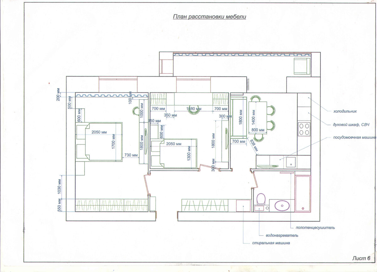
Взгляд дизайнера

Взгляд дизайнера - вещь своеобразная, часто требует уточнения. Я специально отсканировал рабочую версию проекта, чтобы вы видели уточнения. Собственно, уточнения касаются в основном недостающих размеров.

Подготовка

Прежде чем что-либо переделывать необходимо убедиться в качестве того, что уже есть. А для этого существует несколько методов. Сначала визуальный осмотр, где это возможно: вскрываем распределительные коробки. Далее инструментальный контроль.

Поихали ломать ...

Было решено адаптировать проводку от застройщика минимальными, по возможности, методами. Поэтому не обошлось без горизонтальных штроб и соединений в подрозетниках.

Спальня

Если посмотреть план расстановки мебели, то условно можно разделить спальню на несколько зон:

  • Прикроватная
  • Трюмо
  • TV
  • Освещение
  • Светодиодные подсветки

Прикроватная зона - это блок выключатель/розетка справа и слева от кровати и две бра на стене. Выключатель слева управляет левой бра, выключатель справа - правой. Всё довольно просто, никаких проходных и перекрёстных схем.

Прикроватная зона

От застройщика здесь имеем почти то, что нужно. Остаётся лишь подкорректировать расположение розеток, добавить выводы для брашек и выключатели.

-3

Слева пришлось демонтировать существующий подрозетник и вскрыть штробу от застройщика. Делаем пару углублений для установочных коробок. В одну из них заводим существующий розеточный кабель, чутка укоротив его. Из второй поднимаем кабель на будущую бра. Необходимые соединения будут выполнены в подрозетниках.

Справа немного больше работы. Пришлось демонтировать существующий кабель, проштробить новый спуск к блоку розетка-выключатель.

Трюмо и TV зона

Здесь должны быть установлены световые линии. Но так как не могли определиться с точным размером куда выводить кабель и кто будет монтировать направляющие профили для светодиодной ленты, то решили что зеркало и подсветка будут расположены на мебельном щите. Два вывода кабеля на питание светодиодной ленты так и остались.

Стена где будет трюмо и TV зона
Стена где будет трюмо и TV зона

-6