Найти в Дзене
ДОМ с умом

Проект одноэтажного дома с 3 спальнями "Верба"

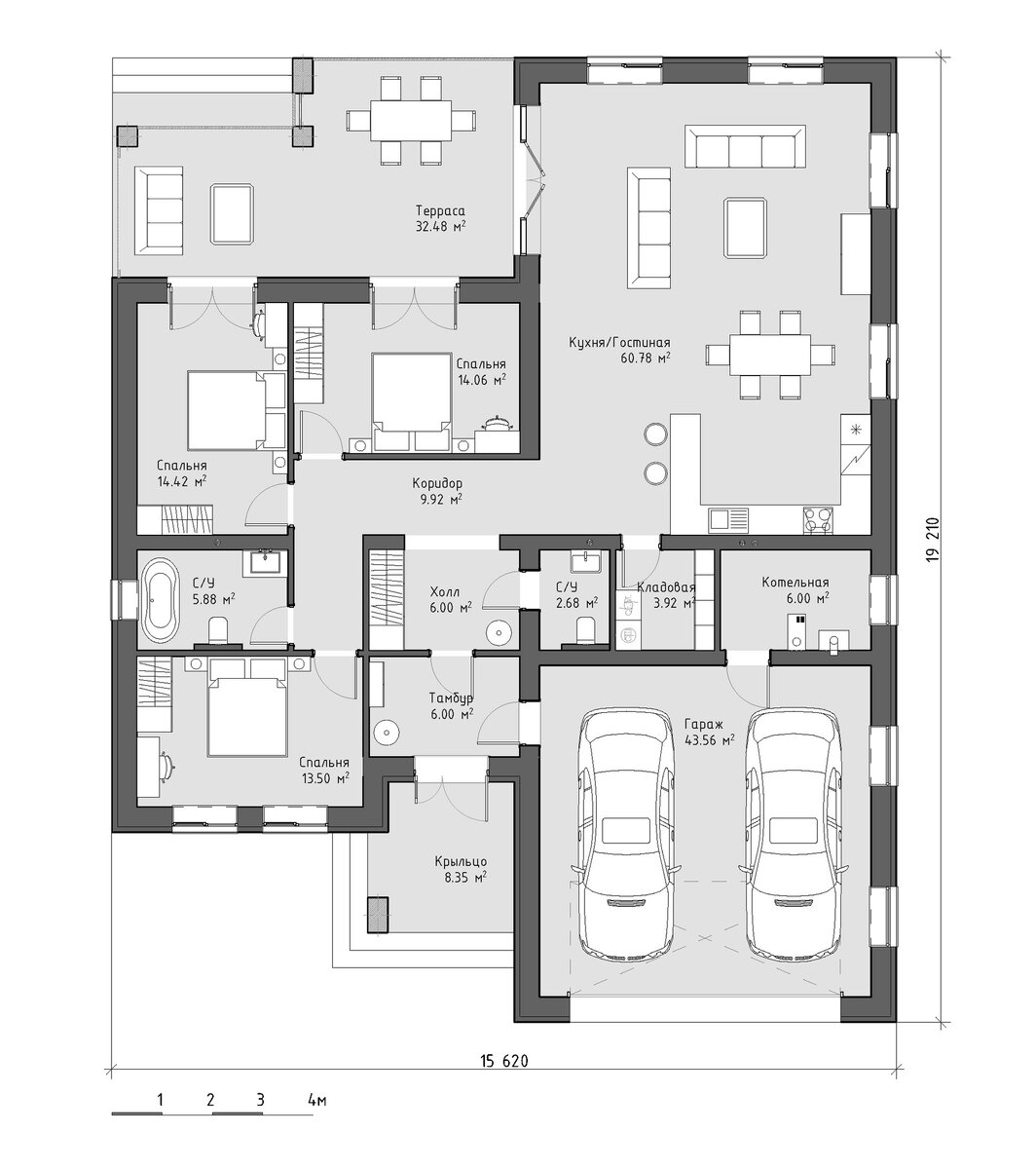
Это одноэтажный дом со стильным дизайном. Одним из главных критериев при его разработке была функциональность. В коттедже есть все необходимое для комфортной загородной жизни семьи с двумя детьми. Характеристики: Общая площадь: 218.2 кв.м
Жилая площадь: 186.4 кв.м
Габариты: 15.6 м х 19,2 м
Фундамент: монолитная железобетонная плита
Стены: керамзитоблок 390 мм, утепление 100 мм
Наружная отделка: декоративная штукатурка, планкен
Чердачные перекрытия - по деревянным балкам
Кровля: из металлочерепицы по деревянной стропильной системе Планировка: Просторная кухня-гостиная станет отличным местом для встречи с друзьями. А для сбора всей семьи и летних завтраков на свежем воздухе предусмотрена терраса. В доме имеются 3 спальни, 2 санузла. Также имеются гараж на 2 парковочных места, котельная и хоз.помещение. ▪️▪️▪️▪️▪️▪️▪️▪️▪️▪️▪️▪️▪️▪️▪️▪️▪️▪️▪️▪️▪️▪️▪️▪️▪️▪️▪️▪️▪️▪️▪️▪️▪️▪️▪️▪️▪️▪️▪️▪️▪️▪️▪️▪️▪️▪️▪️▪️▪️▪️▪️▪️▪️▪️▪️▪️▪️▪️▪️▪️▪️▪️▪️▪️▪️▪️ 📌Жилая площадь – 186,4 кв.м
📌Кухня-гостина
Оглавление

Это одноэтажный дом со стильным дизайном. Одним из главных критериев при его разработке была функциональность. В коттедже есть все необходимое для комфортной загородной жизни семьи с двумя детьми.

Характеристики:

Общая площадь: 218.2 кв.м
Жилая площадь: 186.4 кв.м
Габариты: 15.6 м х 19,2 м
Фундамент: монолитная железобетонная плита
Стены: керамзитоблок 390 мм, утепление 100 мм
Наружная отделка: декоративная штукатурка, планкен
Чердачные перекрытия - по деревянным балкам
Кровля: из металлочерепицы по деревянной стропильной системе

Планировка:

Просторная кухня-гостиная станет отличным местом для встречи с друзьями. А для сбора всей семьи и летних завтраков на свежем воздухе предусмотрена терраса. В доме имеются 3 спальни, 2 санузла. Также имеются гараж на 2 парковочных места, котельная и хоз.помещение.

-2

▪️▪️▪️▪️▪️▪️▪️▪️▪️▪️▪️▪️▪️▪️▪️▪️▪️▪️▪️▪️▪️▪️▪️▪️▪️▪️▪️▪️▪️▪️▪️▪️▪️▪️▪️▪️▪️▪️▪️▪️▪️▪️▪️▪️▪️▪️▪️▪️▪️▪️▪️▪️▪️▪️▪️▪️▪️▪️▪️▪️▪️▪️▪️▪️▪️▪️

📌Жилая площадь – 186,4 кв.м
📌Кухня-гостиная - 60,8 кв.м
📌Спальни – 3 шт.
📌Терраса - 31,2 кв.м
📌Гараж – на 2 авто

▪️▪️▪️▪️▪️▪️▪️▪️▪️▪️▪️▪️▪️▪️▪️▪️▪️▪️▪️▪️▪️▪️▪️▪️▪️▪️▪️▪️▪️▪️▪️▪️▪️▪️▪️▪️▪️▪️▪️▪️▪️▪️▪️▪️▪️▪️▪️▪️▪️▪️▪️▪️▪️▪️▪️▪️▪️▪️▪️▪️▪️▪️▪️▪️▪️▪️
Стоимость проектной документации (серии АР, КР) - 26 000 руб.