Найти в Дзене
Home backstage

Как обустроить маленькую кухню

Изначально хотела кухню студию, так как не люблю находиться одна на кухне, а хочется больше общаться с родными при готовке. У застройщика G-park нашла даже лучше вариант, такой как "Готовочная". Это новый формат кухни и безусловно лучше чем студийная планировка, тем что есть изолированность и в тоже время совмещена с гостиной. Мечта любой хозяйки иметь раковину возле окна а не упираться в стену. Конечно я не могла не воплотить эту мечту и каждый день наслаждаюсь видом из окна. Да, пришлось закрыть часть панорамного окна но я думаю это стоило того. Столешницу кухонного гарнитура сделала повыше на высоту 90 сантиметров. Помещение всего 6.3 квадратных метра, ниже опишу, что я применила для расширения пространства: Из интересного и удобного для кухни могу отметить следующее: А также не советую ставить мусорное ведро под раковину так как считается что источник для питья не должен находиться рядом с не чистым то есть мусором. Благодарю за внимание.

Наша готовочная
Наша готовочная

Изначально хотела кухню студию, так как не люблю находиться одна на кухне, а хочется больше общаться с родными при готовке.

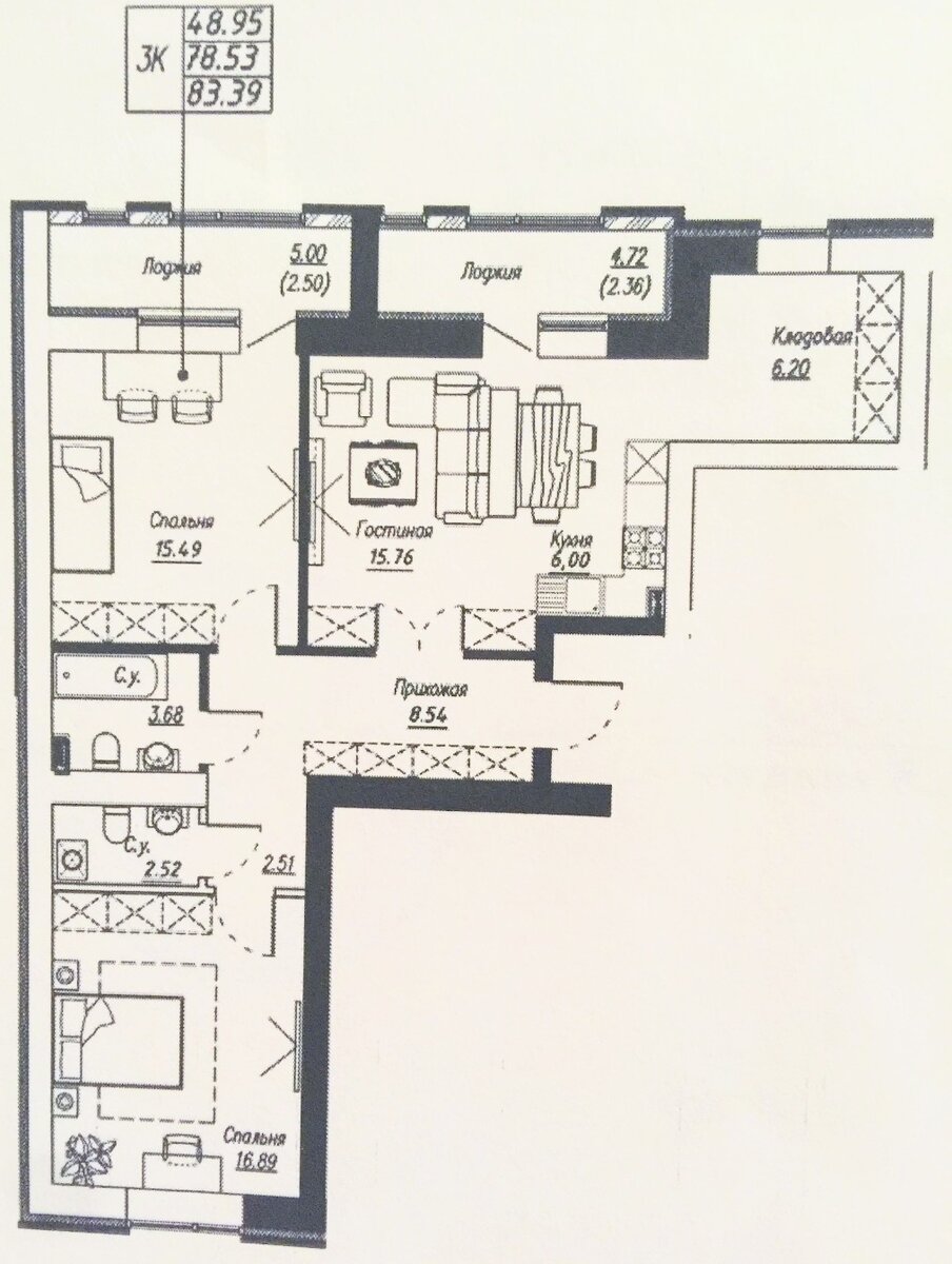
Там где написано кладовая является готовочной
Там где написано кладовая является готовочной

У застройщика G-park нашла даже лучше вариант, такой как "Готовочная".

Это новый формат кухни и безусловно лучше чем студийная планировка, тем что есть изолированность и в тоже время совмещена с гостиной.

Мечта любой хозяйки иметь раковину возле окна а не упираться в стену. Конечно я не могла не воплотить эту мечту и каждый день наслаждаюсь видом из окна.

Да, пришлось закрыть часть панорамного окна но я думаю это стоило того.

Вид под раковиной
Вид под раковиной

Столешницу кухонного гарнитура сделала повыше на высоту 90 сантиметров.

Помещение всего 6.3 квадратных метра, ниже опишу, что я применила для расширения пространства:

  • Цвет пола и столешницы одной тональности, без резких контрастов;
  • бежевый глянцевый цвет фасада кухонного гарнитура;
  • фреска с перспективой вокруг окна;
  • зеркальный цоколь кухонного гарнитура.

Из интересного и удобного для кухни могу отметить следующее:

  • измельчитель отходов - максимально полезное устройство, тем что можно чистить овощи прямо в раковине и тут же измельчить и смыть. Тем самым сокращая объем мусора, а также исключает засора канализации и безусловно запаха из раковины;
  • встраиваемый дозатор мыла - удобен тем что нет некрасивых банок со средствами для мытья;
  • смеситель 2 в 1 с подключением фильтра для воды именно с мягким изливом.

А также не советую ставить мусорное ведро под раковину так как считается что источник для питья не должен находиться рядом с не чистым то есть мусором.

Благодарю за внимание.