Добавить в корзинуПозвонить
Найти в Дзене

Банный комплекс из клееного бруса с бассейном

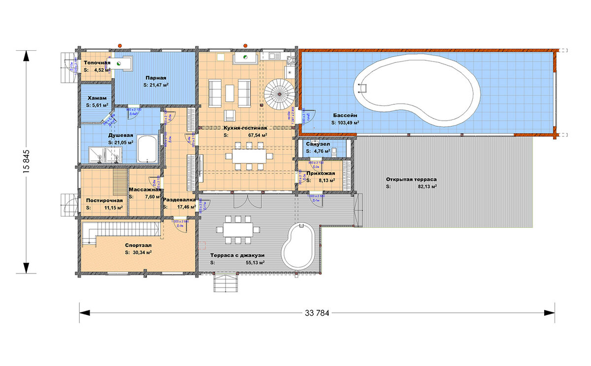
При создании этого проекта была решена основная задача - создание банного комплекса для комфортного отдыха большой компании, а также было уделено особое внимание естественному освещению. Банный комплекс "Ильинское" площадью 574 м выполнен из клееного бруса, в том числе стропильная система, кровля – Кликфальц-про. Планировка Данный проект включает всевозможные банные удовольствия, здесь для любителей жесткого пара предусмотрена сауна, а для приверженцев мягкого влажного тепла - хамам. Для любителей активного отдыха имеется тренажерный зал и бассейн.
Для большой компании проектом предусмотрена большая гостиная с кухней площадью 67 м. Интерьер гостиной украшают вертикальные балки с укосами, несущие как эстетическую, так и силовую нагрузку. Расчет нагрузок позволил убрать столбы в зоне гостиной с пролетом 6,8 м, при условии применения таких балок.
Парная площадью 21 м с мансардными окнами выполнена в стиле русской бани с отделкой массивной древесиной.
Деревянная часть потолка отделана ш
Оглавление

При создании этого проекта была решена основная задача - создание банного комплекса для комфортного отдыха большой компании, а также было уделено особое внимание естественному освещению.

Банный комплекс "Ильинское" площадью 574 м выполнен из клееного бруса, в том числе стропильная система, кровля – Кликфальц-про.

Планировка

Данный проект включает всевозможные банные удовольствия, здесь для любителей жесткого пара предусмотрена сауна, а для приверженцев мягкого влажного тепла - хамам. Для любителей активного отдыха имеется тренажерный зал и бассейн.

Для большой компании проектом предусмотрена большая гостиная с кухней площадью 67 м. Интерьер гостиной украшают вертикальные балки с укосами, несущие как эстетическую, так и силовую нагрузку. Расчет нагрузок позволил убрать столбы в зоне гостиной с пролетом 6,8 м, при условии применения таких балок.

Парная площадью 21 м с мансардными окнами выполнена в стиле русской бани с отделкой массивной древесиной.
Деревянная часть потолка отделана широким канадским кедром. Подсветка с мягким светом по периметру.

Сердце парной - печь Джеймса Ларкина по индивидуальному заказу, загрузка дров возможна как из топочного помещения, так и из парной. Особенность данной парной в том, что в ней применено двойное остекление и можно холодным зимним вечером смотреть на звёзды.

мансардные окна в парной
мансардные окна в парной

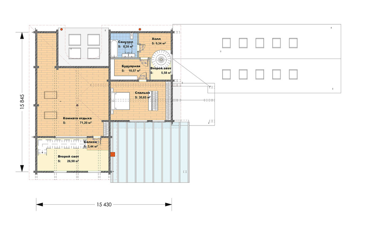
Второй этаж посвящен отдыху. Комната отдыха позволяет установить бильярд или небольшой домашний кинозал. Комната отдыха помимо больших панорамных окон, оборудована мансардными окнами для дополнительного света.

Также на втором этаже есть
спальная зона. Чтобы не пересекаться с шумными компаниями и минимизировать звуки с первого этажа, передающиеся через второй свет, лестница в зону спальня-санузел предусмотрена отдельно от основной.

Просторная терраса со стеклянной крышей всегда наполнена естественным светом и вмещает зону отдыха с мягкой мебелью и теннисный стол. Крыша выполнена из закаленного стекла Триплекс и смонтировано в специальных рамках по стропилам из клееного бруса.

Подробнее о проекте на сайте "ДДМ-Строй"

Видео с места строительства

Понравился проект? 👉Ставьте лайк!