Добавить в корзинуПозвонить
Найти в Дзене
АО «ТАМАК»

Двухэтажный дом в стиле хай-тек 315,17 м²

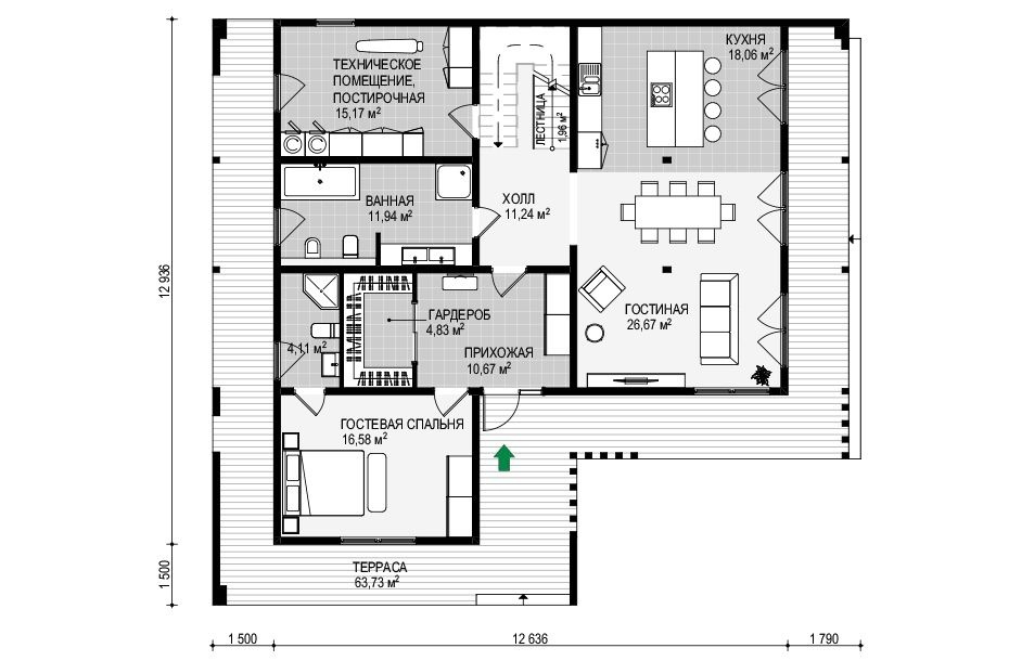
Проект двухэтажного дома «Хай-тек–218» — это шикарный дом в современном стиле. Несмотря на простые формы, он выглядит солидно и впечатляюще благодаря значительным размерам (общая площадь 315,7 м²). Внутри коттеджа царят простор, комфорт и функциональность. Обратите внимание на террасу, которая огибает дом с трех сторон, и на балконы. План 1 этажа: План 2 этажа: Дизайн-проект дома: Характеристики проекта: Общая площадь: 315,17 м²
Площадь помещений: 218,35 м²
Площадь террас и балконов: 96,82 м²
Общая площадь 1 этажа: 184,96 м²
Общая площадь 2 этажа: 130,21 м²
Спальни, шт.: 4
Санузлы, шт.: 4
Техническое помещение: да
Гардероб: да Ваша оценка данного дома: Мы производим долговечные дома «Тhermomak Haus». Для конструкции дома используются экологичные и прочные монолитные цементно-стружечные плиты плотностью 1250-1400 кг/м³ собственного производства АО «ТАМАК». Каркас дома изготавливается из древесины поставляемой из экологически чистых регионов России - с севера европейской части, Ура

Проект двухэтажного дома «Хай-тек–218» — это шикарный дом в современном стиле. Несмотря на простые формы, он выглядит солидно и впечатляюще благодаря значительным размерам (общая площадь 315,7 м²). Внутри коттеджа царят простор, комфорт и функциональность. Обратите внимание на террасу, которая огибает дом с трех сторон, и на балконы.

План 1 этажа:

-2

План 2 этажа:

-3

Дизайн-проект дома:

Характеристики проекта:

Общая площадь: 315,17 м²
Площадь помещений: 218,35 м²
Площадь террас и балконов: 96,82 м²
Общая площадь 1 этажа: 184,96 м²
Общая площадь 2 этажа: 130,21 м²
Спальни, шт.: 4
Санузлы, шт.: 4
Техническое помещение: да
Гардероб: да

Ваша оценка данного дома:

Мы производим долговечные дома «Тhermomak Haus». Для конструкции дома используются экологичные и прочные монолитные цементно-стружечные плиты плотностью 1250-1400 кг/м³ собственного производства АО «ТАМАК». Каркас дома изготавливается из древесины поставляемой из экологически чистых регионов России - с севера европейской части, Урала и Сибири. Пиломатериал проходит строгий входящий контроль, автоматическую калибровку, сортировку и промышленную сушку. В готовых конструкциях пиломатериал не подвергается негативным воздействиям.

Телефон: 8(800)300-89-77

Наш сайт: https://tamak.ru/