Добавить в корзинуПозвонить
Найти в Дзене
Пикабу

Эскизный проект двухэтажного мансардного дома площадью 143кв.м. с основными размерами в плане 11.3х8.6м

О планировочном решении. На первом этаже дома располагаются по входу через крыльцо - тамбур-прихожая, далее холл с нишей под шкаф-купе, сразу слева находятся котельная и санузел. Далее справа лестница на второй этаж и спальня. Прямо через холл можно попасть в гостиную и кухню, которые разделены перегородкой. Гостиная и кухня могут быть совмещены, здесь через витражное окно предусмотрен выход на террасу и далее на приусадебный участок. На втором этаже располагаются три спальных комнаты, санузел и гардеробная. С учетом крыльца и террасы площадь дома 163кв.м. Фундамент дома - железобетонный монолитный ленточный на сваях. Стены дома выполнены по трехслойной системе с наружным слоем из керамического лицевого кирпича 1.4НФ, слоем теплоизоляции из минваты / пенополистирола, внутренним слоем из пустотелого керамического кирпича 2.1НФ поротерм. Полы первого и второго этажей выполнены по железобетонным плитам. Чердачное перекрытие - по деревянным балкам. Крыша - металлочерепица по деревянной стр

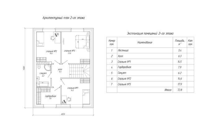
О планировочном решении. На первом этаже дома располагаются по входу через крыльцо - тамбур-прихожая, далее холл с нишей под шкаф-купе, сразу слева находятся котельная и санузел. Далее справа лестница на второй этаж и спальня. Прямо через холл можно попасть в гостиную и кухню, которые разделены перегородкой. Гостиная и кухня могут быть совмещены, здесь через витражное окно предусмотрен выход на террасу и далее на приусадебный участок. На втором этаже располагаются три спальных комнаты, санузел и гардеробная. С учетом крыльца и террасы площадь дома 163кв.м.

Фундамент дома - железобетонный монолитный ленточный на сваях. Стены дома выполнены по трехслойной системе с наружным слоем из керамического лицевого кирпича 1.4НФ, слоем теплоизоляции из минваты / пенополистирола, внутренним слоем из пустотелого керамического кирпича 2.1НФ поротерм. Полы первого и второго этажей выполнены по железобетонным плитам. Чердачное перекрытие - по деревянным балкам. Крыша - металлочерепица по деревянной стропильной системе. Возможны другие варианты конструктивных решений по согласованию с заказчиком.

Далее прилагаются фасады дома.

Пост автора pm16ru.

Узнать, что думают пикабушники.