Добавить в корзинуПозвонить
Найти в Дзене
АО «ТАМАК»

Двухэтажный коттедж 10 на 9

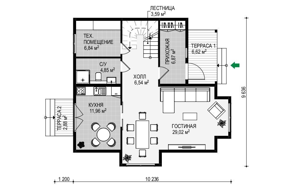
Двухэтажный коттедж «Баден–134» выглядит солидно и стильно, а также гарантирует высокий уровень комфорта проживания благодаря тщательно продуманному зонированию 143,6 м² общей площади. Планировка предусматривает наличие отдельной кухни, просторной гостиной, 3 спален. Обратите внимание на раздельное расположение ванной комнаты и санузла на втором этаже. План 1 этажа: План 2 этажа: Характеристики проекта: Общая площадь: 143,65 м²
Площадь помещений: 134,15 м²
Площадь террас и балконов: 9,5 м²
Общая площадь 1 этажа: 79,17 м²
Общая площадь 2 этажа: 64,48 м²
Спальни, шт.: 3
Санузлы, шт.: 3
Техническое помещение: да Ваша оценка данного дома: Мы производим долговечные дома «Тhermomak Haus». Для конструкции дома используются экологичные и прочные монолитные цементно-стружечные плиты плотностью 1250-1400 кг/м³ собственного производства АО «ТАМАК». Каркас дома изготавливается из древесины поставляемой из экологически чистых регионов России - с севера европейской части, Урала и Сибири. Пилома

Двухэтажный коттедж «Баден–134» выглядит солидно и стильно, а также гарантирует высокий уровень комфорта проживания благодаря тщательно продуманному зонированию 143,6 м² общей площади. Планировка предусматривает наличие отдельной кухни, просторной гостиной, 3 спален. Обратите внимание на раздельное расположение ванной комнаты и санузла на втором этаже.

План 1 этажа:

-2

План 2 этажа:

-3

Характеристики проекта:

Общая площадь: 143,65 м²
Площадь помещений: 134,15 м²
Площадь террас и балконов: 9,5 м²
Общая площадь 1 этажа: 79,17 м²
Общая площадь 2 этажа: 64,48 м²
Спальни, шт.: 3
Санузлы, шт.: 3
Техническое помещение: да

Ваша оценка данного дома:

Мы производим долговечные дома «Тhermomak Haus». Для конструкции дома используются экологичные и прочные монолитные цементно-стружечные плиты плотностью 1250-1400 кг/м³ собственного производства АО «ТАМАК». Каркас дома изготавливается из древесины поставляемой из экологически чистых регионов России - с севера европейской части, Урала и Сибири. Пиломатериал проходит строгий входящий контроль, автоматическую калибровку, сортировку и промышленную сушку. В готовых конструкциях пиломатериал не подвергается негативным воздействиям.

Телефон: 8(800)300-89-77

Наш сайт: https://tamak.ru/