Добавить в корзинуПозвонить
Найти в Дзене
DIVAN.RU

ДО/ПОСЛЕ: капитальный ремонт советской трешки за 2,5 млн рублей

«Убитую» квартиру 70 кв.м в старой панельке превратили в модное минималистичное пространство с настроением 70-х. О КВАРТИРЕ
Где: г. Ростов-на-Дону
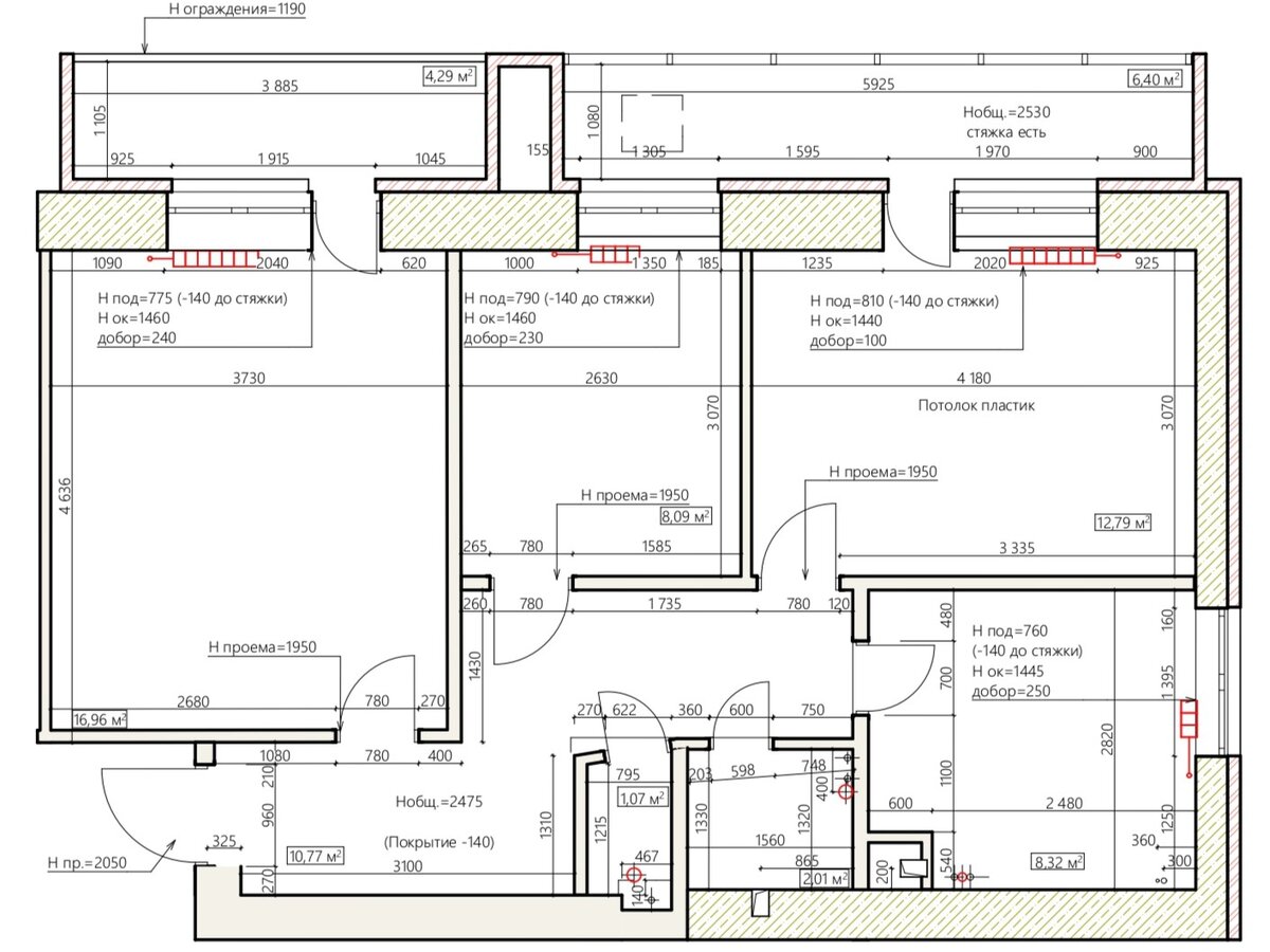
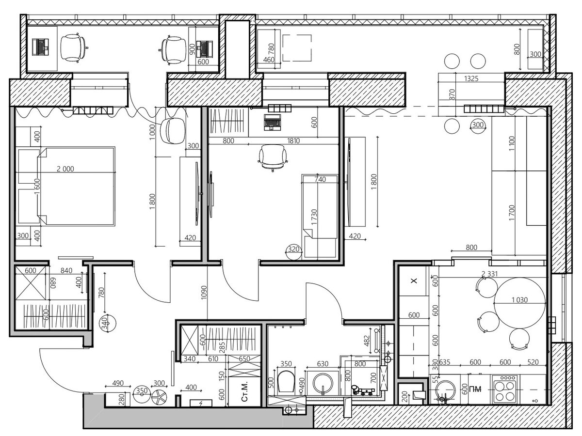
Объект: трехкомнатная квартира 70 кв.м Квартира расположена в панельном доме 1970 года постройки. На момент покупки жилье было в плачевном состоянии. Заказчики мечтали о просторном и светлом минималистичном пространстве, поэтому ремонт начали с перепланировки: изменили назначение комнат, снесли стены между кухней, спальней и коридором, объединили туалет и ванную. От старой отделки полностью избавились, заменили электрику и окна. Оставили только чугунные радиаторы как напоминание об эпохе постройки дома. Кухня-гостиная Зоны кухни и гостиной разделили прозрачной перегородкой, на пол в кухне уложили керамогранит под бетон. Имитация битой плитки на фартуке и полубарная стойка из терраццо — еще одна отсылка к истории дома. Кухонный гарнитур в цвет стен изготовили на заказ. Расставленные в интерьере акценты синего, охристого, рыжего оттенков перед
Оглавление

«Убитую» квартиру 70 кв.м в старой панельке превратили в модное минималистичное пространство с настроением 70-х.

О КВАРТИРЕ
Где:
г. Ростов-на-Дону
Объект: трехкомнатная квартира 70 кв.м

Квартира расположена в панельном доме 1970 года постройки. На момент покупки жилье было в плачевном состоянии. Заказчики мечтали о просторном и светлом минималистичном пространстве, поэтому ремонт начали с перепланировки: изменили назначение комнат, снесли стены между кухней, спальней и коридором, объединили туалет и ванную.

От старой отделки полностью избавились, заменили электрику и окна. Оставили только чугунные радиаторы как напоминание об эпохе постройки дома.

Кухня-гостиная

Зоны кухни и гостиной разделили прозрачной перегородкой, на пол в кухне уложили керамогранит под бетон. Имитация битой плитки на фартуке и полубарная стойка из терраццо — еще одна отсылка к истории дома. Кухонный гарнитур в цвет стен изготовили на заказ.

Проект Анастасии Кудяшевой, автор фото: Нинель Чинова
Проект Анастасии Кудяшевой, автор фото: Нинель Чинова

Расставленные в интерьере акценты синего, охристого, рыжего оттенков передают атмосферу 70-х годов прошлого века — такие цвета можно заметить на торцах домов советского периода.

На пол в зоне гостиной уложили ламинат, стены оклеили обоями Rasch производства Германии. Для стены за диваном выбрали темный оттенок, остальные поверхности на пару тонов светлее.

В кадре диван Виена, divan.ru от 52 990₽* >>

-7

🎁️ Этот диван сейчас можно купить со скидкой 20 000₽! Дарим двойные бонусы за покупки на праздничной распродаже в divan.ru >>

В центре внимания в гостиной — ярко-рыжий диван Виена от divan.ru в обивке из практичного флока. Диван раскладывается в просторное спальное место на случай, если гости решат остаться на ночь.

Кстати: обивку для дивана подобрали в конструкторе мебели divan.ru. В квартире живет кошка, а флок отлично выдерживает испытание коготочками. Чтобы точно не ошибиться с оттенком, на сайте divan.ru можно заказать образцы тканей на дом >>

Проект Анастасии Кудяшевой, автор фото: Нинель Чинова
Проект Анастасии Кудяшевой, автор фото: Нинель Чинова

Спальня

Стену за изголовьем украсили фреской в оттенках заката. Кровать и прикроватные тумбы заказали у местных производителей.

Проект Анастасии Кудяшевой, автор фото: Нинель Чинова
Проект Анастасии Кудяшевой, автор фото: Нинель Чинова

Обратите внимание: интересный эффект создает отражение фрески в зеркале над туалетным столиком. Столик заказчики перевезли из предыдущей квартиры и дополнили дизайнерским стулом. Для хранения в спальне обустроили функциональную гардеробную.

Прихожая

Прихожую удалось освободить от «тяжелых» габаритных шкафов, ограничились вешалкой в форме кактуса и обувницей при входе. Для верхней одежды есть гардеробная.

Прием: в коридоре нет потолочных светильников, пространство освещается только настенными бра. Таким образом дизайнер поддержала минималистичную концепцию оформления. Акцентом служит панно из битой мозаики в цветах интерьера.

Оцените интерьер в комментариях, а если материал понравился — не забудьте поставить лайк👍

🖤divan.ru — не только блог про интерьеры, но и производитель доступной дизайнерской мебели. Ищите новые идеи и переходите на сайт, чтобы воплотить их в жизнь.

*Цены актуальны на момент публикации статьи