Добавить в корзинуПозвонить
Найти в Дзене

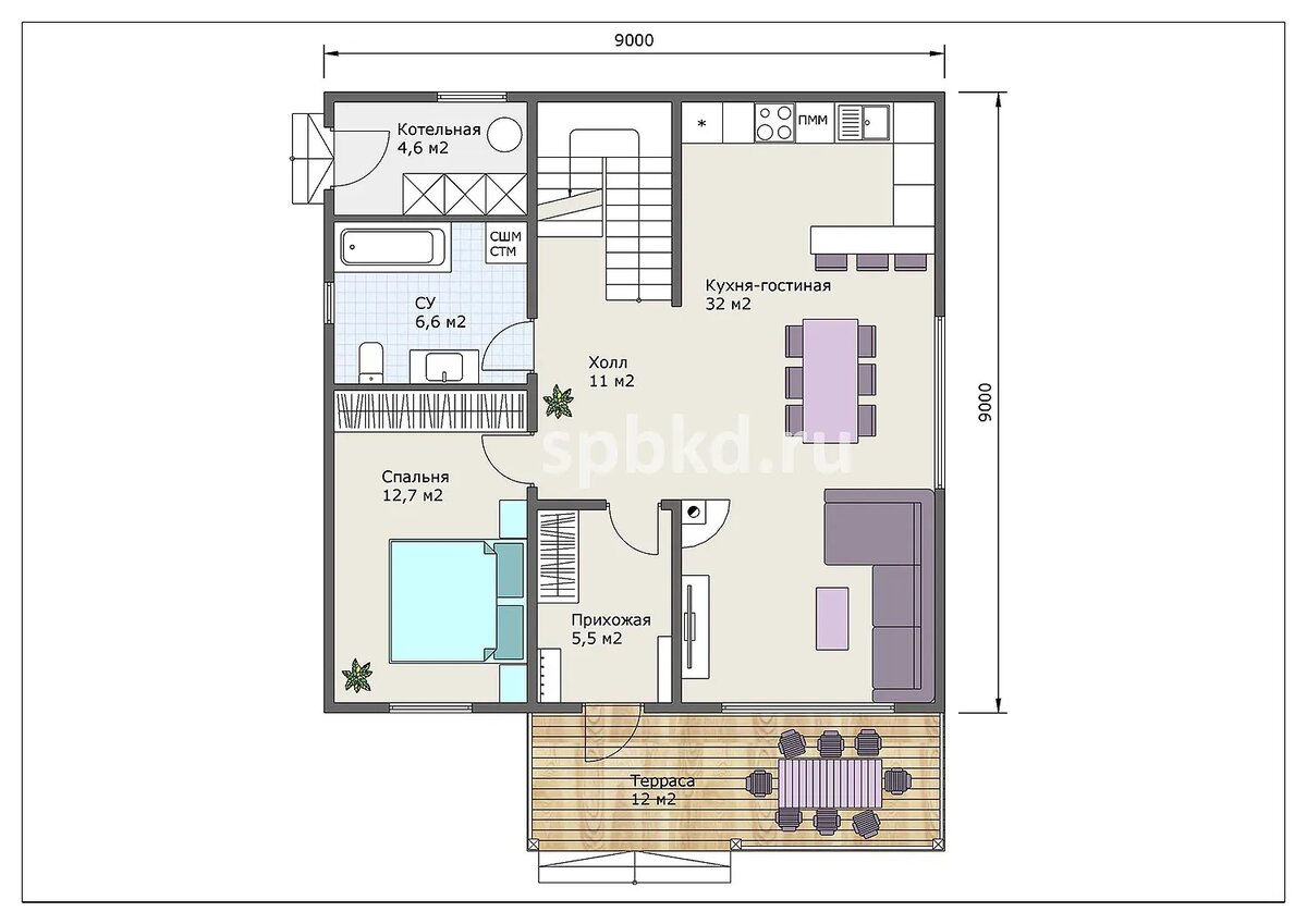
Купить двухэтажный каркасный дом 9 на 9 м для постоянного проживания по ЦЕНЕ двухкомнатной квартиры в 20 минутах от города.

Получить дом для постоянного проживания с максимально возможной площадью в рамках бюджета. Дом должен быть в стадии завоза мебели. Для решения данной задачи был выбран наш стандартный проект "Лисий нос". Данный проект имеет габариты 9х9 метров и является очень оптимизированным в плане раскроя материала, что позволяет значительно экономить на обрезках. Так же были убраны "кукушки" с мансарды, чтобы уменьшить стоимость возведения мансардного этажа как по работам так и по материалам. Внутренняя отделка каркасного дома. Использовались качественные материалы и современные решения. Более подробную информацию по строительству данного дома вы можете посмотреть на нашем сайте. В нашей компании Вы можете купить уже готовый каркасный дом с участком. Так же мы можем построить каркасный дом на вашем участке в Ленинградской области по данному проекту или по любому другому индивидуальному проекту. Вы можете задать вопросы в комментариях, написать нам на электронную почту или позвонить по телефону.

Получить дом для постоянного проживания с максимально возможной площадью в рамках бюджета. Дом должен быть в стадии завоза мебели.

Двухэтажный каркасный дом 9 на 9 м
Двухэтажный каркасный дом 9 на 9 м

Для решения данной задачи был выбран наш стандартный проект "Лисий нос".

Данный проект имеет габариты 9х9 метров и является очень оптимизированным в плане раскроя материала, что позволяет значительно экономить на обрезках. Так же были убраны "кукушки" с мансарды, чтобы уменьшить стоимость возведения мансардного этажа как по работам так и по материалам.

Внутренняя отделка каркасного дома. Использовались качественные материалы и современные решения.

Более подробную информацию по строительству данного дома вы можете посмотреть на нашем сайте.

В нашей компании Вы можете купить уже готовый каркасный дом с участком. Так же мы можем построить каркасный дом на вашем участке в Ленинградской области по данному проекту или по любому другому индивидуальному проекту.

Вы можете задать вопросы в комментариях, написать нам на электронную почту или позвонить по телефону. Мы обязательно ответим на все вопросы.

Ставьте лайк и подписывайтесь на наш канал! Следите за этапами строительства каркасных домов по интересующему Вас проекту!

#каркасный дом