Добавить в корзинуПозвонить
Найти в Дзене
DIVAN.RU

Яркая евротрешка с цветными стенами для молодой семьи

Терракотовая кухня с зеленым гарнитуром, геометрические принты в гостиной и спальне. Только детская в этой квартире получилась «спокойной». О КВАРТИРЕ
Где: г. Санкт-Петербург, Фрунзенский район
Объект: евротрешка 96 кв.м
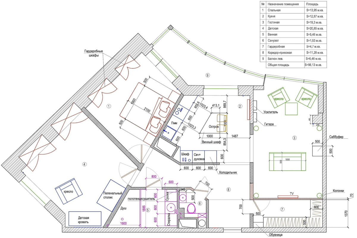
Дизайнер интерьера: Анастасия Заркуа Владельцы этой трешки — семейная пара с маленькой дочкой — получили квартиру в наследство. Ремонта здесь не было с начала 2000-х годов. Особенность квартиры — нестандартная форма: почти все комнаты здесь с неправильными углами. Кухню и гостиную объединили проходом. При этом в зону отдыха можно попасть из коридора, не пересекая зону кухни. Часть площади гостиной отдали под гардеробную при входе. Спальни и санузел оставили на своих местах. В спальнях конструктивно были предусмотрены ниши — их задействовали под хранение. Кухня Мебель в кухне изготовлена на заказ — стены с неправильной геометрией не позволили вписать готовое решение. В центре кухни — круглый обеденный стол и стулья из прозрачного пластика. Они вносят в интерьер «легкост
Оглавление

Терракотовая кухня с зеленым гарнитуром, геометрические принты в гостиной и спальне. Только детская в этой квартире получилась «спокойной».

Проект Анастасии Заркуа, автор фото: Татьяна Никитина
Проект Анастасии Заркуа, автор фото: Татьяна Никитина

О КВАРТИРЕ
Где:
г. Санкт-Петербург, Фрунзенский район
Объект: евротрешка 96 кв.м
Дизайнер интерьера: Анастасия Заркуа

Владельцы этой трешки — семейная пара с маленькой дочкой — получили квартиру в наследство. Ремонта здесь не было с начала 2000-х годов. Особенность квартиры — нестандартная форма: почти все комнаты здесь с неправильными углами.

Кухню и гостиную объединили проходом. При этом в зону отдыха можно попасть из коридора, не пересекая зону кухни. Часть площади гостиной отдали под гардеробную при входе. Спальни и санузел оставили на своих местах. В спальнях конструктивно были предусмотрены ниши — их задействовали под хранение.

-2

Кухня

Мебель в кухне изготовлена на заказ — стены с неправильной геометрией не позволили вписать готовое решение. В центре кухни — круглый обеденный стол и стулья из прозрачного пластика. Они вносят в интерьер «легкость» и не перегружают пространство.

Проект Анастасии Заркуа, автор фото: Татьяна Никитина
Проект Анастасии Заркуа, автор фото: Татьяна Никитина

Гостиная

Для отделки стен в гостиной выбрали флизелиновые обои терракотового цвета. Ниши оклеили обоями с ярким орнаментом. Их оттенок перекликается с обивкой дивана и фартуком в кухне.

Кстати: диван для зоны отдыха приобрели у бренда divan.ru. Цвет обивки подобрали под оттенок обоев с принтом. Чтобы точно не ошибиться с оттенком, на сайте divan.ru можно заказать образцы тканей на дом >>

В кадре диван Слипсон, divan.ru от 49 990₽* >>

-5

🎁️ Этот диван сейчас можно купить со скидкой 26 000₽! Дарим двойные бонусы за покупки на праздничной распродаже в divan.ru >>

Спальня

Интерьер спальни построен на контрасте — синие стены и кровать в желтой обивке. Изголовье оклеили обоями с оригинальным рисунком, который «собрал» интерьер комнаты воедино.

В кадре кровать Слипсон, divan.ru от 33 990₽* >>

Детская комната

В цветовой палитре детской ушли от стандартных розовых оттенков. Для оформления взяли коралловый цвет — к нему подбирали остальную обстановку. Как и в спальне, два шкафа от IKEA встроили в существующие ниши.

Прихожая

В прихожей нет шкафов, только гардеробная, расположенная сразу при входе. В нее хозяева убирают обувь, верхнюю одежду и детский инвентарь.

Проект Анастасии Заркуа, автор фото: Татьяна Никитина
Проект Анастасии Заркуа, автор фото: Татьяна Никитина

Санузел

Ванная полностью облицована керамогранитом. Функциональное решение — столешница во всю длину стены. Посередине установили раковину, по бокам под столешницей — сушильная и стиральная машины. Большое прямоугольное зеркало добавляет глубины и света маленькому пространству.

Проект Анастасии Заркуа, автор фото: Татьяна Никитина
Проект Анастасии Заркуа, автор фото: Татьяна Никитина

Чтобы визуально уравновесить нестандартную форму помещения, душевую зону обустроили в углу. Поддон в строительном исполнении тоже из керамогранита.

Оцените интерьер в комментариях, а если материал понравился — не забудьте поставить лайк👍

🖤divan.ru — не только блог про интерьеры, но и производитель доступной дизайнерской мебели. Ищите новые идеи и переходите на сайт, чтобы воплотить их в жизнь.

*Цены актуальны на момент публикации статьи