Добавить в корзинуПозвонить
Найти в Дзене
ЭВАстрой

Проект дома 226 м2 с мансардой, гаражом, балконом и террасой

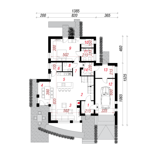
Тёплый и прочный загородный дом общей площадью 226 м2. В нем присутствуют детали, значительно улучшающие качество жизни. В частности: В оформлении коттеджа, кроме универсальной штукатурки, немалую долю занимает облицовочный камень. Этим красивым и прочным материалом полностью отделана пристройка, эркер главного фасада, фрагменты стен, а также фундамент. Третьим элементом дизайна выступает деревянный планкен. Планировка Из тамбура, следуя прямо, проходим в холл, откуда начинается лестница наверх. Дверь слева ведет в пристройку, где обустроена теплая парковка для авто. За гаражом находится подсобное помещение, откуда можно выйти на улицу или снова зайти в дом через котельную-прачечную. Благодаря двум прямоугольным эркерам, гостиная и столовая разместились в отдельных нишах. К дневной зоне прилагает терраса (выход — из столовой), соединенная дорожкой с крыльцом. Особенности кухни — отдельная кладовая и остров-плита с местами для трапез. Кроме того, на первом этаже есть удобная,
Проект дома 226 м2 с мансардой, гаражом, балконом и террасой - 103-12
Проект дома 226 м2 с мансардой, гаражом, балконом и террасой - 103-12

Тёплый и прочный загородный дом общей площадью 226 м2. В нем присутствуют детали, значительно улучшающие качество жизни. В частности:

  • жилая мансарда;
  • одноместный гараж, соединенный с домом через тамбур;
  • открытые террасы, в том числе на втором этаже;
  • балконы.
Проект дома 226 м2 с мансардой, гаражом, балконом и террасой - 103-12
Проект дома 226 м2 с мансардой, гаражом, балконом и террасой - 103-12

В оформлении коттеджа, кроме универсальной штукатурки, немалую долю занимает облицовочный камень. Этим красивым и прочным материалом полностью отделана пристройка, эркер главного фасада, фрагменты стен, а также фундамент. Третьим элементом дизайна выступает деревянный планкен.

Планировка

Проект дома 226 м2 с мансардой, гаражом, балконом и террасой - 103-12
Проект дома 226 м2 с мансардой, гаражом, балконом и террасой - 103-12

Из тамбура, следуя прямо, проходим в холл, откуда начинается лестница наверх. Дверь слева ведет в пристройку, где обустроена теплая парковка для авто. За гаражом находится подсобное помещение, откуда можно выйти на улицу или снова зайти в дом через котельную-прачечную.

Благодаря двум прямоугольным эркерам, гостиная и столовая разместились в отдельных нишах. К дневной зоне прилагает терраса (выход — из столовой), соединенная дорожкой с крыльцом. Особенности кухни — отдельная кладовая и остров-плита с местами для трапез.

Кроме того, на первом этаже есть удобная, отлично обустроенная комната с гардеробной, санузлом-душевой и ТВ. От шумной дневной зоны эта комната отделена техническими помещениями, поэтому здесь всегда тихо.

Проект дома 226 м2 с мансардой, гаражом, балконом и террасой - 103-12
Проект дома 226 м2 с мансардой, гаражом, балконом и террасой - 103-12

Мансарда состоит из трех комнат с балконами и гардеробными, общей ванной и холла-гостиной, откуда можно выйти на террасу над гаражом. Ширина террасы — 3,6 м; этого достаточно, чтобы поставить шезлонги, чайный столик и вазоны с цветущими растениями.

Решили остановиться на этом отличном проекте мансардного европейского дома? Поздравляем с прекрасным выбором и предлагаем приступить к покупке документации. Всю необходимую информацию вам предоставят наши менеджеры. После этого останется лишь построить дом. Но даже и этот шаг вы можете поручить специалистам компании «Эвастрой» и всего через несколько месяцев переехать со своей семьей в собственное жилье!

Для покупки проекта 103–12 оставьте заявку на сайте или свяжитесь с менеджерами «Эвастрой» по контактному телефону +7 (495) 175-30-42.

103-12 – проект европейского двухэтажного дома с гаражом до 250 кв м