Найти в Дзене

Квартира в сталинке 60м2 для семьи в светлых оттенках с пастельными акцентами (современный стиль)

Дизайн-проект квартиры со светло-зелеными акцентами в сочетании с теплом натурального дерева в интерьере Нужно сделать ремонт, но средства ограничены? Рассчитайте цену ремонта заранее здесь: 👉рассчитать👈. Расчёт бесплатный, и занимает меньше минуты! Прихожая оформлена в белых тонах с элементами натурального дерева, создающими теплую и светлую атмосферу; акцентным элементом служит зеленый пуфик у входа. На полу уложена паркетная елочка, предусмотрены удобные полочки для хранения и зеркало в полный рост, визуально расширяющее пространство. Кухня оформлена с использованием плитки-шестигранника на полу, нижние шкафы выполнены в зелёном цвете, а верхние — в белом, создавая свежий и стильный контраст. Уютный круглый деревянный столик для двоих дополняет интерьер, а стеклянная дверь в лоджию обеспечивает обилие естественного света. Гостиная оформлена с паркетной елочкой на полу, создающей единство с прихожей, и большим серым диваном, который служит центральным элементом зоны отдыха. С
Оглавление

Дизайн-проект квартиры со светло-зелеными акцентами в сочетании с теплом натурального дерева в интерьере

О квартире

  • Адрес: Квартира на Донской улице
  • Кол-во комнат: 2
  • Площадь: 60 м²
  • Стиль: Современный
Нужно сделать ремонт, но средства ограничены? Рассчитайте цену ремонта заранее здесь: 👉рассчитать👈. Расчёт бесплатный, и занимает меньше минуты!

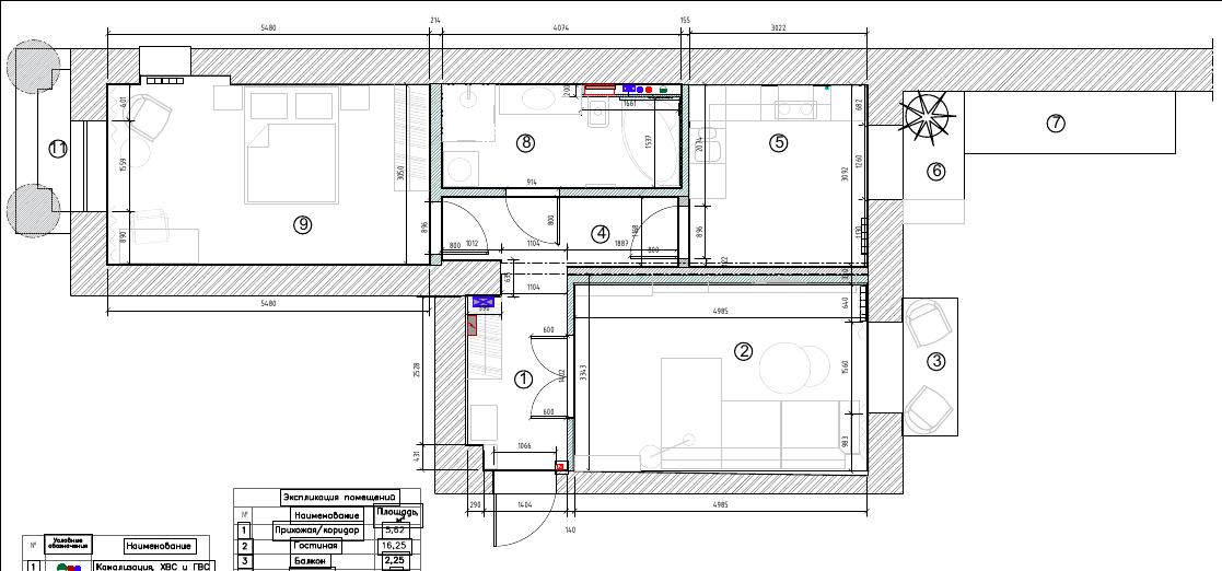
Планировка и план расстановки мебели в квартире
Планировка и план расстановки мебели в квартире

ПРИХОЖАЯ

Прихожая оформлена в белых тонах с элементами натурального дерева, создающими теплую и светлую атмосферу; акцентным элементом служит зеленый пуфик у входа.

-3

На полу уложена паркетная елочка, предусмотрены удобные полочки для хранения и зеркало в полный рост, визуально расширяющее пространство.

КУХНЯ

Кухня оформлена с использованием плитки-шестигранника на полу, нижние шкафы выполнены в зелёном цвете, а верхние — в белом, создавая свежий и стильный контраст.

-5

Уютный круглый деревянный столик для двоих дополняет интерьер, а стеклянная дверь в лоджию обеспечивает обилие естественного света.

-6

-7

Сколько стоит такой ремонт?

РАССЧИТАЙТЕ ЗДЕСЬ

ГОСТИНАЯ

Гостиная оформлена с паркетной елочкой на полу, создающей единство с прихожей, и большим серым диваном, который служит центральным элементом зоны отдыха.

Стена с телевизором украшена подвесной полкой и системой полок во всю стену, идеально подходящей для книг и декора.

-10

СПАЛЬНЯ

Спальня оформлена в светлых натуральных оттенках, создающих атмосферу уюта и спокойствия, с деревянным шкафом для одежды, гармонично вписывающимся в интерьер.

Рабочее место у окна добавляет функциональности, не нарушая общей легкости пространства.

-12

САНУЗЕЛ

Санузел функционально организован, вместив все необходимые элементы для комфорта заказчиков. Акцентная деревянная стена под елочку выделяет зону с раковиной, под которой расположен удобный ящик для хранения. Пространство включает:

  1. ванну
  2. душевую кабину
  3. встроенную зону для стиральной и сушильной машин

С чего начать ремонт?

-14

Domeo советует начать свой ремонт с 2х простых шагов:

  1. Рассчитать стоимость ремонта в 3-х вариантах и сравнить. Бесплатно получите расчет тут: ✅https://clck.ru/34YbSB
  2. Выбрать подходящего дизайнера для визуализации своих идей! Бесплатно выберите своего дизайнера здесь: ✅https://clck.ru/34YbPg
-15
-16