Добавить в корзинуПозвонить
Найти в Дзене
Вспоминая о лете

Приглашаю вас в свой дом, ремонтирую первую комнату

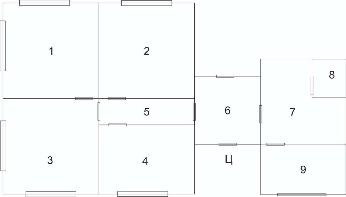
Продолжаю рассказывать о ходе ремонта в доме. Если помните, я устраняю последствия наводнения, которое случилось в наших краях прошлым летом. За пару месяцев мне удалось отремонтировать кухню, пришло время переместится в жилые комнаты, но рассказ мой будет неполным без плана дома и его небольшой истории. Наш дом Нашему дому чуть больше тридцати лет, он построен семьёй моего мужа. Именно семьёй, потому что в строительстве принимали участие все: главной ударной силой были бабушка с дедушкой, на подхвате - мама и папа мужа, и сам он, тогда подросток, тоже активно помогал на стройке. Помнит и знает об этом доме всё - каждый угол, каждую щель и трещинку. Дом сложен из силикатного кирпича, крепкий, надёжный, тёплый. Площадь его почти девяносто квадратных метров, четыре комнаты, шесть огромных окон. Я набросала приблизительный план, для тех, кому будет интересно ( нет, промотайте вниз): Ц - центральный вход, ведет в холодный коридор (6), соединяющий основной дом с кухней. 1,2,3,4 - жилые ком
Оглавление

Продолжаю рассказывать о ходе ремонта в доме. Если помните, я устраняю последствия наводнения, которое случилось в наших краях прошлым летом.

За пару месяцев мне удалось отремонтировать кухню, пришло время переместится в жилые комнаты, но рассказ мой будет неполным без плана дома и его небольшой истории.

Наш дом

Нашему дому чуть больше тридцати лет, он построен семьёй моего мужа. Именно семьёй, потому что в строительстве принимали участие все: главной ударной силой были бабушка с дедушкой, на подхвате - мама и папа мужа, и сам он, тогда подросток, тоже активно помогал на стройке. Помнит и знает об этом доме всё - каждый угол, каждую щель и трещинку.

Дом сложен из силикатного кирпича, крепкий, надёжный, тёплый. Площадь его почти девяносто квадратных метров, четыре комнаты, шесть огромных окон. Я набросала приблизительный план, для тех, кому будет интересно ( нет, промотайте вниз):

Ц - центральный вход, ведет в холодный коридор (6), соединяющий основной дом с кухней.

1,2,3,4 - жилые комнаты

5 - прихожая

7 - кухня

8 - санузел

9 - котельная

-2

Я решила, что следующей будет ремонтироваться комната №4. Она с момента постройки дома называется "Библиотека".

Библиотека

Почему библиотека? Потому что у каждой из четырёх комнат было назначение: спальня дедушки, спальня бабушки, общая гостинная - "зал", и "библиотека" - что-то вроде гостевой комнаты, целую стену в которой действительно занимал стеллаж с книгами.

Вот так выглядела комната, когда мы приехали сюда 13 лет назад. Так же, как и после постройки почти:

-3

Как вы уже могли понять, я к нашему дому отношусь с большим уважением, если не сказать с трепетом. В него вложена душа, и это ощущается. Это не просто кирпичная коробка - это детство моего мужа, огромная и важная часть его жизни. Поэтому, затевая ремонт, я сразу решила: дом не должен преобразиться до неузнаваемости, его характер и атмосфера должны остаться неизменными.

И библиотека останется (гостевой) библиотекой и дальше. Всё, что сделано руками дедушки и бабушки я решила максимально сохранить. Только немного осовременить, выкрасить и подновить.

А работы намечалось ой-ой: почему-то библиотека от наводнения пострадала больше всех, и ее сложнее всего было просушить. Солнце в нее попадает только утром, одна стена северная, окно смотрит во двор и почти всегда скрыто в тени винограда. Изначально, это самая тёмная и сырая комната в доме, которой к тому же изрядно досталось.

Разрушенная наводнением:

-4

Ремонт

Пока ремонтировали кухню и сушили дом, использовали библиотеку, как склад. Когда пришло время ремонта, мы вынесли все ненужное, и я начала избавляться от остатков обоев, на что потратила приличное количество времени. Дальше листайте галереи:

Старые советские обои в два слоя наклеенные на хороший качественный советский обойный клей. Их приходилось размачивать из пульверизатора водой, кое-где шпателем, а кое-где канцелярским ножом снимать мельчайшие лоскутки, доводя всё до идеала металлической щёткой.

На первой фотографии виден сырой угол, который никак не хочет высыхать:

Забыла сказать, что ещё ранней осенью, когда мы распределяли наш бюджет на ремонт (наш очень скромный бюджет) мы решили (по сусекам поскрести, по амбарам помести, растрясти все свои финансовые "заначки) сделать откосы на все окна. Помог нам в этом отличный мастер, которого порекомендовала приятельница - преимущества жизни в маленьком городе, где все друг друга знают.

Когда стены были очищены, я в первую очередь привела в порядок батарею отопления:

Под обоями оказалась бетонная штукатурка приличного качества и я, недолго думая, решила ее просто покрасить. Прогрунтовала, заколеровала краску и приступила:

На последней фотографии стена в утреннем свете. Приятная фактура получилась, как мне кажется.

Расстелили линолеум, положили плинтуса, когда он отлежался.

Занесли мебель. И это практически вся мебель, что сохранилась в доме, остальное после наводнения пришлось выбросить. Но что-то ещё ждёт починки.

Как видите, основное назначение комнаты - библиотека)) Всё по плану.

Серый цвет стен при разном освещении выглядит очень по-разному. Остались детали - люстра, напольный светильник, гардина и шторы. Декор на стену. Всё это постепенно будет доделываться. Пока мы решили сделать "базу" - ремонт, в котором можно будет жить и постепенно добавлять уюта.

Комнату, кстати, уже "обновили" - на новогодних каникулах в ней жили дети. Так же до нового года я успела сделать прихожую и санузел. Об этом расскажу в следующий раз.

А пока вот - гостинная в процессе ремонта. Обещаю рассказать и о ней тоже))

-11