Найти в Дзене

Вау! Я хочу здесь жить! 🥰Шикарнейший интерьер трёшки!

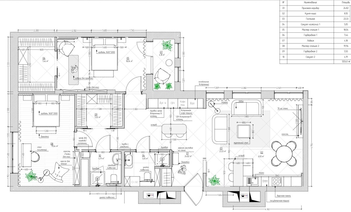
Проект этой квартиры просто поражает! Стильный современный интерьер, глядя на который просто хочется жить в этой квартире! Убедитесь в этом сами!👇 Трёшка, 120м²
Заказчик — взрослая супружеская пара Domeo советует начать свой ремонт с 2-х простых шагов: 1. Рассчитать стоимость ремонта в 3-х вариантах и сравнить. Бесплатно получите расчет тут: ✅ https://clck.ru/35q9C9 2. Выбрать подходящего дизайнера для визуализации своих идей! Бесплатно выберите своего дизайнера здесь: ✅ https://clck.ru/35q9Ds Согласитесь, интерьер просто шикарный! Поделитесь своим мнением в комментариях!👇 Вам точно понравятся эти статьи:👇 Не знаете, чем закрыть некрасивое пространство под ванной? Показываю 7 СУПЕР идей Так уже сто лет никто не делает! 7 устаревших приемов для ванной “Почему моя квартира так плохо выглядит?” 7 ошибок, делающих интерьер скучным
Оглавление

Проект этой квартиры просто поражает! Стильный современный интерьер, глядя на который просто хочется жить в этой квартире! Убедитесь в этом сами!👇

ПРОЕКТ

Трёшка, 120м²
Заказчик — взрослая супружеская пара

Источник: Domeo https://domeo.ru/portfolio
Источник: Domeo https://domeo.ru/portfolio

Хотите качественный ремонт квартиры?👇

-2

✅РАССЧИТАЙТЕ БЕСПЛАТНО ЗДЕСЬ✅


Что интересного мы здесь сделали?

  • Выбрали насыщенную цветовую гамму: тепло-серые оттенки подчеркнули глубокими графитовыми тонами и золотыми акцентами.
  • Использовали натуральный мрамор: это покрытие выглядит роскошно, а еще оно безопасно и служит годами.
  • Разделили кухню на две зоны: место для готовки и обеденную группу объединили с гостиной, а вот зону хранения и место для утреннего кофе — с холлом квартиры. Получилось единое пространство, гармоничное и очень просторное.

КУХНЯ-ГОСТИНАЯ

СПАЛЬНЯ

Сколько стоит такой ремонт?👇

-7

РАССЧИТАЙТЕ ЗДЕСЬ

КАБИНЕТ

ЛОДЖИЯ

САНУЗЕЛ

-11
Domeo советует начать свой ремонт с 2-х простых шагов:
1. Рассчитать стоимость ремонта в 3-х вариантах и сравнить. Бесплатно получите расчет тут: ✅ https://clck.ru/35q9C9
2. Выбрать подходящего дизайнера для визуализации своих идей! Бесплатно выберите своего дизайнера здесь: ✅ https://clck.ru/35q9Ds
-12

Согласитесь, интерьер просто шикарный! Поделитесь своим мнением в комментариях!👇

Вам точно понравятся эти статьи:👇

Не знаете, чем закрыть некрасивое пространство под ванной? Показываю 7 СУПЕР идей
Так уже сто лет никто не делает! 7 устаревших приемов для ванной
“Почему моя квартира так плохо выглядит?” 7 ошибок, делающих интерьер скучным
-13