Найти в Дзене

5 планировочных решений для загородного дома, которые повысят уровень комфорта

Рассказываем про недорогие планировочные решения помогут повысить уровень комфорта в доме и избавиться от «квартирных привычек». Светопрозрачная входная дверь Живя в квартире, привыкаешь к сплошной металлической входной двери. Здесь она несет защитную функцию. К тому же за дверью находится подъезд, по которому регулярно ходят посторонние люди. В доме ситуация другая и дверь тоже можно использовать другую — светопрозрачную. Не обязательно она должна быть полностью стеклянной, достаточно небольшой вставки из стекла. Плюс такой двери в том, что через нее в прихожую проникает естественный свет, которого там обычно не хватает. Что же касается безопасности, то учитывая количество и расположение окон и выходов на террасу в современных домах, полагаться в этом вопросе лучше не на входную дверь, а на сигнализацию. Гостевой санузел Несмотря на название, санузел этот, конечно, предназначен не только для гостей. Гостевым называют санузел, расположенный при входе в дом. Обычно в нем есть только уни
Оглавление

Рассказываем про недорогие планировочные решения помогут повысить уровень комфорта в доме и избавиться от «квартирных привычек».

Светопрозрачная входная дверь

Живя в квартире, привыкаешь к сплошной металлической входной двери. Здесь она несет защитную функцию. К тому же за дверью находится подъезд, по которому регулярно ходят посторонние люди.

В доме ситуация другая и дверь тоже можно использовать другую — светопрозрачную. Не обязательно она должна быть полностью стеклянной, достаточно небольшой вставки из стекла. Плюс такой двери в том, что через нее в прихожую проникает естественный свет, которого там обычно не хватает. Что же касается безопасности, то учитывая количество и расположение окон и выходов на террасу в современных домах, полагаться в этом вопросе лучше не на входную дверь, а на сигнализацию.

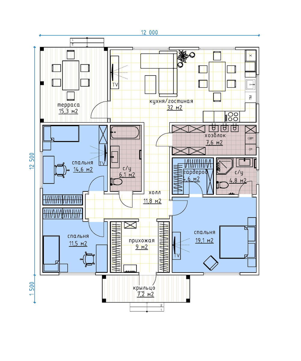
Гостевой санузел

Несмотря на название, санузел этот, конечно, предназначен не только для гостей. Гостевым называют санузел, расположенный при входе в дом. Обычно в нем есть только унитаз и раковина. Здесь можно помыть руки, придя домой. А гости, которые отдыхают во дворе, могут воспользоваться санузлом, не заходя в жилую зону.

Выход на террасу из кухни

Если вы любите семейные завтраки или шумные застолья в большой компании на террасе, то советуем продумать планировку так, чтобы путь с кухни до террасы был минимальным. Накрыть на стол, забежать в дом за солью или соком, принести штопор удобнее всего, если войти с террасы или двора в дом можно сразу на кухню.

Бывает, что выход на террасу делают из гостиной. Когда она совмещена с кухней, это тоже неплохой вариант. Но в этом случае есть смысл продумать расстановку мебели так, чтобы не проходит между телевизором и теми, что смотрит его с дивана.

В компактном доме «Оптимум-140» от DMITRY DOM между кухней и террасой находится зона гостиной, но диван и телевизор стоят в стороне — проходящий не мешает отдыхающим
В компактном доме «Оптимум-140» от DMITRY DOM между кухней и террасой находится зона гостиной, но диван и телевизор стоят в стороне — проходящий не мешает отдыхающим

Постирочная — это может быть отдельная комната или ниша

Стиральная машина в ванной комнате или на кухне — вынужденная мера в квартирах, где сделать отдельную постирочную не позволяет либо площадь, либо ограничение на расположение мокрых зон.

Хорошая новость — в доме можно позволить себе удовольствие лежать в ванне без звуков от работающей рядом стиральной машины. Если дом небольшой, стиральную (и сушильную) машину можно поставить в нишу в стене. Своего рода встроенный шкаф с машинками внутри. Удобно расположить эту нишу рядом с санузлом или котельной, в одной мокрой зоне.

Если позволяет пространство, можно сделать отдельную постирочную комнату. В ней располагают машинки, места для хранения грязных и чистых вещей, гладильную доску, иногда добавляют техническую мойку для обуви.

Гардеробные, встроенные шкафы, кладовые

Если хочется переехать из квартиры в собственный дом, важно случайно не скопировать в доме «квартирную планировку», к которой мы так привыкли. Хранение вещей в шкафах (и на шкафах, и под ними, и за ними) — еще одна вынужденная квартирная мера, от которой стоит избавиться, переезжая в дом.

Для хранения одежды в доме включите в проект гардеробные комнаты и встроенные шкафы, а для пылесоса, лыж и солений обустройте кладовые. Подробно о том, в каких частях дома мы рекомендуем сделать шкафы и кладовые, и как их использовать, читайте в нашем прошлом материале.

Подписывайтесь на канал «Королёвского завода свай». Мы пишем про винтовые и забивные сваи, планировки и строительство, делимся своими проектами.