Добавить в корзинуПозвонить
Найти в Дзене
O R D E S I G N

Современная классика – интерьер квартиры 48,8 м2

Дизайн-проект интерьера небольшой квартиры, созданный для уютной и комфортной жизни человека в возрасте, где есть всё, что может содержать в себе историю и ностальгические нотки. Пожелание заказчицы –– женщины в возрасте, –– сделать так, чтобы было просторно, свежо и при этом удобно для пожилого человека. Это и стало основополагающим в выборе стиля: современная классика, но с уходом в уютное, любимое и знакомое людям старшего возраста. В работу досталась небольшая квартира в историческом центре Москвы, в районе метро Белорусская, в кирпичной пятиэтажке с ветхим ремонтом. Первое, что мы решили –– это увеличить высоту потолков за счёт вскрытия старой стяжки. Однако даже при этом, возможности делать потолки из гипсокартона не было, тк он "съел" бы высоту, которую хотелось, наоборот, увеличить. Для достижения максимального результата использовался приём со светом люстр, бра, часть которых перенесли на стены. В процессе работы была проведена полная перепланировка, снесены все стены, позволя
Оглавление

Дизайн-проект интерьера небольшой квартиры, созданный для уютной и комфортной жизни человека в возрасте, где есть всё, что может содержать в себе историю и ностальгические нотки.

Пожелание заказчицы –– женщины в возрасте, –– сделать так, чтобы было просторно, свежо и при этом удобно для пожилого человека. Это и стало основополагающим в выборе стиля: современная классика, но с уходом в уютное, любимое и знакомое людям старшего возраста.

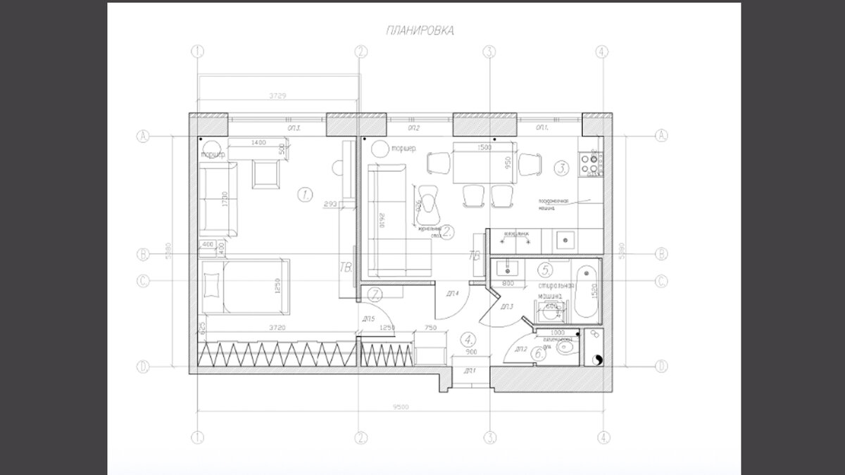
В работу досталась небольшая квартира в историческом центре Москвы, в районе метро Белорусская, в кирпичной пятиэтажке с ветхим ремонтом.

Первое, что мы решили –– это увеличить высоту потолков за счёт вскрытия старой стяжки. Однако даже при этом, возможности делать потолки из гипсокартона не было, тк он "съел" бы высоту, которую хотелось, наоборот, увеличить. Для достижения максимального результата использовался приём со светом люстр, бра, часть которых перенесли на стены.

В процессе работы была проведена полная перепланировка, снесены все стены, позволявшие это сделать, и возведены новые –– для большего удобства хозяйки. Как и во всех своих проектах, все действия связанные с перепланировкой –– это полный пакет документации, который проходит приёмку и соответствует всем существующим СНиП.

Подбор цветовой гаммы в интерьере

Цветовая гамма была выбрана в светлых, тёплых, уютных тонах. При этом в гостиной использована более холодная голубоватая палитра, которую «успокаивает» тёплое фактурное дерево. Большое значение мы уделили буфету под телевизором. Эта обязательная часть: здесь хозяйка будет хранить свои чашки и другую прекрасную посуду с историей.

Небольшая гостиная в светлых прохладных тонах, которые смягчаются теплыми оттенками дерева (пол, мебель)
Небольшая гостиная в светлых прохладных тонах, которые смягчаются теплыми оттенками дерева (пол, мебель)

Акцентная стена с фотографиями известного фотографа, которые расположены поверх молдингов, создавая тем самым творческую небрежность, делает пространство визуально больше и изысканней.

Акцентная стена с фотографиями, расположенными поверх настенных молдингов (вид со стороны кухни
Акцентная стена с фотографиями, расположенными поверх настенных молдингов (вид со стороны кухни

Полы –– «Французская ёлка», –– тёплого медового цвета. Тот же оттенок повторяется в мебели и в кухонном гарнитуре.

Открытая кухня –– вид из гостиной.
Открытая кухня –– вид из гостиной.

Небольшой коридор было решено выкрасить в достаточно яркий винный в сочетании с общей насыщенной зеленой гаммой. Дерево успокаивает и как бы связывает эти цвета. Такой прием делает маленький коридор интересным и более просторным по ощущениям.

Магия света в дизайне интерьера

Для дополнительной подсветки направленного света я использовала шинопровод –– это выход там, где «родные» оштукатуренные потолки. Такой метод позволяет минимизировать количество выводов кабеля под свет и позволяет крепить столько светильников, сколько требуется.

Как рассчитать по нормативам свет таким образом, чтобы было максимально комфортно, а также про магию света (направленный свет, рассеянный) и все прочие секреты изменения помещения при помощи правильного освещения –– я обязательно расскажу в отдельной статье, так как эта тема требует отдельного внимания и в два предложения её не уместить.

У входа в гостиную, бра в виде солнца и луны, задающие уютный и комфортный тон помещению за счёт разного освещения.
У входа в гостиную, бра в виде солнца и луны, задающие уютный и комфортный тон помещению за счёт разного освещения.

У входа в гостиную я разместила два светильника: солнце и луна. Это красивые декоративные бра с разной степенью освещения, с помощью чего задаём помещению комфортный, приятный тон.

Интерьер спальни

В спальне все необходимое, большой шкаф, маленькая кровать, пианино, стол рабочий и диванчик. Здесь мы комбинируем обои и покраску стен, что придаёт более уютную атмосферу.

Интерьер ванной комнаты

Ванна и туалет раздельные, оформлены в светлых тонах. Здесь мы также "поиграли со светом и цветом, добавив разноцветную плитку в нежных, пастельных тонах. Основной фон достаточно холодный, который смягчает эта самая плитка и фактура тёплого дерева в установленной мебели.

Весь ремонт обошелся клиентке в уместную сумму.
Все довольны.

–––––––––––––––––––––––––––––––––––––––––––––––––––––––––––––––––––––––––Принимаю заказы на дизайн интерьеров квартир в Сочи. А также Москве и в Крыму.
Заказать дизайн квартиры, дома, офиса, заведения:
Лена Малышева –– дизайнер интерьеров
+7 905 547-39-47
ordesign82@gmail.com