Найти в Дзене

Гостиная в современной квартире: планировка, дизайн, реальные фото

Гостиная — это место, где собирается вся семья, место для теплых встреч и вечерних посиделок. В этой статье я покажу несколько наших вариантов гостиных разных планировок и площадей с реальными фото. Привет! Меня зовут Карен Карапетян, я — архитектор и интерьерный дизайнер. Мы в компании Alexander Tischler проектируем и реализуем интерьеры, а также проектируем и производим корпусную мебель. Дизайн гостиной 16 м² Этот брутальный интерьер с яркими акцентами мы реализовали для молодого человека. Пожелание заказчика — сделать обособленные кухню и гостиную. Интерьер выполнен в серо-бежевых и темно-серых оттенках. В проекте мы использовали несколько повторяющихся деталей: перегородки, двери и фасады из тонированного стекла, яично-желтые предметы мебели, ребристые элементы. Из-за нашей перепланировки проход на кухню расположен теперь в гостиной, чтобы визуально объединить эти пространства, мы поставили дверь из тонированного стекла. Гостиная поделена на две зоны: строгая темная зона с графичн
Оглавление

Гостиная — это место, где собирается вся семья, место для теплых встреч и вечерних посиделок. В этой статье я покажу несколько наших вариантов гостиных разных планировок и площадей с реальными фото.

Привет! Меня зовут Карен Карапетян, я — архитектор и интерьерный дизайнер. Мы в компании Alexander Tischler проектируем и реализуем интерьеры, а также проектируем и производим корпусную мебель.

Дизайн гостиной 16 м²

Этот брутальный интерьер с яркими акцентами мы реализовали для молодого человека. Пожелание заказчика — сделать обособленные кухню и гостиную.

Интерьер выполнен в серо-бежевых и темно-серых оттенках. В проекте мы использовали несколько повторяющихся деталей: перегородки, двери и фасады из тонированного стекла, яично-желтые предметы мебели, ребристые элементы. Из-за нашей перепланировки проход на кухню расположен теперь в гостиной, чтобы визуально объединить эти пространства, мы поставили дверь из тонированного стекла.

Современная гостиная с диваном
Современная гостиная с диваном

Гостиная поделена на две зоны: строгая темная зона с графичным шкафом и светлая с просторным диваном, где можно отдохнуть. Напротив дивана мы установили подвесную ТВ-тумбу с активной текстурой дерева. Она состоит из двух частей: открытые полки и закрытый ящик для хранения.

Тумба под телевизор в гостиной
Тумба под телевизор в гостиной

В гостиной мы сделали дополнительное место для хранения — шкаф для книг, декора и посуды со стеклянным фасадом и светодиодной подсветкой.

Шкаф для книг с подсветкой в гостиной
Шкаф для книг с подсветкой в гостиной

Дизайн маленькой гостиной в однокомнатной квартире 38 м²

Небольшая площадь квартиры — не повод отказываться от гостиной. Даже в небольшом пространстве можно организовать место для отдыха.

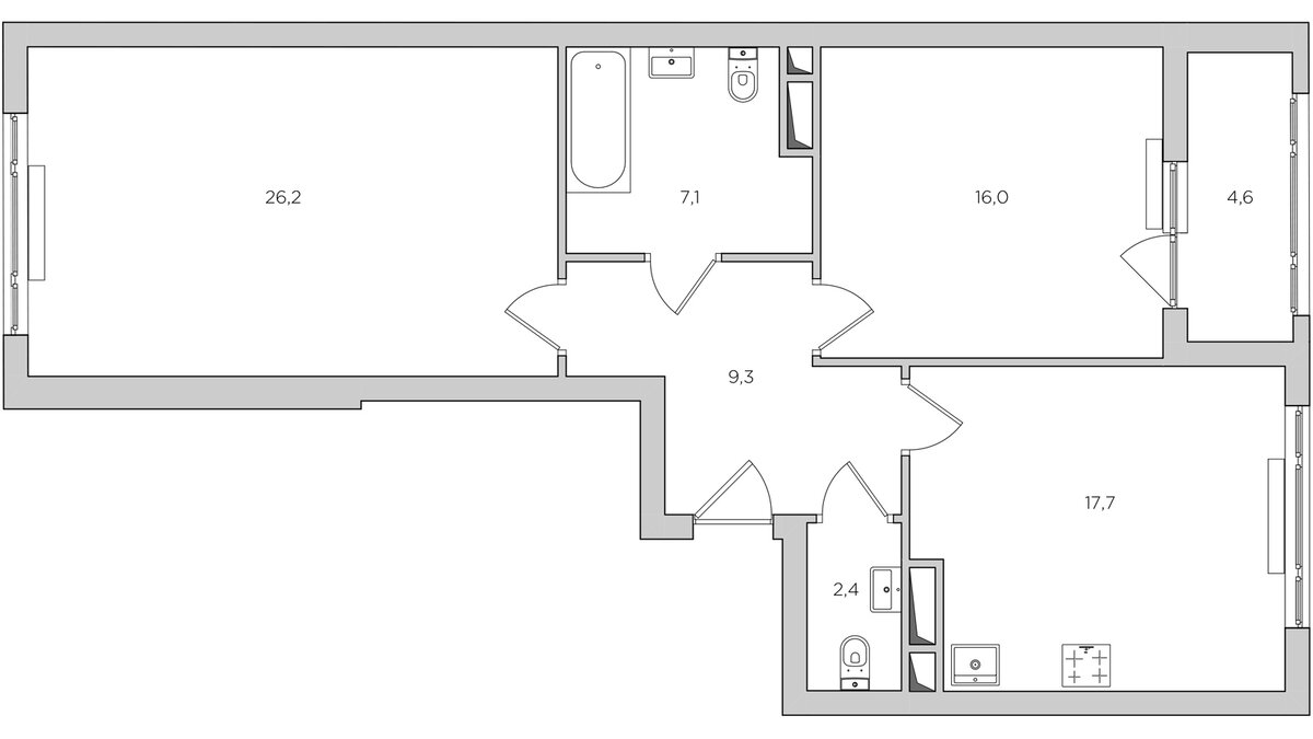
Здесь мы начали работать с классической планировкой квартиры площадью 38 квадратных метров: кухня находится в меньшем помещении, а жилая комната — в большем. Такая планировка неудобна для жизни вдвоем, в ней не получится выделить приватную зону спальни — кровать неизбежно будет стоять в гостиной. А если отдать большую комнату полностью под спальню, то место для встреч и отдыха останется только на кухне. Учитывая все законодательные ограничения, мы сделали перепланировку: выделили кухню-гостиную площадью 18,8 м² и отдельную спальню площадью 7,8 м².

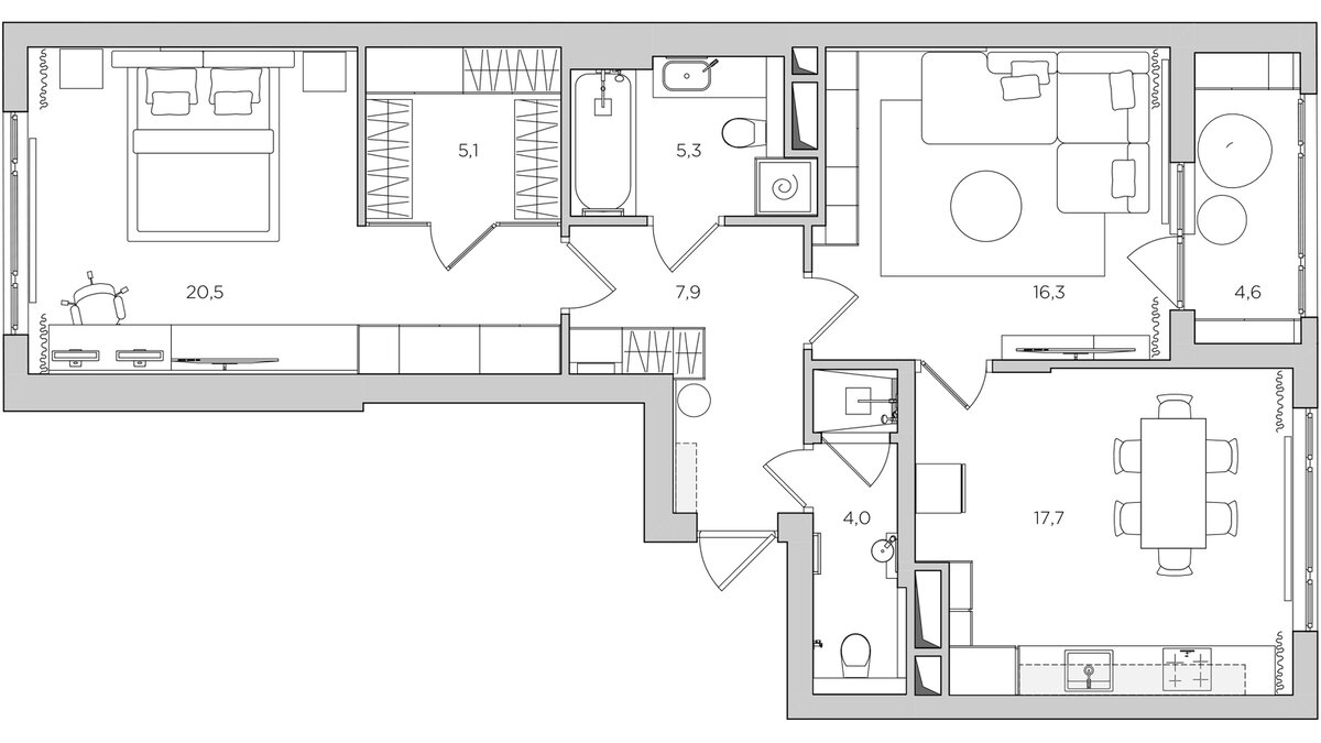
Между кухней и гостиной нет перегородок, но мы разделили их двухсторонним шкафом. Со стороны дивана мы сделали полку-нишу c подсветкой вместо журнального столика. С другой стороны шкафа установили полки, ящики и штанги для развески вещей. Мы выбрали прямой диван длиной 220 см на тонких ножках, чтобы визуально он был легче. Расстояние между изголовьем дивана и телевизором осталось около двух метров, что позволяет заказчикам удобно смотреть любимые фильмы.

Спальню мы расположили у окна, поэтому свет в гостиную проходит через раздвижные перегородки из матового стекла, и из кухни.

Кухня-гостиная со столовой. Планировка

Хозяева этой квартиры часто принимают гостей, поэтому нужно было организовать место для комфортного отдыха с семьей.

Застройщик предполагал обособленные кухню и гостиную, мы объединили их с коридором, который вел из прихожей в спальни. После объединения получилось большое светлое пространство площадью 55,5 м².

Интерьер гостиной в современном стиле
Интерьер гостиной в современном стиле

Между кухней и гостиной не осталось никаких перегородок, и чтобы кухонный гарнитур выглядел интерьерно, мы сделали его без верхних модулей и в такой же отделке из тонированного шпона, как мебель и панели в гостиной.

Между прихожей и кухней мы смонтировали ступенчатые стеновые панели, которые переходят в кухонные пеналы. Свет от окна днем и вертикальная подсветка вечером дополнительно выделяют текстуру шпона дуба.

Главная фишка этой гостиной — большой экран и девятиканальный музыкальный центр. Мы сделали красивую и функциональную ТВ-тумбу, в которой уместили тонну проводов и техники. Над тумбой мы смонтировали подвесную полку на кронштейнах для лазерного проектора, который выводит изображение на 120 дюймовый экран.

Подвесная тумба в гостиной
Подвесная тумба в гостиной

А на больших низких диванах удобно собираться всей семьей за просмотром кинофильма на большом экране.

Гостиная в современном стиле

Этот интерьер мы спроектировали для молодого человека, который увлекается современной культурой и музыкой.

Для хозяина было важно сделать индивидуальный интерьер, в который легко впишутся предметы искусства, и найти место для кабинета, так как он планирует развивать свой канал на YouTube.

В гостиной мы разместили серый глубокий диван, рядом мы поставили необычный журнальный столик — он состоит из лаконичных окружностей, а в верхней спрятана подсветка. Этот столик перекликается с круглыми светильниками Vibia, которые мы повесили над обеденным столом.

Телевизор в кухне-гостиной мы расположили на стене, которую отделали панелями. Высокие эмалированные панели создают дополнительные вертикальные линии. Справа от панелей мы расположили зеркало, чтобы в нем отражался свет из окна.

Стол в кухне-гостиной
Стол в кухне-гостиной

Спокойная отделка квартиры легко выдерживает яркий декор. Кухня легко вписывается в дизайн гостиной, благодаря лаконичной компоновке, яркими деталями и фасадам с отделкой под металл.

Кухня-гостиная. Примеры с реальными фото

В современных квартирах все чаще встречаются объединенные кухни-гостиные, я не против такого решения, потому что получается многофункциональное место для совместного отдыха всей семьей. Компоновка предметов в кухне-гостиной, когда диван, телевизор и кухня на одной оси, позволяет всем домочадцам комфортно общаться и смотреть ТВ.

В объединенных кухнях-гостиных, я считаю важным, чтобы кухня выглядела парадно и вписывалась в интерьер всей квартиры. Но если у вас не получается такая компоновка, то в этом нет ничего страшного.

Мебель для гостиной

В некоторых проектах мы располагаем шкафы прямо в гостиных. Благодаря таким решениям в квартире появляется дополнительное место для хранения вещей и декора.

Шкаф для одежды в гостиной

Двойной шкаф для одежды
Двойной шкаф для одежды

В этой квартире было необходимо спроектировать много мест для хранения, и в кухне-гостиной из-за большого количества окон оставалось два места для шкафа: напротив окна и рядом с ним. Если бы мы поставили шкаф напротив окна, комната стала бы гораздо уже. Поэтому мы расположили его рядом с окном, заняв всю стену.

Большой шкаф для одежды с телевизором в гостиной
Большой шкаф для одежды с телевизором в гостиной

Прямо на шкафу мы повесили телевизор. Именно в этом месте он будет просматриваться с дивана, из-за обеденного стола и будет виден из зоны кухни. За фальшь-панелью, на которой закреплен телевизор, мы сделали место для развески несезонной одежды, не потеряв ни один сантиметр полезной площади.

Шкаф для посуды в гостиной

Этот шкаф с тонкой разбивкой фасадов стоит в центре кухни-гостиной не случайно: за ним застройщик оставил глухую часть остекления. Мы закрыли ее шкафом фасадами из МДФ и матового стекла нежно-бронзового оттенка. Шкаф не глубокий, мы специально спроектировали его таким для хранения посуды и декора, на каждой полке сделали подсветку.

Стеллаж для книг в гостиной

Также интересным объектом для кухни-гостиной может стать стеллаж. Этот большой стеллаж с контрастными элементами мы спроектировали и изготовили для просторной гостиной, хозяева будут хранить здесь книги, декор и другие памятные предметы.

Стеновые панели в гостиной

Для отделки гостиных мы иногда используем стеновые панели. Эти рифленые панели, выкрашенные в цвет стен, мы расположили у окна, чтобы на свету получался ритмичный рисунок.

Хотите организовать гардеробную в своей квартире, но нет места? Я знаю отличное решение. Все подробности и фото смотрите здесь