Найти в Дзене
САУНА В ДОМЕ

Строительство сауны под ключ в городе Тюмень от компании «Сауна в доме»

Заказчик обратился к нам со своим дизайн проектом. Выслушав его пожелания мы отправили свой дизайн, далее сделав несколько корректировок мы пришли к текущему варианту. Финская сауна — это истинное воплощение релаксации и благополучия. Она является не только местом для занятия термальными процедурами, но и источником вдохновения и приятных эмоций. А теперь представьте себе финскую сауну, которая необычна и уникальна в своем роде. Она находится в прихожей квартиры с просторным окном, через которое проникают лучи солнца. Это окно создает иллюзию нахождения на открытом воздухе, в окружении природы, даря ощущение полной свободы и спокойствия.
Великолепие этой сауны дополняет присутствие нижнего полка, размещенного на подоконнике. На нем можно расслабиться и отдохнуть, наслаждаясь приятным видом на парк. Особенной просьбой заказчика была невозможность ребенку открыть окно. Для реализации этой просьбы, мы расположили нижний полок прямо на подоконнике. Также чтобы хозяева могли открыть окно,

Заказчик обратился к нам со своим дизайн проектом. Выслушав его пожелания мы отправили свой дизайн, далее сделав несколько корректировок мы пришли к текущему варианту.

Финская сауна — это истинное воплощение релаксации и благополучия. Она является не только местом для занятия термальными процедурами, но и источником вдохновения и приятных эмоций.

А теперь представьте себе финскую сауну, которая необычна и уникальна в своем роде. Она находится в прихожей квартиры с просторным окном, через которое проникают лучи солнца. Это окно создает иллюзию нахождения на открытом воздухе, в окружении природы, даря ощущение полной свободы и спокойствия.

Фотография отделки парной в тюмени
Фотография отделки парной в тюмени

Великолепие этой сауны дополняет присутствие нижнего полка, размещенного на подоконнике. На нем можно расслабиться и отдохнуть, наслаждаясь приятным видом на парк.

Особенной просьбой заказчика была невозможность ребенку открыть окно. Для реализации этой просьбы, мы расположили нижний полок прямо на подоконнике. Также чтобы хозяева могли открыть окно, сделали его съемным.

Нижний полок, расположенный на подоконнике
Нижний полок, расположенный на подоконнике

Также чтобы создать атмосферу спокойствия и умиротворения, рядом с полком мы установили два светильника из гималайской соли. Их приятный розовый свет, мягко рассеивается по комнате, создавая уют и атмосферу гармонии.

Кстати, мы впервые реализовали узкие светильники из гималайской соли, расположив соль вертикально.

Маленький верхний полок
Маленький верхний полок

Сауна выполнена полностью из термолипы, в том числе и пол. Также полок обработан маслом, что не только дополнительно защищает дерево, но и добавляет ему яркости и насыщенности.

Зачем обрабатывать полки маслом? Разница на фото.
Зачем обрабатывать полки маслом? Разница на фото.

В такой сауне каждая минута становится уникальным и неповторимым опытом. В ней можно не только насладиться теплом финской парной, но и получить удовольствие от насыщенных душевых процедур, благодаря встроенной душевой лейки возле нижнего полка.

Встроенная душевая лейка в сауне
Встроенная душевая лейка в сауне

В подарок каждому заказчику, при желании, мы создаем панно из можжевельника. В этой сауне мы установили его возле окна. Такое панно является отличным декоративным элементом в интерьере сауны и придает ей особый шарм.

Кроме того, можжевельник известен своими антисептическими свойствами, поэтому его присутствие в сауне также может положительно сказываться на здоровье посетителей.

Фотография сауны до обработки полков маслом и до установки защиты печи
Фотография сауны до обработки полков маслом и до установки защиты печи

ОТЗЫВ ОТ ЗАКАЗЧИКА:

Отзыв через месяц эксплуатации сауны
Отзыв через месяц эксплуатации сауны

ВИДЕО САУНЫ:

Пройдите 2-х минутный тест и мы создадим 3D модель вашей будущей сауны, а также предварительный расчет стоимости.

ПОЛУЧИТЬ РАСЧЕТ

Город: Тюмень
Срок строительства сауны: 6 дней
Дата постройки: 2023
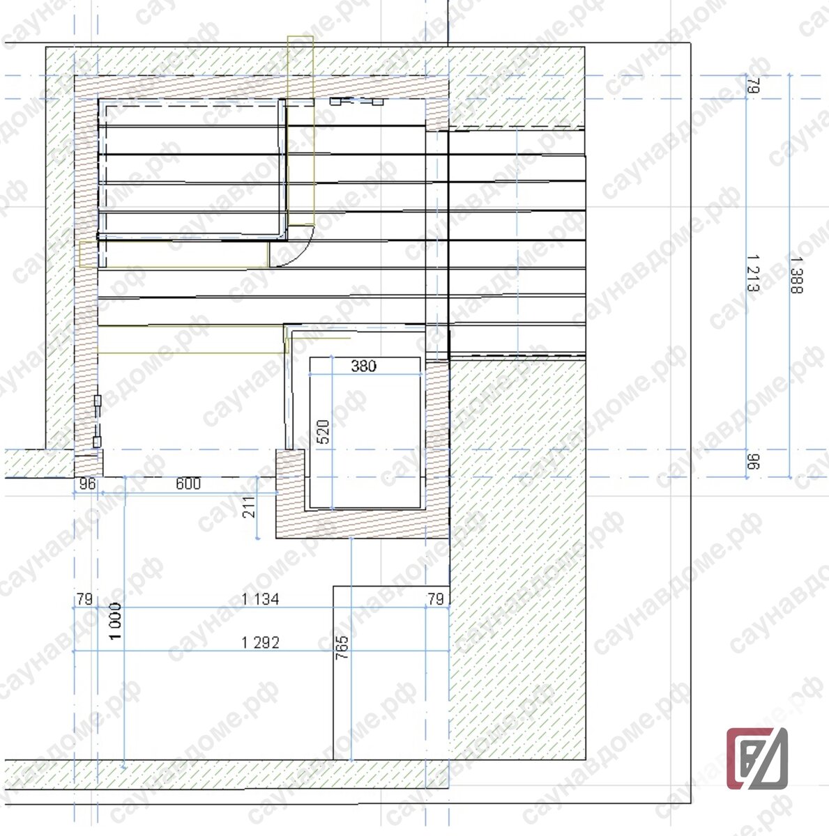
Размер сауны: 1,292x1,388 + подоконник
Подарок: панно из можжевельника (ВСЕМ КЛИЕНТАМ)
Дерево: термолипа
Опции: 2 узких светильника из гималайской соли, круглый край, обработка полка маслом, светодиодная подсветка за подспинником и под полком.
Особенности: встроенная душевая лейка, съемный нижний полок.