Добавить в корзинуПозвонить
Найти в Дзене

СТРОИМ С УМОМ: Самые распространённые ошибки при строительстве бани.

При строительстве бани есть много нюансов, которые необходимо учитывать. В этой статье мы разберём самые распространенные ошибки при строительстве бани. Не снимать растительный грунт под баней Одна из самых распространенных ошибок- забыть снять растительный грунт под баней. Это предотвращает процесс гниения «органики» под фундаментом. Не продумывать все коммуникации в бане. Важно заранее, перед строительством бани продумать все нужные для вас коммуникации (электричество, водопровод, канализация, и т.д) Не задумываться об отделке цоколя. Чаще всего для строительства бани выбирают свайный, винтовой или блочный фундамент. Чтобы избежать промерзания бани снизу, важно задумываться об отделке цоколя. Отводить для парной мало места. Для парного помещения нет стандартных размеров, они рассчитываются в зависимости от количества посетителей бани. Не стоит забывать, что в парной вы не только будите сидеть и лежать, но и поддавать пару, а также делать массаж веником, все эти действия требуют свобо
Оглавление
При строительстве бани есть много нюансов, которые необходимо учитывать. В этой статье мы разберём самые распространенные ошибки при строительстве бани.

Не снимать растительный грунт под баней

Одна из самых распространенных ошибок- забыть снять растительный грунт под баней. Это предотвращает процесс гниения «органики» под фундаментом.

Не продумывать все коммуникации в бане.

Важно заранее, перед строительством бани продумать все нужные для вас коммуникации (электричество, водопровод, канализация, и т.д)

Не задумываться об отделке цоколя.

Чаще всего для строительства бани выбирают свайный, винтовой или блочный фундамент. Чтобы избежать промерзания бани снизу, важно задумываться об отделке цоколя.

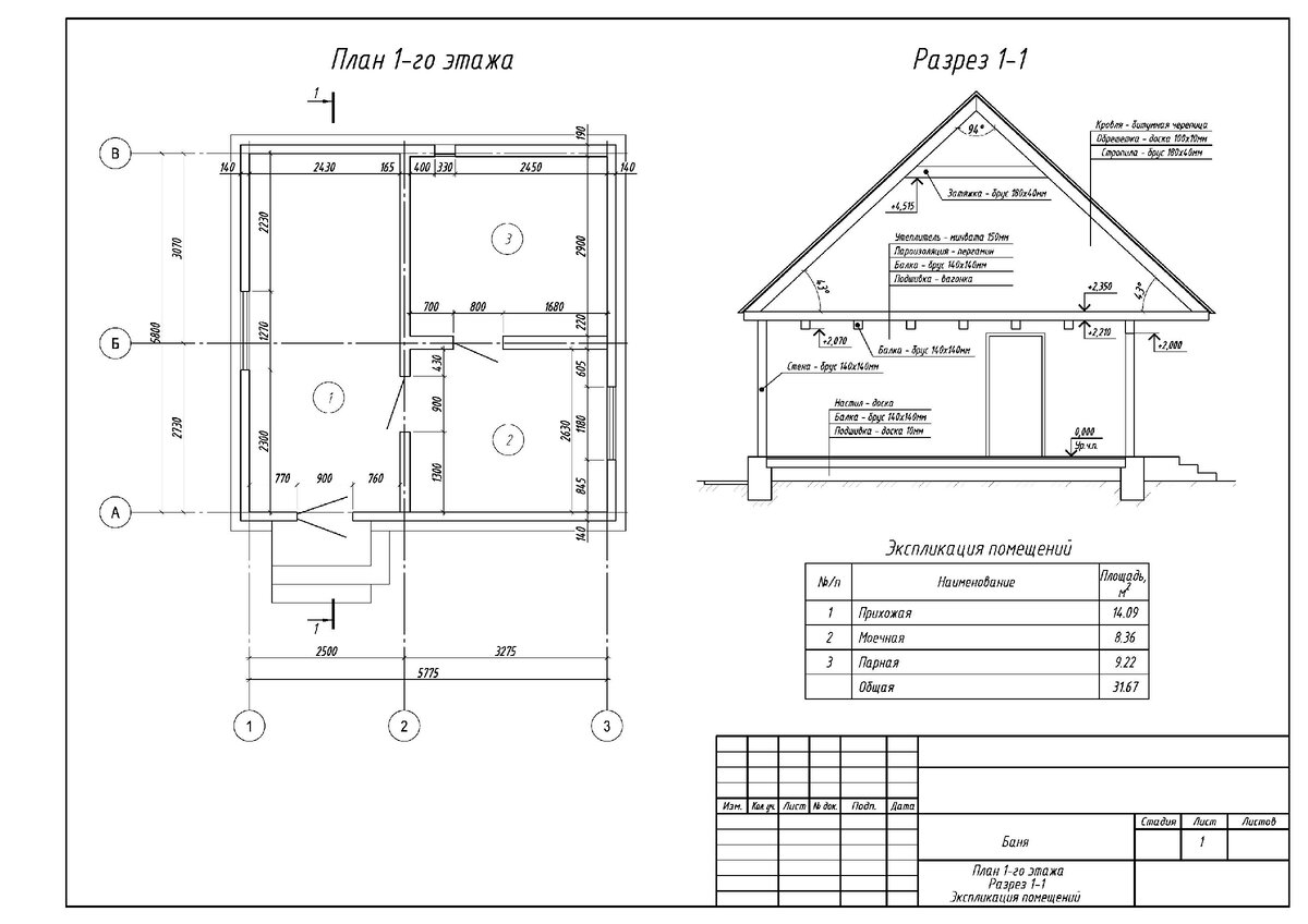
Отводить для парной мало места.

Для парного помещения нет стандартных размеров, они рассчитываются в зависимости от количества посетителей бани. Не стоит забывать, что в парной вы не только будите сидеть и лежать, но и поддавать пару, а также делать массаж веником, все эти действия требуют свободного места в парном помещении.

Невнимательно относиться к планировке полок в парной.

Длина полок тоже рассчитывается в зависимости от посетителей. Важно, чтобы человек беспрепятственно мог растянуться в полный рост - такая полка считается комфортной. А ширина может быть около 70-80 см. Этого будет достаточно для комфортного времяпрепровождения в парной.

Не продумывать вентиляцию в бане.

Немаловажный критерий при строительстве бани- это система вентиляции. Если система будет работать неисправно в бане будет скапливаться углекислый газ и образовываться влага.

Выбирать неправильную печь.

Мощность печи напрямую зависит от площади парного помещения. Парная не прогреется достаточно хорошо и не будет держать температуру, если печь будет малой мощности. Наоборот, пар будет тяжёлым, если мощность печи будет слишком высока.

Чаще всего, производители указывают, для какой площади предусмотрена конкретная печь.

Устанавливать дымоход неправильной длины.

Насколько качественной будет тяга, зависит от дымохода.

То есть: хорошая тяга удаляет дым из зоны горения, а также доставляет кислород.

Плохая же тяга, может стать причиной взрыва или пожара.

Длина дымохода также зависит от площади парного помещения.

Экономить на строительных материалах.

Всем известна пословица : скупой платит дважды. Поэтому важно выбирать только качественные, надёжные и проверенные временем материалы для строительства, ведь вы строите баню для себя! А на себе не экономят!!!

ОЧЕНЬ ВАЖНО НЕ ЗАБЫВАТЬ!

Вы приобретаете баню не на один год. Чтобы баня радовала вас многие года, не стоит экономить на строительстве!

А построить качественную баню, которая простоит многие года вам поможет строительная компания «АРН-СТРОЙ»

Нужная БАНЬКА? Это к НАМ!

Если вашей давней мечтой является настоящая русская баня, то воплотить её в реальность поможет наша строительная компания "АРН-СТРОЙ" КАЧЕСТВО,НАДЁЖНОСТЬ,ИНДИВИДУАЛЬНЫЙ ПОДХОД-основные качества нашей компании.

Компания «АРН-СТРОЙ» более 15 лет занимается строительством каркасных бань под ключ.

Индивидуальный подход к Вашим банным запросам! Мы не просто строим хорошие каркасные бани, их делают многие!

Мы ВКЛАДЫВАЕМ ДУШУ в наш продукт!

Мы в Авито: https://www.avito.ru/user/de1f16320ebf5a0eda2c8b6940c828db/profile?src=sharing

Мы на яндекс услугах: https://yandex.ru/uslugi/profile/GryaznovAleksandr-2505017

А также с нами можно связаться по электронной почте: alexanderroman.stroy@mail.ru

ПОДПИСЫВАЙТЕСЬ НА НАШ КАНАЛ и узнавайте много нового!!!

-2