Найти в Дзене
САУНА В ДОМЕ

Строительство сауны под ключ в городе Сысерть от компании «Сауна в доме»

Создание идеального уголка релаксации. К нам обратился клиент и заказал у нас дизайн проект, в котором мы сделали планировку, исходя из его потребностей. После этого мы заключили договор и построили сауну в частном доме в городе Сысерть. Расскажу вам немного подробнее о ней: Когда дело касается построения идеального саунного пространства, каждая мелочь имеет значение. Именно поэтому эта сауна с особой заботой создана для клиентов, которые искали совершенный отдых и ощущение гармонии с природой. Итак, давайте погрузимся в атмосферу этой удивительной сауны. При входе в помещение нас окружает приятный запах свежей древесины. Наш взгляд сразу привлекает красивый источник света - светильник из гималайской соли, который создает неповторимые эманации и добавляет чувственности в атмосферу сауны. Освещенная подсветкой за подспиником и под полком, сауна приобретает практически магическую ауру. Расслабившись на комфортном полке из термо липы, мы можем насладиться релаксацией и гармонией, вызванны

Создание идеального уголка релаксации.

К нам обратился клиент и заказал у нас дизайн проект, в котором мы сделали планировку, исходя из его потребностей. После этого мы заключили договор и построили сауну в частном доме в городе Сысерть.

Расскажу вам немного подробнее о ней:

Когда дело касается построения идеального саунного пространства, каждая мелочь имеет значение. Именно поэтому эта сауна с особой заботой создана для клиентов, которые искали совершенный отдых и ощущение гармонии с природой.

Итак, давайте погрузимся в атмосферу этой удивительной сауны. При входе в помещение нас окружает приятный запах свежей древесины. Наш взгляд сразу привлекает красивый источник света - светильник из гималайской соли, который создает неповторимые эманации и добавляет чувственности в атмосферу сауны.

Освещенная подсветкой за подспиником и под полком, сауна приобретает практически магическую ауру. Расслабившись на комфортном полке из термо липы, мы можем насладиться релаксацией и гармонией, вызванными не только приятной теплотой, но и уникальной подсветкой. Маленькое квадратное окно над полком позволяет наслаждаться видом извне и погрузиться в свои мысли.

Фотография реализованного проекта сауны в городе Сысерть компании "Сауна в доме"
Фотография реализованного проекта сауны в городе Сысерть компании "Сауна в доме"

Центром внимания в этой прекрасной сауне является дровяная печь, которая обеспечивает аутентичное и непревзойденное парение. В связи с растущим спросом на традиционные методы отопления, дровяные печи стали популярными в саунах, благодаря создаваемой ими уникальной энергетике и интенсивной тепловой обстановке.

Печка встраивается в стену и топится из соседней комнаты.

Люблю такие печки, они не только прогревают сауну, но и могут послужить маленьким камином, добавляя уютную атмосферу в предбаннике, где вы будете остывать после похода в баньку.

Портал через который можно топить печку из соседней комнаты
Портал через который можно топить печку из соседней комнаты

Полки из термообработанной липы выполнены с особым вниманием к деталям и комфорту. Этот материал является натуральным и долговечным, что позволяет создать идеальное место для отдыха. Также добавлена опция круглый край. Это особая обработка края полка позволяет сделать край скругленным и избежать врезания дерева в ноги.

Вагонка из липы дополняет общий стиль, добавляя элегантности и теплоты сауне.

Отделка сауны компанией "Сауна в доме"
Отделка сауны компанией "Сауна в доме"

Особенностью этой сауны является сдвигающаяся часть нижнего полка, которая позволяет легко перестроить сауну для более удобного парения. Это решение обеспечивает удобство и гибкость, позволяя каждому посетителю наслаждаться сауной по своему вкусу.

Сдвигающийся полок
Сдвигающийся полок

Установленное маленькое окно расположено над полкой, предоставляя возможность париться и наслаждаться живописными видами окружающей природы. Окно обеспечивает естественное освещение и вентиляцию, смещая границы между интерьером и экстерьером.

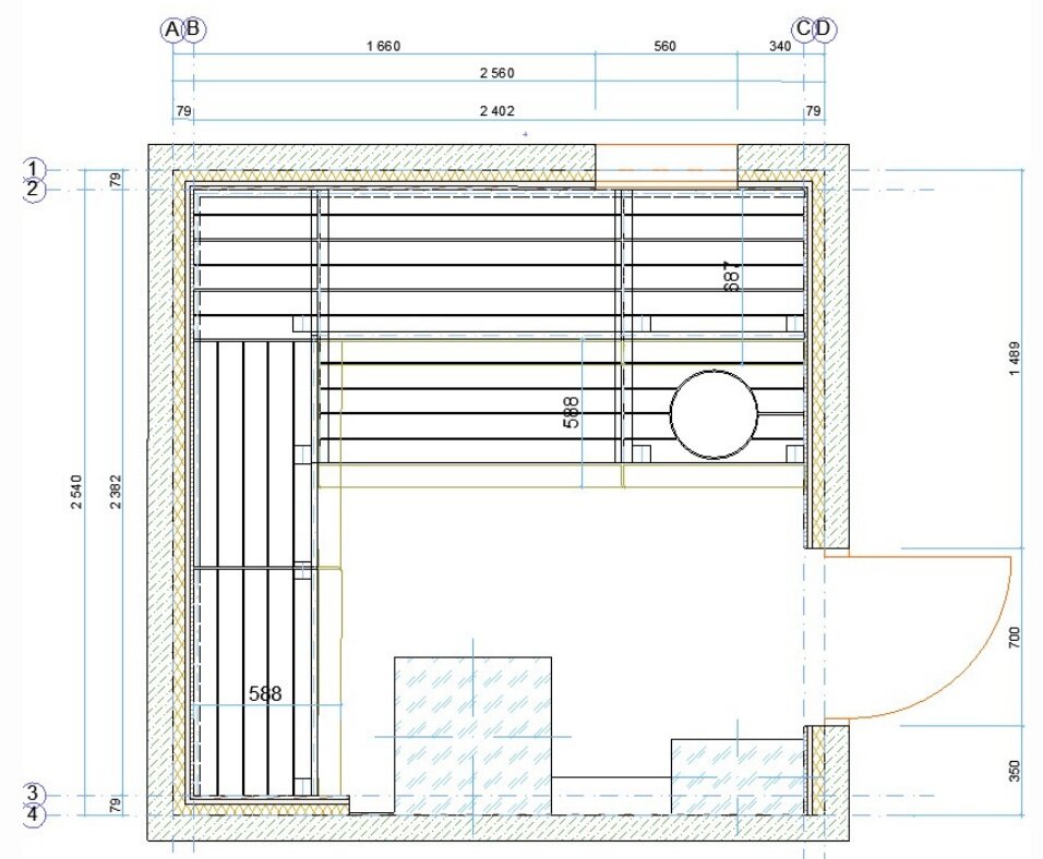
Эта идеально спроектированная сауна, размером 2,5x2,5– настоящая находка для истинных ценителей саунного отдыха. Она сочетает в себе первоклассное качество, стильный дизайн и инновационные решения, создавая идеальную атмосферу для релаксации и покоя.

Пройдите 2-х минутный тест и мы создадим 3D модель вашей будущей сауны, а также предварительный расчет стоимости:

ПОЛУЧИТЬ РАСЧЕТ

Город: Сысерть
Срок строительства сауны: 14 дней
Дата постройки: 2023
Размер сауны: 2,5x2,5
Дерево: вагонка липа, полок термолипа
Опции: круглый край, 2 светильника из гималайской соли, светодиодная подсветка за подспинником и под полком, чаша.
Особенности: сдвигающийся нижний полок.