Найти в Дзене

Наши проекты

💥 Наши проекты: БП-200 💥 Представляем вам ещё один новый типовой проект дома БЭНПАН – БП-200. Дом состоит из полноценного первого этажа и мансардного второго этажа. Общая площадь дома составляет более 200 кв. метров – этого достаточно для проживания большой семьи из 9 человек. На первом этаже дома находятся: ✔️ кухня-гостиная с выходом на большую террасу; ✔️ 2 спальни; ✔️ санузел; ✔️ техпомещение; ✔️ холл. Планом второго этажа предусмотрены: ✔️ 4 спальни; ✔️ санузел; ✔️ холл. Из холла предусмотрен выход на террасу второго этажа. Для строительства дома могут использоваться панели БЭНПАН-Д, БЭНПАН+, БЭНПАН-Премиум в любой из комплектаций: ◼️ Домокомплект; ◼️ Базовая; ◼️ Тёплый контур; ◼️ с отделкой «White box». Узнать подробнее о проекте БП-200 можно на сайте https://benpan.ru/project/bp-200/?utm_source=yadzen А задать интересующие вопросы можно: ⤵️ под постом; 📞 по телефону +7 (495) 260-98-32 #коттеджныйпоселок #коттеджныйгородок #берегпесочной #стройкадома #москвадома #строительств

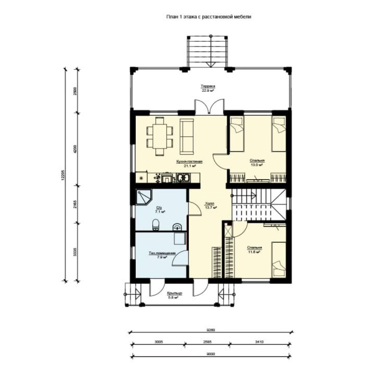
💥 Наши проекты: БП-200 💥

Представляем вам ещё один новый типовой проект дома БЭНПАН – БП-200.

Дом состоит из полноценного первого этажа и мансардного второго этажа. Общая площадь дома составляет более 200 кв. метров – этого достаточно для проживания большой семьи из 9 человек.

На первом этаже дома находятся:

✔️ кухня-гостиная с выходом на большую террасу;

✔️ 2 спальни;

✔️ санузел;

✔️ техпомещение;

✔️ холл.

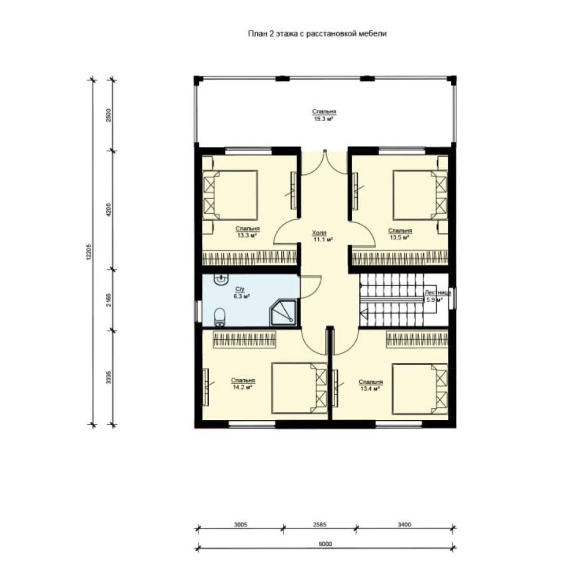
Планом второго этажа предусмотрены:

✔️ 4 спальни;

✔️ санузел;

✔️ холл.

Из холла предусмотрен выход на террасу второго этажа.

Для строительства дома могут использоваться панели БЭНПАН-Д, БЭНПАН+, БЭНПАН-Премиум в любой из комплектаций:

◼️ Домокомплект;

◼️ Базовая;

◼️ Тёплый контур;

◼️ с отделкой «White box».

Узнать подробнее о проекте БП-200 можно на сайте

https://benpan.ru/project/bp-200/?utm_source=yadzen

А задать интересующие вопросы можно:

⤵️ под постом;

📞 по телефону +7 (495) 260-98-32

#коттеджныйпоселок #коттеджныйгородок #берегпесочной #стройкадома #москвадома #строительстводомов #строительстоподключ #строительстводома #строительствокоттеджей #поселокновый #поселокмечта #бэнпан #покупкадома