Найти Π² Π”Π·Π΅Π½Π΅
Π”ΠΎΠΌΠ° β„–1

πŸ‘Π­Π»Π΅Π³Π°Π½Ρ‚Π½Ρ‹ΠΉ ΠΈ нСвСроятно ΡƒΠ΄ΠΎΠ±Π½Ρ‹ΠΉ ΠΊΠ°ΠΌΠ΅Π½Π½Ρ‹ΠΉ Π΄ΠΎΠΌ - 163 ΠΌ2

Π₯арактСристики Π΄ΠΎΠΌΠ° ΠŸΡ€Π΅Π΄ΡΡ‚Π°Π²Π»ΡΠ΅ΠΌ Π²Π°ΡˆΠ΅ΠΌΡƒ вниманию элСгантный ΠΈ нСвСроятно ΡƒΠ΄ΠΎΠ±Π½Ρ‹ΠΉ ΠΊΠ°ΠΌΠ΅Π½Π½Ρ‹ΠΉ Π΄ΠΎΠΌ Π² стилС Π Π°ΠΉΡ‚. Π­Ρ‚ΠΎΡ‚ прСкрасный Π΄ΠΎΠΌ располагаСт Ρ†Π΅Π»Ρ‹ΠΌΠΈ Ρ‡Π΅Ρ‚Ρ‹Ρ€ΡŒΠΌΡ просторными спальнями, каТдая ΠΈΠ· ΠΊΠΎΡ‚ΠΎΡ€Ρ‹Ρ… являСтся ΠΊΠΎΠΌΡ„ΠΎΡ€Ρ‚Π½ΠΎΠΉ ΠΈ ΡƒΡŽΡ‚Π½ΠΎΠΉ для сна ΠΈ ΠΎΡ‚Π΄Ρ‹Ρ…Π°. Π’ этом Π΄ΠΎΠΌΠ΅ мСста Ρ…Π²Π°Ρ‚ΠΈΡ‚ Ρ‚ΠΎΡ‡Π½ΠΎ всСм: ΠΈ Π²Π°ΠΌ, ΠΈ вашим гостям, Ссли ΠΎΠ½ΠΈ захотят ΠΎΡΡ‚Π°Ρ‚ΡŒΡΡ Ρƒ вас Π½Π° Π½ΠΎΡ‡ΡŒ. Если Π³ΠΎΠ²ΠΎΡ€ΠΈΡ‚ΡŒ ΠΎ Π΄Ρ€ΡƒΠ³ΠΈΡ… удобствах, Ρ‚ΠΎ Π΄ΠΎΠΌΠ΅ Π΅ΡΡ‚ΡŒ Ρ‚Ρ€ΠΈ санузла, Π° Ρ‚Π°ΠΊΠΆΠ΅ Π΄Π²Π΅ просторныС тСррасы, ΠΊΠΎΡ‚ΠΎΡ€Ρ‹Π΅ станут ΠΈΠ΄Π΅Π°Π»ΡŒΠ½Ρ‹ΠΌ мСстом для вашСго ΠΎΡ‚Π΄Ρ‹Ρ…Π° ΠΏΠΎΠ΄ ΠΎΡ‚ΠΊΡ€Ρ‹Ρ‚Ρ‹ΠΌ Π½Π΅Π±ΠΎΠΌ. Они Π½Π΅ Ρ‚ΠΎΠ»ΡŒΠΊΠΎ добавят атмосфСру спокойствия ΠΈ расслаблСния, Π½ΠΎ ΠΈ ΠΎΡ‚Ρ‚ΡƒΠ΄Π° Π±ΡƒΠ΄ΡƒΡ‚ ΠΎΡ‚ΠΊΡ€Ρ‹Π²Π°Ρ‚ΡŒΡΡ Π²Π΅Π»ΠΈΠΊΠΎΠ»Π΅ΠΏΠ½Ρ‹Π΅ Π²ΠΈΠ΄Ρ‹ Π½Π° ΠΎΠΊΡ€ΡƒΠΆΠ°ΡŽΡ‰ΡƒΡŽ ΠΏΡ€ΠΈΡ€ΠΎΠ΄Ρƒ ΠΈ ΡƒΠ½ΠΈΠΊΠ°Π»ΡŒΠ½ΡƒΡŽ Π°Ρ€Ρ…ΠΈΡ‚Π΅ΠΊΡ‚ΡƒΡ€Ρƒ Π΄ΠΎΠΌΠ°. Однако, этот Π΄ΠΎΠΌ - это Π³ΠΎΡ€Π°Π·Π΄ΠΎ большС, Ρ‡Π΅ΠΌ просто прСкрасноС мСсто для ΠΆΠΈΠ·Π½ΠΈ. Он олицСтворяСт ΡΡ‚ΠΈΠ»ΡŒ Π Π°ΠΉΡ‚. КаТдая линия, ΠΊΠ°ΠΆΠ΄Ρ‹ΠΉ ΡƒΠ³ΠΎΠ», Π±Ρ‹Π»ΠΈ Π·Π°Π΄ΡƒΠΌΠ°Π½Ρ‹ с Ρ†Π΅Π»ΡŒΡŽ создания пространства, ΠΊΠΎΡ‚ΠΎΡ€ΠΎΠ΅ Π²ΠΏΠΈΡˆΠ΅Ρ‚ΡΡ Π² соврСмСнный ΠΎΠ±Ρ€Π°Π· ΠΆΠΈΠ·Π½ΠΈ, сохраняя Ρ‚Ρ€Π°Π΄ΠΈΡ†ΠΈΠΈ стиля. ΠŸΠΎΡΡ‚ΠΎΠΌΡƒ, Ссли Π²Ρ‹ ΠΈΡ‰Π΅Ρ‚Π΅ ΠΈΠ΄Π΅Π°Π»ΡŒΠ½Ρ‹ΠΉ Π΄ΠΎΠΌ, ΠΎΡ‚Ρ€Π°ΠΆΠ°ΡŽΡ‰ΠΈΠΉ вашС ΡΡ‚Ρ€Π΅ΠΌΠ»Π΅Π½ΠΈΡŽ ΠΊ ΠΊΠΎΠΌΡ„ΠΎΡ€Ρ‚Ρƒ ΠΈ ΡΡ‚ΠΈΠ»ΡŽ,

"ΠœΠΈΡ‡ΠΈΠ³Π°Π½"
"ΠœΠΈΡ‡ΠΈΠ³Π°Π½"

Π₯арактСристики Π΄ΠΎΠΌΠ°

  • НазваниС ΠΏΡ€ΠΎΠ΅ΠΊΡ‚Π°: Β«ΠœΠΈΡ‡ΠΈΠ³Π°Π½Β»
  • ΠžΠ±Ρ‰Π°Ρ ΠΏΠ»ΠΎΡ‰Π°Π΄ΡŒ: 163 ΠΌ2
  • Π“Π°Π±Π°Ρ€ΠΈΡ‚Ρ‹: 23,8 Ρ… 11,0 ΠΌ
  • Π‘Ρ‚ΠΈΠ»ΡŒ: Π Π°ΠΉΡ‚
  • ΠšΠΎΠ»ΠΈΡ‡Π΅ΡΡ‚Π²ΠΎ спалСн: 4
  • ΠšΠΎΠ»ΠΈΡ‡Π΅ΡΡ‚Π²ΠΎ санузлов: 3
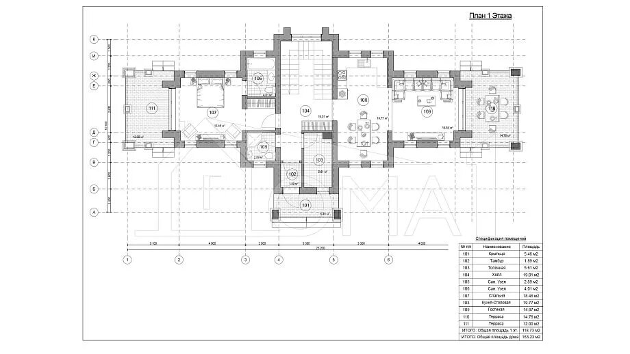
1 этаТ ΠΏΠ»Π°Π½ΠΈΡ€ΠΎΠ²ΠΊΠ°
1 этаТ ΠΏΠ»Π°Π½ΠΈΡ€ΠΎΠ²ΠΊΠ°
2 этаТ ΠΏΠ»Π°Π½ΠΈΡ€ΠΎΠ²ΠΊΠ°
2 этаТ ΠΏΠ»Π°Π½ΠΈΡ€ΠΎΠ²ΠΊΠ°

ΠŸΡ€Π΅Π΄ΡΡ‚Π°Π²Π»ΡΠ΅ΠΌ Π²Π°ΡˆΠ΅ΠΌΡƒ вниманию элСгантный ΠΈ нСвСроятно ΡƒΠ΄ΠΎΠ±Π½Ρ‹ΠΉ ΠΊΠ°ΠΌΠ΅Π½Π½Ρ‹ΠΉ Π΄ΠΎΠΌ Π² стилС Π Π°ΠΉΡ‚.

Π­Ρ‚ΠΎΡ‚ прСкрасный Π΄ΠΎΠΌ располагаСт Ρ†Π΅Π»Ρ‹ΠΌΠΈ Ρ‡Π΅Ρ‚Ρ‹Ρ€ΡŒΠΌΡ просторными спальнями, каТдая ΠΈΠ· ΠΊΠΎΡ‚ΠΎΡ€Ρ‹Ρ… являСтся ΠΊΠΎΠΌΡ„ΠΎΡ€Ρ‚Π½ΠΎΠΉ ΠΈ ΡƒΡŽΡ‚Π½ΠΎΠΉ для сна ΠΈ ΠΎΡ‚Π΄Ρ‹Ρ…Π°. Π’ этом Π΄ΠΎΠΌΠ΅ мСста Ρ…Π²Π°Ρ‚ΠΈΡ‚ Ρ‚ΠΎΡ‡Π½ΠΎ всСм: ΠΈ Π²Π°ΠΌ, ΠΈ вашим гостям, Ссли ΠΎΠ½ΠΈ захотят ΠΎΡΡ‚Π°Ρ‚ΡŒΡΡ Ρƒ вас Π½Π° Π½ΠΎΡ‡ΡŒ.

Если Π³ΠΎΠ²ΠΎΡ€ΠΈΡ‚ΡŒ ΠΎ Π΄Ρ€ΡƒΠ³ΠΈΡ… удобствах, Ρ‚ΠΎ Π΄ΠΎΠΌΠ΅ Π΅ΡΡ‚ΡŒ Ρ‚Ρ€ΠΈ санузла, Π° Ρ‚Π°ΠΊΠΆΠ΅ Π΄Π²Π΅ просторныС тСррасы, ΠΊΠΎΡ‚ΠΎΡ€Ρ‹Π΅ станут ΠΈΠ΄Π΅Π°Π»ΡŒΠ½Ρ‹ΠΌ мСстом для вашСго ΠΎΡ‚Π΄Ρ‹Ρ…Π° ΠΏΠΎΠ΄ ΠΎΡ‚ΠΊΡ€Ρ‹Ρ‚Ρ‹ΠΌ Π½Π΅Π±ΠΎΠΌ. Они Π½Π΅ Ρ‚ΠΎΠ»ΡŒΠΊΠΎ добавят атмосфСру спокойствия ΠΈ расслаблСния, Π½ΠΎ ΠΈ ΠΎΡ‚Ρ‚ΡƒΠ΄Π° Π±ΡƒΠ΄ΡƒΡ‚ ΠΎΡ‚ΠΊΡ€Ρ‹Π²Π°Ρ‚ΡŒΡΡ Π²Π΅Π»ΠΈΠΊΠΎΠ»Π΅ΠΏΠ½Ρ‹Π΅ Π²ΠΈΠ΄Ρ‹ Π½Π° ΠΎΠΊΡ€ΡƒΠΆΠ°ΡŽΡ‰ΡƒΡŽ ΠΏΡ€ΠΈΡ€ΠΎΠ΄Ρƒ ΠΈ ΡƒΠ½ΠΈΠΊΠ°Π»ΡŒΠ½ΡƒΡŽ Π°Ρ€Ρ…ΠΈΡ‚Π΅ΠΊΡ‚ΡƒΡ€Ρƒ Π΄ΠΎΠΌΠ°.

Однако, этот Π΄ΠΎΠΌ - это Π³ΠΎΡ€Π°Π·Π΄ΠΎ большС, Ρ‡Π΅ΠΌ просто прСкрасноС мСсто для ΠΆΠΈΠ·Π½ΠΈ. Он олицСтворяСт ΡΡ‚ΠΈΠ»ΡŒ Π Π°ΠΉΡ‚. КаТдая линия, ΠΊΠ°ΠΆΠ΄Ρ‹ΠΉ ΡƒΠ³ΠΎΠ», Π±Ρ‹Π»ΠΈ Π·Π°Π΄ΡƒΠΌΠ°Π½Ρ‹ с Ρ†Π΅Π»ΡŒΡŽ создания пространства, ΠΊΠΎΡ‚ΠΎΡ€ΠΎΠ΅ Π²ΠΏΠΈΡˆΠ΅Ρ‚ΡΡ Π² соврСмСнный ΠΎΠ±Ρ€Π°Π· ΠΆΠΈΠ·Π½ΠΈ, сохраняя Ρ‚Ρ€Π°Π΄ΠΈΡ†ΠΈΠΈ стиля.

ΠŸΠΎΡΡ‚ΠΎΠΌΡƒ, Ссли Π²Ρ‹ ΠΈΡ‰Π΅Ρ‚Π΅ ΠΈΠ΄Π΅Π°Π»ΡŒΠ½Ρ‹ΠΉ Π΄ΠΎΠΌ, ΠΎΡ‚Ρ€Π°ΠΆΠ°ΡŽΡ‰ΠΈΠΉ вашС ΡΡ‚Ρ€Π΅ΠΌΠ»Π΅Π½ΠΈΡŽ ΠΊ ΠΊΠΎΠΌΡ„ΠΎΡ€Ρ‚Ρƒ ΠΈ ΡΡ‚ΠΈΠ»ΡŽ, Ρ‚ΠΎ этот ΠΊΠ°ΠΌΠ΅Π½Π½Ρ‹ΠΉ Π΄ΠΎΠΌ Π² стилС Π Π°ΠΉΡ‚ - ваш ΠΈΠ΄Π΅Π°Π»ΡŒΠ½Ρ‹ΠΉ Π²Ρ‹Π±ΠΎΡ€!

-4
-5
-6
-7
-8
-9
-10
-11

☎️: +7 (495) 152-74-93