Найти в Дзене

Ремонт квартиры по готовой планировке. Рассказывает дизайнер

Ремонт квартиры всегда связан с колоссальным количеством времени владельца, которое тратится на общение со строителями, прорабом, поездки за материалом, бесконечный поиск мебели. Отдельно много времени и средств уходит в случае переделок, перезаказов материалов. Как избежать этого? Грамотно разработанное планировочное решение квартиры станет основой Вашего ремонта и дальнейшей меблировки. Дизайнер всегда скажет, что интерьер квартиры это не только цветовые оттенки, но и расположение мебели, ее конфигурация, а также непосредственно положение межкомнатных перегородок. В своей практики дизайнеры студии интерьера Павла Лаврентьева часто сталкиваются с квартирами, где планировка от застройщика не совершенна или даже непригодна для жизни. Но не расстраивайтесь. Создавая новую планировку, уточненное положение проемов, а иногда, снося/возводя перегородки, Вы получите оптимальное пространство для кроватей, тумбочек, шкафов. Сможете организовать зону кухни и приема пищи. Благодаря планировке уж
Оглавление
Владелец студии дизайна интерьера Okdesignspb Павел Лаврентьев
Владелец студии дизайна интерьера Okdesignspb Павел Лаврентьев
Ремонт квартиры всегда связан с колоссальным количеством времени владельца, которое тратится на общение со строителями, прорабом, поездки за материалом, бесконечный поиск мебели. Отдельно много времени и средств уходит в случае переделок, перезаказов материалов. Как избежать этого? Грамотно разработанное планировочное решение квартиры станет основой Вашего ремонта и дальнейшей меблировки.

Как увидеть будущий интерьер квартиры?

Дизайнер всегда скажет, что интерьер квартиры это не только цветовые оттенки, но и расположение мебели, ее конфигурация, а также непосредственно положение межкомнатных перегородок.

В своей практики дизайнеры студии интерьера Павла Лаврентьева часто сталкиваются с квартирами, где планировка от застройщика не совершенна или даже непригодна для жизни. Но не расстраивайтесь. Создавая новую планировку, уточненное положение проемов, а иногда, снося/возводя перегородки, Вы получите оптимальное пространство для кроватей, тумбочек, шкафов. Сможете организовать зону кухни и приема пищи.

Благодаря планировке уже станет ясно, в какую именно точку вести коммуникации - сантехнику, электрику, трассы кондиционирования.

Какие чертежи входят в планировочное решение?

1. Обмерный план

Старт любого ремонта начинается со сметы. Чтобы рассчитать смету нужно иметь детально прорисованный обмерный план. И мы его предоставляем нашим клиентам. В рамках упрощенного дизайна - планировка квартиры, мы делаем реальные обмеры на объекте с выездом дизайнера и замерщика.

Также к обмерам составляется техническое задание на упрощенный дизайн (планировку). В нем мы расписываем желаемое наполнение по мебели и оборудованию в каждом помещении квартиры (комната, детская, гостиная, кухня, ванная комната, санузел, холл, балкон, коридор и тд).

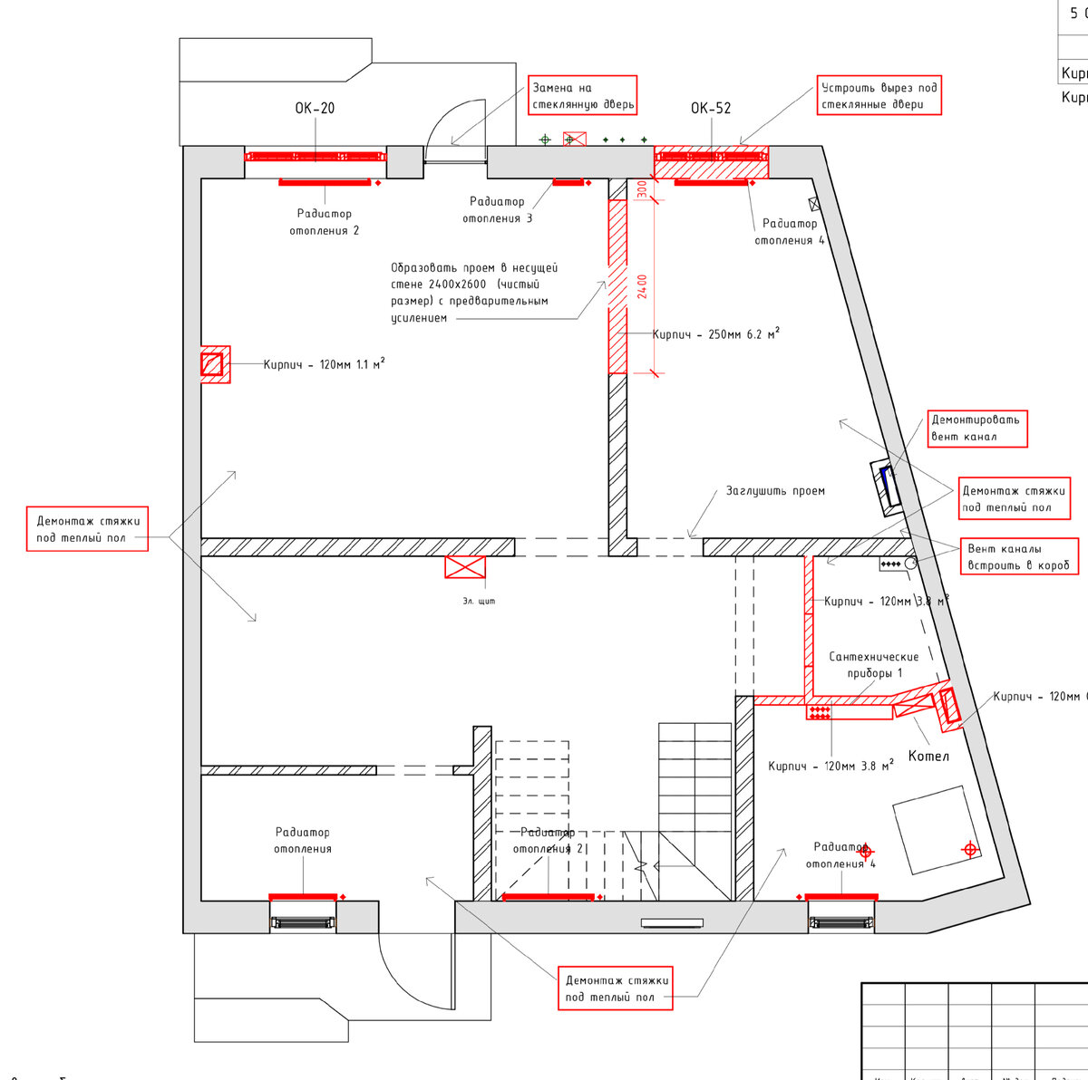
2. Демонтажный и монтажный планы

Оба эти плана, их еще называют план сноса и план перегородок, покажут строителям, какие и сколько стен необходимо снести. А в ведомости спецификаций все объемы демонтируемых и возводимых перегородок будут разнесены по помещениям и конкретным типам материалов перегородок.

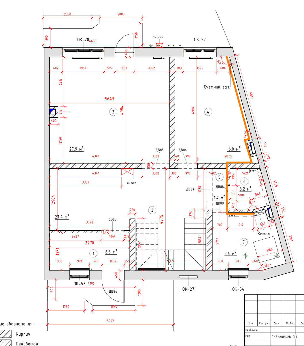
План расстановки мебели  и оборудования
План расстановки мебели и оборудования

3. План расстановки мебели и оборудования

Золото упрощенного дизайна "Планировочное решение" квартиры. Здесь благодаря навыкам дизайнера интерьера создается план мебели с конкретными размерами и отступами. Имея такой план, клиент и строители смогут определить оптимальное положение светильников, подумать какие розетки понадобятся и в каком количестве. Также планировка кухни прорабатывается до прочерчивания каждой секции кухни, что значимо упростит жизнь хозяйке.

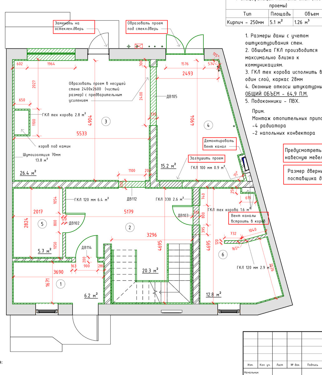
4. План оштукатуривания стен

Подход к проектированию студии Павла Лаврентьева комплексный и профессиональный в любом проекте. Поэтому помимо обмерного плана, демонтажного и монтажного, плана мебели, мы создаем план оштукатуривания стен. Там как и в предыдущих планах формируется задания для строителей - где и какие стены штукатурить. В каком объеме. И немаловажно - показываем какие углы выровнять под 90 градусов и в каких помещениях, а также под какой тип мебели подготавливается выравнивание.

Оставьте заявку на упрощенный дизайн интерьера квартиры - планировочное решение - на нашем
сайте! Мы свяжемся и обсудим, как помочь в Вашей ситуации.