Добавить в корзинуПозвонить
Найти в Дзене

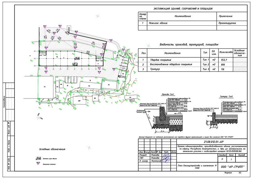
💥Схема планировочной организации земельного участка💥

В составе проектной документации для получения разрешения на строительство или реконструкцию объектов капитального строительства присутствует обязательный раздел. «Схема планировочной организации земельного участка», который выполняется в соответствии с постановлением Правительства «Об утверждении Положения о составе разделов проектной документации и требованиях к их содержанию» (№ 87 от от 16.02. 2008).
Это документ, включающий сведения о расположении в пределах земельного участка контуров и точных габаритов планируемого объекта капитального строительства с точным расположением в границах участка без внутренних обозначений; а так же существующих объектов и объектов под снос с соответствующими обозначениями; границы охраняемых территорий, водоохранных зон, охранных зон коммуникаций и инженерных сетей и т.д., в соответствии с градостроительным планом.
Подготовка схемы планировочной организации требуется в целях:
- получения разрешения на строительство объекта;
- при реконструкции стро
-2
-3

В составе проектной документации для получения разрешения на строительство или реконструкцию объектов капитального строительства присутствует обязательный раздел.

«Схема планировочной организации земельного участка», который выполняется в соответствии с постановлением Правительства «Об утверждении Положения о составе разделов проектной документации и требованиях к их содержанию» (№ 87 от от 16.02. 2008).

Это документ, включающий сведения о расположении в пределах земельного участка контуров и точных габаритов планируемого объекта капитального строительства с точным расположением в границах участка без внутренних обозначений; а так же существующих объектов и объектов под снос с соответствующими обозначениями; границы охраняемых территорий, водоохранных зон, охранных зон коммуникаций и инженерных сетей и т.д., в соответствии с градостроительным планом.

Подготовка схемы планировочной организации требуется в целях:
- получения разрешения на строительство объекта;
- при реконструкции строений;
- при дополнительной застройке участка;
- при изменении расположения объекта до начала его возведения;
- при внесении изменений в проект строительства.

Кроме того, подготовить схему расположения будущего объекта возможно и для получения уведомление о планируемых строительстве или реконструкции объекта индивидуального жилищного строительства или садового дома.

ООО "АР-Групп" предоставляет услуги по подготовке схемы планировочной организации земельного участка.

____________________________________________________
Кратчайшие сроки! Поэтапная оплата! Опыт более 10 лет! Допуски СРО!
ВЫ ДЕЛАЕТЕ ЗАКАЗ, МЫ ИСПОЛНЯЕМ!!!
+7 (927) 309-88-74

#спозу #СхемаПланировочнойОрганизацииЗемельногоУчастка