Найти в Дзене
Филдс

Новая жизнь старой хрущевки: вот как оформили трёшку 54 м² в доме под снос с минимальным бюджетом

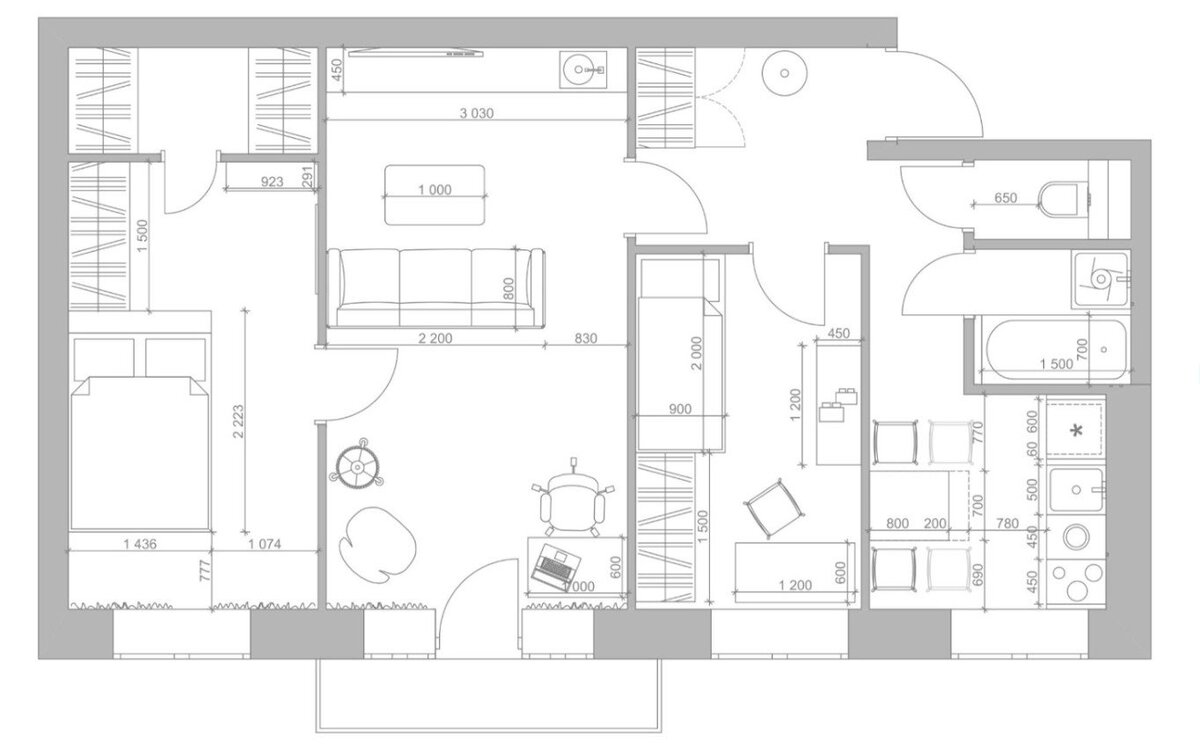
Дизайнер Лидия Напреенко оформила трехкомнатную квартиру 54 м² для молодой пары. Дом участвует в программе реновации на 2027 год, а потому ему грозит снос. Несмотря на это, пара решила дожидаться переезда в современном интерьере. Обошлись минимальными затратами. Планировка В результате перепланировали избавились от встроенного шкафа в гостиной, который урезал площадь прихожей, а также от антресолей под потолком. Кладовую при спальне переоборудовали в гардеробную. Гостиная Гостиную поделили на две части: ближе к окну обустроили рабочее место и лаунж-зону с креслом и пуфом, где хозяйка квартиры вяжет, а в глубине комнаты — зону отдыха с ярким желтым диваном и акцентными обоями на одной из стен. Системы хранения в ТВ-зоне расположили диагонально друг другу. Помимо тумбы под телевизор предусмотрели ряд антресольных шкафов и витрину для стекла. Кухня Небольшую кухню решили не заставлять шкафами. Гарнитур общей протяженностью в 2 м построили в одну линию. Мини-холодильник упаковали в коло
Оглавление

Дизайнер Лидия Напреенко оформила трехкомнатную квартиру 54 м² для молодой пары. Дом участвует в программе реновации на 2027 год, а потому ему грозит снос. Несмотря на это, пара решила дожидаться переезда в современном интерьере. Обошлись минимальными затратами.

  • Общая площадь: 54 м²
  • Место: Москва
  • Тип дома: хрущевка
  • Количество комнат: 3
  • Высота потолка: 2,6 м
  • Бюджет: 1 млн рублей (без учета ремонтных работ)
  • Кто здесь живет: молодая пара
  • Дизайнер: Лидия Напреенко (студия Mimosa Interiors)
  • Фото: Леонид Сёмов

Планировка

В результате перепланировали избавились от встроенного шкафа в гостиной, который урезал площадь прихожей, а также от антресолей под потолком. Кладовую при спальне переоборудовали в гардеробную.

Гостиная

Гостиную поделили на две части: ближе к окну обустроили рабочее место и лаунж-зону с креслом и пуфом, где хозяйка квартиры вяжет, а в глубине комнаты — зону отдыха с ярким желтым диваном и акцентными обоями на одной из стен.

Системы хранения в ТВ-зоне расположили диагонально друг другу. Помимо тумбы под телевизор предусмотрели ряд антресольных шкафов и витрину для стекла.

Кухня

Небольшую кухню решили не заставлять шкафами. Гарнитур общей протяженностью в 2 м построили в одну линию. Мини-холодильник упаковали в колонну с духовым шкафом, установили плиту на две конфорки, компактную мойку и узкую посудомоечную машину. Хозяева квартиры готовят нечасто, поэтому такого минимального набора им хватило.

Навесные шкафы дополнили светлыми фасадами, чтобы визуально облегчить интерьер. Цветные вкрапления на фартуке перекликаются с рисунком на плитке на полу.

Спальня

Спальню оформили в зеленых тонах. Акцентными обоями выделили перегородку с гардеробной. Шкаф-купе в квартире уже имелся, его решили оставить. Кровать поставили изголовьем к его торцу. Дополнительно зонировать помещение помогают подвесы посреди комнаты.

Прихожая

Светлую цветовую гамму в прихожей разбавили при помощи яркой банкетки и постеров, которые соотносятся с рисунком напольной керамики. Из систем хранения предусмотрели только один шкаф, который сохранился еще с предыдущего ремонта.

-7

Санузел

Санузел в квартире раздельный, но и ванную, и уборную оформили в единой стилистике, использовав одни и те же цвета и материалы. Керамогранит в душевой перекликается с фартуком на кухне. Вместо шторки установили практичное стеклянное ограждение.

Интересные мнения в комментариях приветствуются. Если материал понравился — ставь лайк!

🖤 Филдс — это не только блог на Дзене, но и магазин дизайнерских предметов интерьера. Заходите на сайт, чтобы увидеть мебель, которую дизайнеры выбирают для своих проектов.