Добавить в корзинуПозвонить
Найти в Дзене

Пример аудита готового проекта

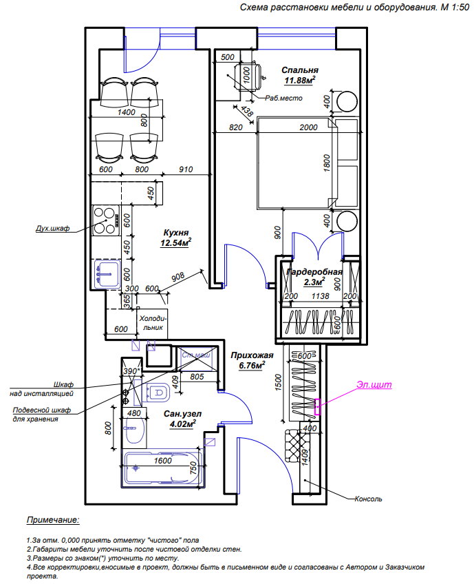
Клиент обратился с просьбой проверить эскизный проект от дизайнера квартиры площадью почти 42 м². Эта квартира в основном куплена под сдачу. Планировка от застройщика ужасная, чего только стоит коридор со стенами под 45 градусов, естественно эти элементы 100% под снос. Рассмотрим измененную планировку в эскизном проекте, я сначало опишу проблемы, а потом предложу что с ними сделать чтобы планировка стала эргономична. Спальня. У окна расположили стол, тут есть 2 проблемы, первая: не предусмотрен зазор от стены с окном для занавесок, вторая: расстояние от стола до кровати 438мм это крайне мало, такой проход обеспечит вам синяк на одной ноге на уровне стола (выше колена) и синяк на другой ноге на уровне кровати (ниже колена), не забываем про удар мизинцем об эту кровать)) Гардероб. Две узкие двери не удобны в обращении их нельзя будет даже оставить открытыми если захочется. Шире их не сделать так как кровать не даст им открыться. Внутри гардероба слева и справа две узкие полки, в них не р

Клиент обратился с просьбой проверить эскизный проект от дизайнера квартиры площадью почти 42 м². Эта квартира в основном куплена под сдачу. Планировка от застройщика ужасная, чего только стоит коридор со стенами под 45 градусов, естественно эти элементы 100% под снос.

-2

Рассмотрим измененную планировку в эскизном проекте, я сначало опишу проблемы, а потом предложу что с ними сделать чтобы планировка стала эргономична.

-3

Спальня. У окна расположили стол, тут есть 2 проблемы, первая: не предусмотрен зазор от стены с окном для занавесок, вторая: расстояние от стола до кровати 438мм это крайне мало, такой проход обеспечит вам синяк на одной ноге на уровне стола (выше колена) и синяк на другой ноге на уровне кровати (ниже колена), не забываем про удар мизинцем об эту кровать))

Гардероб. Две узкие двери не удобны в обращении их нельзя будет даже оставить открытыми если захочется. Шире их не сделать так как кровать не даст им открыться. Внутри гардероба слева и справа две узкие полки, в них не расположить ничего кроме часов и носков, потому что даже обувь в длину 25-30см.

-4

Большое количество внешних углов также является недостатком. Такие углы будут постоянно обтираться и откалываться, если их не защитить. Лучше избегать формирования таких углов.

-5

Ванная. Ниша под стиральную машину шириной 805мм, стандартная ширина стиральных машин 600мм этот зазор в почти 200мм абсолютно не нужен в нем будет скапливаться пыль и грязь, а вычистить ее от туда будет крайне сложно.

В коридоре в принципе все нормально, единственно что при возможности входную дверь нужно перенести открыванием наружу, это будет эргономично и намного удобнее.

Кухня. В первую очередь это крайне маленькое место основной готовки (между раковиной и варочной панелью) 450мм это крайне мало. Нету места для техники, микроволновку например единственное куда можно поставить это в подвесные шкафы, опять же куча внешних углов и т.д.

Я лучше покажу как переделать эту планировку и опишу свои решения.

-6

В кладовой больше места для хранения, дверь откатная она занимает меньше места и удобнее в тесных пространствах. Рабочее место я повернул и отодвинул от стены чтобы было место для штор, тем самым теперь есть достаточно места для прохода между кроватью и столом (800мм). Стену с входом в спальню выровнял со стеной в гардероб, это уменьшило количество внешних углов и добавило места для прохода в кухню при этом уменьшение спальни на 1м² ее не ухудшило.

-7

Конфигурацию кухни изменил, она стала больше и более эргономичная. Есть место для бытовой техники чего совершенно не было в предыдущей конфигурации. Основная зона готовки большая 900мм вместо 450мм. Так как в квартире будет жить двое, то и стол лучше сделать на двоих с возможностью увеличения для гостей.

-8

Шкаф в коридоре я увеличил по глубине так чтобы он стал вровень с выступающей стеной гардероба. Во-первых в этом месте лучше использовать двери купе, а они занимают 100мм по глубине шкафа. Во-вторых шкаф для верхней одежды лучше делать шире стандартных 600мм, так как зимние куртки и шубы требуют шкаф глубиной 700мм.

По итогу планировка стала эргономичная, удобная и ремонт дольше прослужит, это особенно актуально для квартиры под сдачу.

Обратиться для аудита своего проекта или заказа подробного проекта можно на почту: project.petr@yandex.ru.