Добавить в корзинуПозвонить
Найти в Дзене

Первая деталь. Заглушка вентиляционная. LOD400. Часть 3.

В предыдущей части мы закончили на LOD300 и это в принципе уже достаточно для работы. Но в своей работе мы столкнулись с заказчиком, которому захотелось, чтобы мы расписали все комплектующие. Поэтому работа была продолжена глубже. Нам потребуется дочертить и запараметризировать: 1. Шина 2. Уголок 3. Герметик 4. Лента 5. Болты 6. Гайки 7. Скоба с винтом. Герметик не является физическим материалом, он присутствует только в параметрах. Шина Шина из первой части у нас меняется в зависимости от размеров заглушки. Чтобы не параметризировать внутренние размеры шины, лучше это сделать как 2 разных объекта, которые будут скрываться в зависимости от размера заглушки. Начнем с шины №30. Рисуем профиль обычными отрезками и дугами. Толщина профиля 0,7 мм. Преобразуем этот профиль в полилинию командой ПОЛРЕД. Затем создаем 3D примитив И потом на созданном объекте выбираем 2D профиль: Выбираем наш 2D профиль и выбираем базовую точку(Левый низ) и направление базовой оси. Все дальнейшие формулы зависят
Оглавление

В предыдущей части мы закончили на LOD300 и это в принципе уже достаточно для работы. Но в своей работе мы столкнулись с заказчиком, которому захотелось, чтобы мы расписали все комплектующие. Поэтому работа была продолжена глубже.

Нам потребуется дочертить и запараметризировать:

1. Шина

2. Уголок

3. Герметик

4. Лента

5. Болты

6. Гайки

7. Скоба с винтом.

Герметик не является физическим материалом, он присутствует только в параметрах.

Шина

Шина из первой части у нас меняется в зависимости от размеров заглушки.

Чтобы не параметризировать внутренние размеры шины, лучше это сделать как 2 разных объекта, которые будут скрываться в зависимости от размера заглушки.

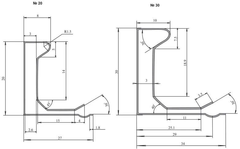
Начнем с шины №30. Рисуем профиль обычными отрезками и дугами. Толщина профиля 0,7 мм. Преобразуем этот профиль в полилинию командой ПОЛРЕД.

Затем создаем 3D примитив

-2

И потом на созданном объекте выбираем 2D профиль:

-3

Выбираем наш 2D профиль и выбираем базовую точку(Левый низ) и направление базовой оси. Все дальнейшие формулы зависят от этой базовой точки и направления.

-4

Созданный объект выдавливания копируем 4 раза. И заносим в группу:

-5

Теперь нам надо развернуть каждую из шин в нужную сторону

На примере разворота вокруг оси X. За начало кручения будет приниматься базовая точка. Ось разворота это ось Х

-6

Чтобы не запутаться кто куда должен встать можно поправить базовые точки и разместить их на нужных сторонах. Сторона в 20 мм. должна смотреть в сторону подключаемого воздуховода.

По итогу все шины должны встать по бокам заглушки. Это сложно, кое где придется поиграть с ориентацией, чтобы развернуть в нужную сторону.

-7

Я дополнительно дал им название и соответствующие направления, ориентации.

-8
-9
-10
-11
-12

Заполняем параметры для шины внизу:

Высота:

[PART_PIPE_RECT_DIMA]-20

20 мм. убираем, чтобы вставить уголок.

Базовая точка. X координата:

2.7

Толщина стенки шины и толщина уголка

Базовая точка. Y координата:

[PART_PIPE_RECT_DIMA]/2-10

Ширина пополам минус длина для одного уголка.

Базовая точка. Z координата:

-([PART_PIPE_RECT_DIMB]/2)+[PART_VENT_THICKNESS]+0.7

Минус половина высоты плюс толщина стенки заглушки плюс толщина стенки шины

Заполняем параметры для шины вверху:

Высота:

[PART_PIPE_RECT_DIMA]-20

20 мм. убираем, чтобы вставить уголок.

Базовая точка. X координата:

2.7

Толщина стенки шины и толщина уголка

Базовая точка. Y координата:

-([PART_PIPE_RECT_DIMA]/2)+10

Минус ширина пополам плюс длина для одного уголка.

Базовая точка. Z координата:

([PART_PIPE_RECT_DIMB]/2)-[PART_VENT_THICKNESS]-0.7

Половина высоты минус толщина стенки заглушки минус толщина стенки шины

Отрицательные значения в формуле задают обратное направление по осям.

Заполняем параметры для шины слева:

Высота:

[PART_PIPE_RECT_DIMB]-20

20 мм. убираем, чтобы вставить уголок.

Базовая точка. X координата:

2.7

Толщина стенки шины и толщина уголка

Базовая точка. Y координата:

-([PART_PIPE_RECT_DIMA]/2)+0.7+[PART_VENT_THICKNESS]

Минус ширина пополам плюс толщина шины плюс толщина стенки заглушки

Базовая точка. Z координата:

-([PART_PIPE_RECT_DIMB]/2)+10

Минус половина высоты плюс длина для одного уголка.

Заполняем параметры для шины справа:

Высота:

[PART_PIPE_RECT_DIMB]-20

20 мм. убираем, чтобы вставить уголок.

Базовая точка. X координата:

2.7

Толщина стенки шины и толщина уголка

Базовая точка. Y координата:

([PART_PIPE_RECT_DIMA]/2)-0.7-[PART_VENT_THICKNESS]

Ширина пополам минус толщина шины минус толщина стенки заглушки

Базовая точка. Z координата:

([PART_PIPE_RECT_DIMB]/2)-10

Половина высоты минус длина для одного уголка.

Уголок

Уголки аналогично 2 вида, для шины 20 УГФ-1 и для шины 30 УГФ-2

-13

Также начнем с уголка для шины №30.

Его создаем аналогично шинам, выдавливанием по профилю.

Толщина уголка 2 мм.

Только добавляем отверстия. Отверстия добавляются обычными цилиндрами, затем нажимаем "Вычесть подобъект".

-14

Точных чертежей в интернете я не нашел, поэтому размеры приблизительные. Никаких параметров уголок не имеет, это простая статичная деталь.

Базовая точка и направление основной оси показано ниже:

-15
-16

Уголок надевается на шину и встает перед заглушкой.

Забиваем параметры первого уголка:

Базовая точка. Y координата

-([PART_PIPE_RECT_DIMA]/2)-27+[PART_VENT_THICKNESS]

Базовая точка. Z координата

[PART_PIPE_RECT_DIMB]/2+27-[PART_VENT_THICKNESS]

В этих формулах 27 это ширина уголка.

Направление и ориентация для уголка левого верхнего

-17

Копируем этот уголок на остальные 3 угла.

Изменение параметров будут составлять просто замена плюсов на минусы и наоборот, поэтому дополнительно их описывать я не буду.

В итоге у нас получается готовая заглушка:

-18

Лента

Это обычная уплотнительная лента. Выбирается по ширине шины.

-19

Чертим ее выдавливанием параллелепипеда и растягиваем на всю ширину фланца. Для 20 шины и для 30 шины будут отдельные фигуры.

Начнем как обычно с ленты для 30 шины.

Лента слева

Высота

[PART_PIPE_RECT_DIMB]+30*2-0.7*2-[PART_VENT_THICKNESS]*2

30- ширина лента, 0,7 толщина шины.

Длина

5

Это толщина нашей ленты

Ширина

30

Это ширина нашей ленты

Базовая точка. X координата.

2.7

2 мм. толщина уголка и 0,7 мм. толщина шины.

Базовая точка. Y координата.

-([PART_PIPE_RECT_DIMA]/2)-30+[PART_VENT_THICKNESS]+0.7

30- ширина лента, 0,7 толщина шины.

Базовая точка. Z координата.

-([PART_PIPE_RECT_DIMB]/2)-30+[PART_VENT_THICKNESS]+0.7

30- ширина лента, 0,7 толщина шины.

Копируем BOX на остальные шины. Параметры практически идентичные. Повторять не буду.

Ответный фланец.

Следующий элемент это ответный фланец.

Добавим в отдельную группу Шины_30 и Уголки_30 и скопируем для ответных фланцев.

-20

В ответном фланце заполняем параметры

Зеркально

1

Базовая точка. Х координата.

2+0.7+2+0.7+5

2-толщина уголка, 0,7- толщина шины, 5-толщина ленты.

Болт

Диаметр отверстия в уголке у нас 11 мм., значит болт должен быть М10. Длина болта подбирается с учетом гайки и оставшейся длины резьбы не менее 1,5 шага.

Для шины 30 нам подойдет Болт с шестигранной головкой с фланцем ГОСТ ISO 4162-М10x25-8.8-A1U и гайка к нему гайка шестигранная с фланцем ГОСТ Р ИСО 4161-М10-8-A1U ГОСТ Р ИСО 4161-2013

Болты у меня уже разрисованы в базе. Я вставляю их в чертеж и добавляю в параметрическое оборудование с помощью команды "добавить оборудование"

-21

Базовую точку у болта я взял центр низа шляпки. Направление осей на картинке:

-22

Болт появляется у нас в редакторе и в параметрах объекта.

-23

Теперь параметризируем болт на проектное положение.

Базовая точка. X координата.

2+0.7+5+2+0.7-0.5

2-толщина двух уголков, 0,7- толщина шины, 5- толщина ленты, 0.5- это перепад на уголке.

Базовая точка. Y координата.

([PART_PIPE_RECT_DIMA]/2)+13.6

13.6- расстояние высчитывается практическим путем от [PART_PIPE_RECT_DIMA]/2 до отверстия в уголке.

Базовая точка. Z координата.

-([PART_PIPE_RECT_DIMB]/2)-13.6

13.6- расстояние высчитывается практическим путем от [PART_PIPE_RECT_DIMB]/2 до отверстия в уголке.

Направление и ориентация

-24

Гайка

Гайку добавляем аналогично болту.

Базовую точку оставляем на оси фланца гайки, направление XY как на картинке:

-25

Координаты Y и Z копируем с болта.

Базовая точка. X координата.

0.5

Перепад на уголке

Получаем гайку с болтом и добавляем ее в массив

-26
-27

В массиве задаем направление, ориентацию и количество:

-28

Расстояние между столбцами

0

Расстояние между уровнями

[PART_PIPE_RECT_DIMB]+13.6*2

Расстояние между строками

[PART_PIPE_RECT_DIMA]+13.6*2

На этом фланец шины 30 закончен.

Добавим все части в одну группу и скроем с вида, чтобы не мешал создавать шину №20.

-29
-30

Для шины №20 все создается по аналогии, расписывать дополнительно не буду.