Добавить в корзинуПозвонить
Найти в Дзене

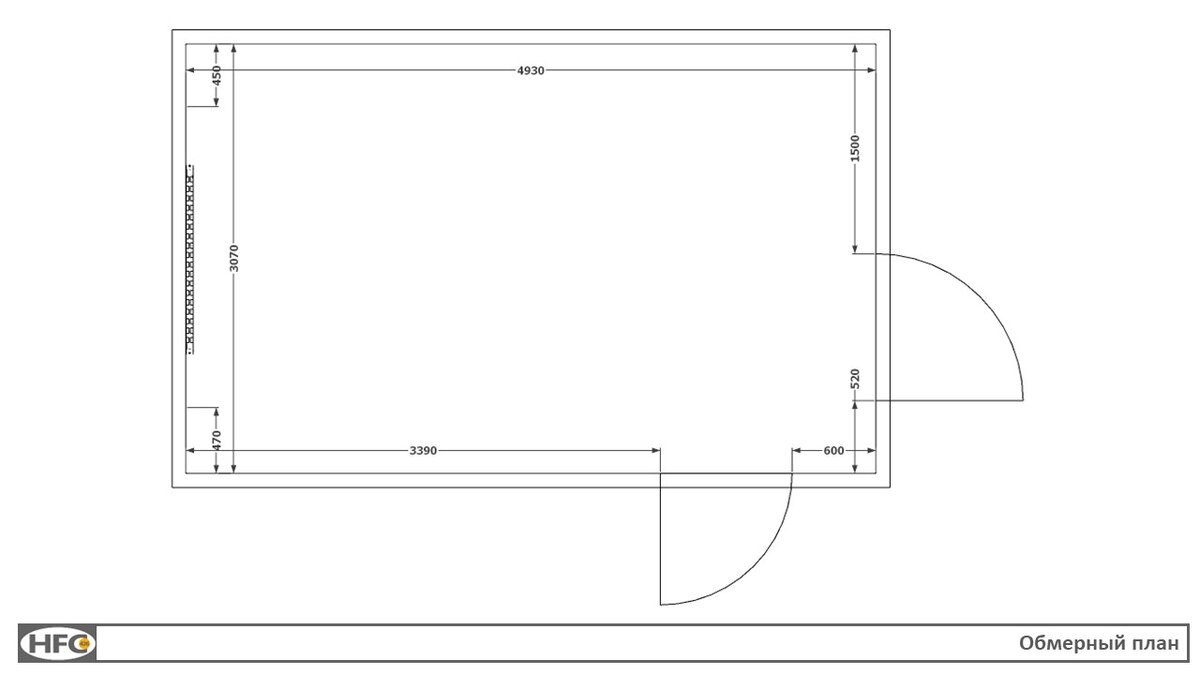
Детская 17м для малышей. Стоимость проекта 5000.-

Троим младшим (2,5,8 лет) из пятерых детей в семье выделили комнату 17м. Дети дружные, много времени проводят вместе, но иногда хочется отдохнуть от общения. Поэтому, главной задачей при планировании детских стало: разделить комнату на зоны, чтобы у каждого было своё, пусть небольшое пространство, своя отдельная кровать (не двухъярусная) и отдельные места хранения личных вещей. В проходной комнате особенно важно отделить личное пространство, поэтому мы использовали потолочный карниз, отделив шторами спальное место от прохода и от второй половины комнаты. Объединили творческое и рабочее место)) одним большим раскладывающимся столом. Добавили освещение. Приятного вам обустройства, Оксана, Максим, Ксюша, Лукьян, Вера!
Экспресс-дизайн интерьера. Стоимость проекта 5000.-
Экспресс-дизайн интерьера. Стоимость проекта 5000.-

Троим младшим (2,5,8 лет) из пятерых детей в семье выделили комнату 17м. Дети дружные, много времени проводят вместе, но иногда хочется отдохнуть от общения. Поэтому, главной задачей при планировании детских стало: разделить комнату на зоны, чтобы у каждого было своё, пусть небольшое пространство, своя отдельная кровать (не двухъярусная) и отдельные места хранения личных вещей.

В проходной комнате особенно важно отделить личное пространство, поэтому мы использовали потолочный карниз, отделив шторами спальное место от прохода и от второй половины комнаты.

Объединили творческое и рабочее место)) одним большим раскладывающимся столом.

Экспресс-дизайн интерьера. Стоимость проекта 5000.-
Экспресс-дизайн интерьера. Стоимость проекта 5000.-

Добавили освещение.

Приятного вам обустройства, Оксана, Максим, Ксюша, Лукьян, Вера!