Найти в Дзене

Стильное преображение квартиры 48 м2 в панельном доме

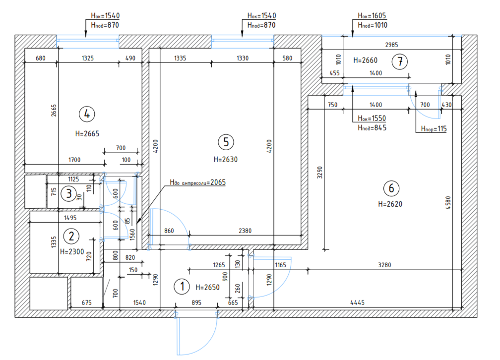
В чем главная прелесть «вторичек»? В их расположении! Тихие зеленые районы, где в шаговой доступности любая инфраструктура. Вот только эргономика квартир, построенных в 60-70е годы нельзя назвать удобной. Но здесь тоже есть варианты! Недавно команда Remplanner принимала участие в перепланировке 2-х комнатной квартиры в 12-этажном панельном доме типовой серии 1605-АМ. И вот что у нас получилось! В квартире будет жить молодая пара, оба работают удаленно, иногда посещая офис. Важно было обеспечить каждого полноценным, комфортным рабочим местом. Один рабочий стол мы установили в гостиной. После перепланировки комната стала проходной, за раздвижной дверью здесь скрывается кухня – объединять два помещения в этом случае нельзя, раздвижные двери требование закона. Гостиная максимально лаконична – консольная тумба под ТВ, встроенный шкаф, необычная реечная панель с вертикальными светодиодными полосами (в пару к ней мы подобрали дизайнерский комплект потолочных светильников с возможностью окраш

В чем главная прелесть «вторичек»? В их расположении! Тихие зеленые районы, где в шаговой доступности любая инфраструктура. Вот только эргономика квартир, построенных в 60-70е годы нельзя назвать удобной. Но здесь тоже есть варианты! Недавно команда Remplanner принимала участие в перепланировке 2-х комнатной квартиры в 12-этажном панельном доме типовой серии 1605-АМ. И вот что у нас получилось!

Портфолио Remplanner
Портфолио Remplanner

В квартире будет жить молодая пара, оба работают удаленно, иногда посещая офис. Важно было обеспечить каждого полноценным, комфортным рабочим местом.

Портфолио Remplanner
Портфолио Remplanner

Один рабочий стол мы установили в гостиной. После перепланировки комната стала проходной, за раздвижной дверью здесь скрывается кухня – объединять два помещения в этом случае нельзя, раздвижные двери требование закона.

Портфолио Remplanner
Портфолио Remplanner

Гостиная максимально лаконична – консольная тумба под ТВ, встроенный шкаф, необычная реечная панель с вертикальными светодиодными полосами (в пару к ней мы подобрали дизайнерский комплект потолочных светильников с возможностью окрашивания плафона в тон стен).

Портфолио Remplanner
Портфолио Remplanner

Диван небольшой, эргономичный, как раз для совместно вечернего просмотра ТВ. Сверху над диваном и рабочим столом две вместительных полки с подсветкой, которые сочетаю в себе декоративную и практичную функции.

Портфолио Remplanner
Портфолио Remplanner

Кухня совсем небольшая – 6,7 м2, за счет угловой формы и продуманного наполнения удалось получить достаточную площадь рабочих поверхностей и полноценное техническое оснащение: СВЧ, духовой шкаф, холодильник и посудомоечная машина, все встроенное. В углу небольшой столик для двоих.

Среди особенностей квартиры этаж – 1-й, низкий, поэтому во всех комнатах мы использовали жалюзи с возможностью закрывания окна снизу-вверх.

Портфолио Remplanner
Портфолио Remplanner

За счет этого можно отгородиться от любопытных взглядов с улицы, не лишая себя солнечного света. Если у вас низкий этаж – рекомендуем!

Спальня внешне похожа на гостиную – это было важно, поскольку тут у нас второе рабочее место. В этом проекте мы снова использовали кровать-трансформер, которая днем превращается в диван, стоящий возле шкафа, а вечером легко трансформируется в кровать с высоким ортопедическим матрасом.

К спальне мы присоединили небольшую лоджию, предварительно утеплив ее. Там нашлось место для мягкого кресла и встроенного шкафа, а бывший подоконник – простенок мы не стали убирать – расширили и превратили в удобный рабочий стол.

-10

Примечательной деталью является нестандартное использование реек. Они не только обрываются на середине стены и все разной длины, но и заканчиваются точечными светильниками. Простой прием, создающий приятный эффект.

Портфолио Remplanner
Портфолио Remplanner

Площадь коридора после переноса стен меньше 5 м2, мы постарались оставить его свободным, из мебели здесь только пуф и узкая тумба в углу.

Портфолио Remplanner
Портфолио Remplanner

Большое зеркало с вертикальными штангами-бра и потолочной подсветкой слегка расширяет и вытягивает маленькое пространство.

И наконец, главный гвоздь проекта – объединенный санузел!

Портфолио Remplanner
Портфолио Remplanner

Старая и хлипкая сантехническая кабина была демонтирована, к площади объединенных ванны и туалеты добавлена часть коридора. Напомним, что речь о квартире на 1 этаже, и недостаток высоты тут компенсируется вариативностью планировочных решений – расширение санузла за счет коридора одно из них.

После всех работ мы получили санузел площадью 5,6 м2, наконец-то ванная, в которой никто не будет задевать углы и стены. От самой ванны заказчики отказались, вместо нее теперь строительная душевая в идеальном размере 110х110 см. Инсталляция притаилась в углу за стенкой душевой, где не бросается в глаза, но полностью отвечает правилам эргономики для размещения унитаза.

Портфолио Remplanner
Портфолио Remplanner

Вся комната оформлена в двух цветах – черный керамогранит и имитация дерева. Умывальник состоит из большой столешницы и накладной раковины из камня. Над ними зеркало почти во всю стену.

Портфолио Remplanner
Портфолио Remplanner

Под столешницей тумба с двумя большими ящиками и стиральная машина, которая при необходимости прячется за сдвижным фасадом. За счет правильно спроектированного света и сочетания теплой, медовой текстуры дерева с почти черным керамогранитом, комната не кажется мрачной. Это стильное и комфортное пространство, в котором ощущается домашнее тепло.

Портфолио Remplanner
Портфолио Remplanner

На этом все! Напомним, что все перепланировки мы делаем с участием специалиста проектного бюро с допуском СРО. Все предпринимаемые действия отвечают требованиям закона и могут быть согласованы в БТИ на основе проекта перепланировки (не дизайн-проекта). Если вам требуется качественная и законная перепланировка – наши специалисты будут рады помочь в решении этой задачи.