Найти в Дзене
Дома №1

Почему одноэтажные дома набирают популярность?

🔹 Это удобно! Для людей пожилого возраста, детей это вопрос безопасности и комфорта.  🔹 Максимально функциональное использование площади. Нет ненужных комнат, лестницы, которая так же занимает место, холла первого и второго этажа. 🔹 Экономически выгодно! Да площадь фундамента может быть больше, но затрат на отделку меньше - окна, двери, отделка санузлов, которые как правило делают на каждом этаже. 🔹 Строительство одноэтажного дома происходит быстрее, а значит временные и транспортные расходы сокращаются.  Для строительства второго этажа нужны леса для подъема материалов, так что отсутствие в их необходимости еще один плюс в пользу стоимости. К тому же сейчас идет уклон в сторону практичности, простоты и функциональности, что безусловно является отличительными чертами одноэтажных домов. Посмотрим как выглядит построенный наш проект дома «Прованс» площадью 108 м2 ☎️ : +7 (495) 152-74-93
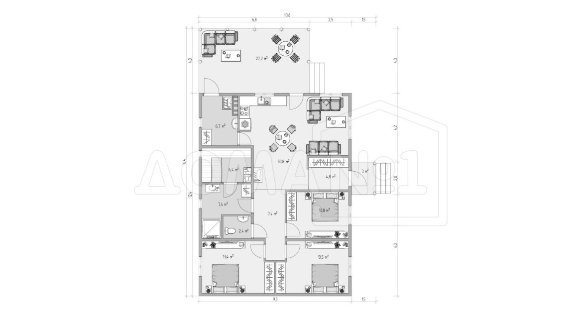
«Прованс» 108 м2
«Прованс» 108 м2

🔹 Это удобно!

Для людей пожилого возраста, детей это вопрос безопасности и комфорта. 

🔹 Максимально функциональное использование площади.

Нет ненужных комнат, лестницы, которая так же занимает место, холла первого и второго этажа.

🔹 Экономически выгодно!

Да площадь фундамента может быть больше, но затрат на отделку меньше - окна, двери, отделка санузлов, которые как правило делают на каждом этаже.

🔹 Строительство одноэтажного дома происходит быстрее, а значит временные и транспортные расходы сокращаются. 

Для строительства второго этажа нужны леса для подъема материалов, так что отсутствие в их необходимости еще один плюс в пользу стоимости.

К тому же сейчас идет уклон в сторону практичности, простоты и функциональности, что безусловно является отличительными чертами одноэтажных домов.

Посмотрим как выглядит построенный наш проект дома «Прованс» площадью 108 м2

Планировка дома
Планировка дома
-3
-4

☎️ : +7 (495) 152-74-93

-5