Добавить в корзинуПозвонить
Найти в Дзене
ЭТО ВАШ ИНТЕРЬЕР

Девушка показала, как живет в обычной квартире, где ремонт делали своими силами

Данную квартиру наши герои (семейная пара с ребенком) купили на "нулевом" этапе. И после того как им выдали ключи от их нового жилища, они сразу же принялись за ремонтные работы. Сначала хозяйка хотела нанять дизайнера, но потом решила попробовать придумать дизайн проект самостоятельно, и вот что из этого вышло. Проект Прихожая Напольное покрытие во всей квартире — виниловая инженерная доска. А стены покрашены полуматовой белой краской. Потолки натяжные матовые. Здесь имеются системы хранения, большая деревянная лавка и целых три зеркала. Кухня В кухню есть два прохода: один из коридора, а другой из гостиной. Кухонное пространство получилось весьма светлым и уютным, так как здесь большое обилие деревянных элементов. Гарнитур выбрали угловой с классическими белыми фасадами. Фартук облицован прямоугольной плиткой, но в укладке "ёлочка". Раковину хозяйка специально расположила возле окна, так как это была её давняя мечта. На стыке кухни и гостиной установили небольшую барную стойку. Так
Оглавление

Данную квартиру наши герои (семейная пара с ребенком) купили на "нулевом" этапе. И после того как им выдали ключи от их нового жилища, они сразу же принялись за ремонтные работы. Сначала хозяйка хотела нанять дизайнера, но потом решила попробовать придумать дизайн проект самостоятельно, и вот что из этого вышло.

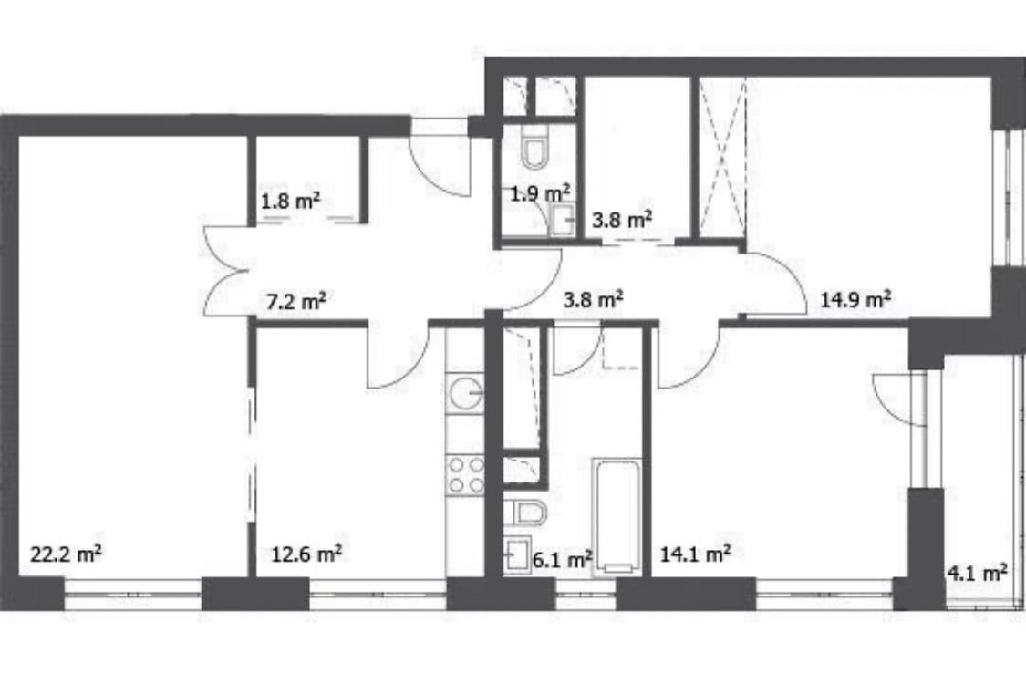
Проект

  • Местонахождение: г. Москва
  • Площадь квартиры: 92 кв. м
  • Владельцы: семья из трёх человек и кролик

Прихожая

Напольное покрытие во всей квартире — виниловая инженерная доска. А стены покрашены полуматовой белой краской. Потолки натяжные матовые. Здесь имеются системы хранения, большая деревянная лавка и целых три зеркала.

Кухня

В кухню есть два прохода: один из коридора, а другой из гостиной. Кухонное пространство получилось весьма светлым и уютным, так как здесь большое обилие деревянных элементов. Гарнитур выбрали угловой с классическими белыми фасадами.

Фартук облицован прямоугольной плиткой, но в укладке "ёлочка". Раковину хозяйка специально расположила возле окна, так как это была её давняя мечта. На стыке кухни и гостиной установили небольшую барную стойку.

Так же здесь имеется компактная зона отдыха, которая расположилась напротив окна. Стены здесь покрасили в темный оттенок.

Столовая-гостиная

За барной стойкой попадаешь в обеденную зону, где расположилась просторная столовая группа с вместительным столом, о котором так давно мечтала хозяйка.

У стены находится угловой диван с плетеным журнальным столиком. На акцентной стене, которую оформили декоративным белым кирпичом, повесили телевизор.

Спальня

В центре спальни поставили кровать в шоколадном цвете. Стену за кроватью задекорировали полкой и своеобразной гирляндой. Напротив встал узкий комод и телевизионная зона. Шкафов здесь нет, так как всё хранение разместили в гардеробной.

Детская

В детской комнате так же преобладает светлая цветовая гамма. Главными акцентами здесь являются множество динозавров, которые фигурируют на стенах, в книгах, игрушках и тд. Наполнение комнаты стандартное, начиная от спального места и заканчивая местом для игр.

Ванная комната

Стены в ванной комнате оформили белой плиткой "кабанчик", а пол оформлен мозаикой. Главный плюс ванной комнаты — это большое окно, возле которого расположилась полноценная акриловая ванна.

Если вам понравилась статья, то не забудьте поставить лайк и подписаться, чтобы не пропустить новый материал!

Так же пишите в комментариях, что вам понравилось в этом проекте, а что вызывает сомнения.

Если вам будет интересно, то заходите на мой второй новый канал)