Добавить в корзинуПозвонить
Найти в Дзене

Дизайн и ремонт ванной комнаты: организация пространства и мебель

Пример ванной комнаты с отдельно стоящей ванной и душевой. Реальные фото Заказчики хотели сделать современную ванную комнату. Мы учли все пожелания и сделали минималистичный интерьер с активными каменными текстурами. У нас получилось настоящее место для релакса. Привет! Меня зовут Карен Карапетян, я — архитектор и интерьерный дизайнер. Мы в компании Alexander Tischler проектируем и реализуем интерьеры, а также проектируем и производим корпусную мебель. Планировка ванной комнаты Правее от гостевой спальни застройщик предполагал большую ванную комнату площадью 10 м², заказчикам такая просторная ванная была не нужна, и мы разделили ее на прачечную и санузел. После перепланировки площадь ванной уменьшилась до 7,3 м², и здесь свободно разместилась ванна, душевая и места для хранения. Дизайн ванной комнаты Здесь мы поставили отдельно стоящую ванну с напольным смесителем. Для отделки мы выбрали керамогранит с каменной текстурой, две стены оформили плиткой из той же серии, но с фактурой, напом
Оглавление

Пример ванной комнаты с отдельно стоящей ванной и душевой. Реальные фото

Заказчики хотели сделать современную ванную комнату. Мы учли все пожелания и сделали минималистичный интерьер с активными каменными текстурами. У нас получилось настоящее место для релакса.

Привет! Меня зовут Карен Карапетян, я — архитектор и интерьерный дизайнер. Мы в компании Alexander Tischler проектируем и реализуем интерьеры, а также проектируем и производим корпусную мебель.

Планировка ванной комнаты

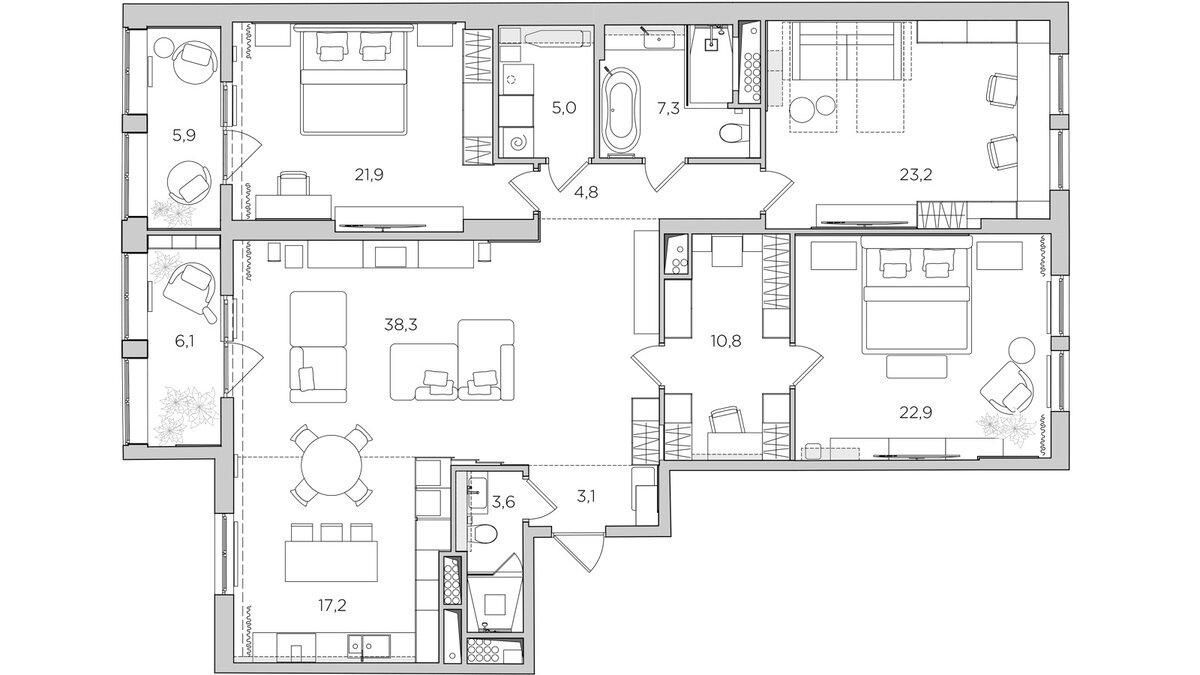
Правее от гостевой спальни застройщик предполагал большую ванную комнату площадью 10 м², заказчикам такая просторная ванная была не нужна, и мы разделили ее на прачечную и санузел.

Планировка квартиры с четырьмя комнатами
Планировка квартиры с четырьмя комнатами

После перепланировки площадь ванной уменьшилась до 7,3 м², и здесь свободно разместилась ванна, душевая и места для хранения.

Перепланировка квартиры
Перепланировка квартиры

Дизайн ванной комнаты

Здесь мы поставили отдельно стоящую ванну с напольным смесителем. Для отделки мы выбрали керамогранит с каменной текстурой, две стены оформили плиткой из той же серии, но с фактурой, напоминающей волны. Чтобы подчеркнуть фактуру плитки, мы сделали потолочную подсветку над ванной и душевой. Мебель и сантехнику выбрали только в двух цветах — черном и белом, чтобы комната была минималистичной.

Отдельно стоящая ванна с напольным смесителем
Отдельно стоящая ванна с напольным смесителем

В отдельно стоящей ванне сложно полноценно принять душ, поэтому мы сделали большую душевую справа от раковины, не стали ограждать ее дверью, так как ее длины 1,5 метра хватит для того, чтобы капли не вылетали на пол.

У всех отдельно стоящих ванн сифон расположен снизу, и канализационная труба должна монтироваться в пол, из-за этого надо делать подиум или поднимать уровень пола всей комнаты. Пол в нашей ванной комнате на том же уровне, как в остальной квартире, потому что мы немного схитрили: сами сделали отверстие в борту ванны с невидимой стороны и провели канализацию по стене.

Мебель для ванной

Мы смонтировали подвесную столешницу из искусственного камня с накладной раковиной, а ниже разместили подвесную тумбу длиной 160 см с ящиками для хранения. Столешницу и тумбу мы смонтировали на металлических кронштейнах, которые установили еще на этапе ремонта, с ними мебель выдержит большую нагрузку.

Акриловая столешница с накладной раковиной
Акриловая столешница с накладной раковиной

Над раковиной мы смонтировали зеркальный шкаф с розетками для зарядки бритв, зубных щеток и других девайсов. Под зеркальным шкафом есть подсветка.

Подсветка в зеркальном шкафу
Подсветка в зеркальном шкафу

В душевой мы смонтировали нишу для гелей и шампуней и отделали её черным искусственным камнем. Также использовали место над инсталляцией и установили там небольшой распашной шкаф. Здесь, как и в других проектах, мы сделали мебель из МДФ в эмали, этот материал отлично переносит влажность и не деформируется.

Распашной шкаф из МДФ
Распашной шкаф из МДФ

Мы сделали парадную ванную комнату, которая по красоте не уступает другим помещениям в этой квартире. А для решения бытовых вопросов выделили отдельную прачечную.

Мы заранее продумываем, как будет устроен быт наших заказчиков, и организуем для них комфортные и функциональные пространства, какие — читайте в этой статье.