Добавить в корзинуПозвонить
Найти в Дзене

Дом из клееного бруса с запоминающимся фасадом и открытой террасой

Продолжаем писать про домовладения на выставке Open Village, в возведении которых принял участие «Королевский завод свай». Эта статья посвящена проекту компании NORD HOUSE KIROV (Норд Хаус Киров). Мы смонтировали свайно-винтовой фундамент под террасу их дома «Расмус» и под отдельно стоящий навес на два автомобиля. В этой статье подробно рассказываем про дом и террасу. Первое, на что обращаешь внимание при взгляде на дом, — необычное оформление центральной части фасада. Она выполнена в стиле фахверк и имеет панорамное остекление и асимметричную крышу. Деревянные элементы выкрашены в акцентный цвет, который застройщик назвал «махагон». Это архитектурное решение сделало дом запоминающимся и выделило среди других. Брус для строительства домов компания NORD HOUSE изготавливает самостоятельно. У нее свои лесосеки, лесозаготовительная техника, лесопильное оборудование, сушильный комплекс и деревообрабатывающее оборудование. Компания производит профилированный и клееный брус и стеновые комплек

Продолжаем писать про домовладения на выставке Open Village, в возведении которых принял участие «Королевский завод свай». Эта статья посвящена проекту компании NORD HOUSE KIROV (Норд Хаус Киров). Мы смонтировали свайно-винтовой фундамент под террасу их дома «Расмус» и под отдельно стоящий навес на два автомобиля. В этой статье подробно рассказываем про дом и террасу.

Дом «Расмус» от NORD HOUSE KIROV, главный фасад
Дом «Расмус» от NORD HOUSE KIROV, главный фасад

Первое, на что обращаешь внимание при взгляде на дом, — необычное оформление центральной части фасада. Она выполнена в стиле фахверк и имеет панорамное остекление и асимметричную крышу. Деревянные элементы выкрашены в акцентный цвет, который застройщик назвал «махагон». Это архитектурное решение сделало дом запоминающимся и выделило среди других.

  • Общая площадь: 158 м2
  • Жилая площадь: 114 м2
  • Этажей: 1
  • Спален: 3
  • Санузлов: 2
  • Терраса: 25 м2
  • Фундамент: железобетонная плита
  • Материал стен: клееный брус

Брус для строительства домов компания NORD HOUSE изготавливает самостоятельно. У нее свои лесосеки, лесозаготовительная техника, лесопильное оборудование, сушильный комплекс и деревообрабатывающее оборудование. Компания производит профилированный и клееный брус и стеновые комплекты, проектирует и строит деревянные дома.

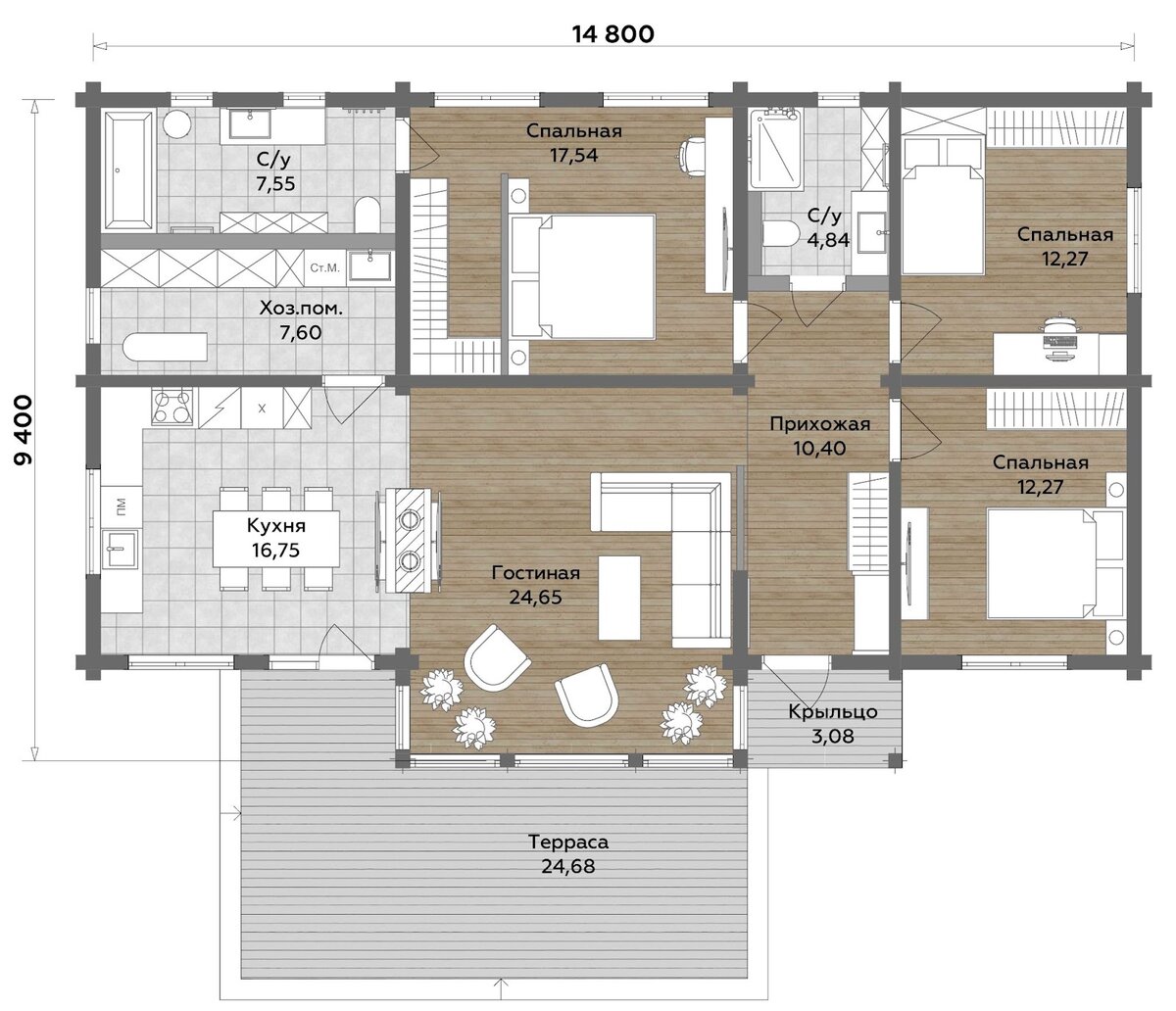
Планировка дома, источник — сайт openvillage.ru. В конце статьи мы добавили ссылку на видео с интерьером дома, размещенное в группе компании-застройщика в социальной сети ВКонтакте
Планировка дома, источник — сайт openvillage.ru. В конце статьи мы добавили ссылку на видео с интерьером дома, размещенное в группе компании-застройщика в социальной сети ВКонтакте

Дом подойдет для постоянного проживания семьи из трех-четырех человек. Прихожая дома не отделена дверью от основной зоны и плавно переходит в распределительный холл. Из него можно попасть в общественную и жилую зону и гостевой санузел.

Жилая зона включает две детских и мастер-спальню. У нее интересные расположение гардероба и санузла — за изголовьем кровати. Благодаря такому решению:
— гардеробная освещается естественным светом;
— удалось обойтись без двери в гардеробную, не сделав ее при этом проходной;
— с кровати не открывается вид на ряд из трех дверей, как бывает в непродуманных проектах.

Общественная зона состоит из кухни-столовой и светлой гостиной с панорамными окнами. Это те самые окна, которые формируют акцентный элемент на фасаде. Кухню и гостиную разделяет необычный предмет интерьера — двусторонний камин. К кухне примыкает просторное хозяйственное помещение, где хватит места и для постирочной, и для кладовой. Из кухни можно выйти на террасу, где размещена обеденная группа. Это удобно, потому что можно быстро накрыть стол на террасе, подать блюда, убрать посуду.

План фундамента дома с террасой
План фундамента дома с террасой
План свайного поля террасы: 17 свай диаметром 89 мм и длиной 2,5 м
План свайного поля террасы: 17 свай диаметром 89 мм и длиной 2,5 м

Фундамент дома и крыльца — железобетонная плита, крыльцо примыкает к дому через деформационный шов. Фундамент террасы — винтовые сваи. Террасу на сваях можно пристроить к дому на бетонной плите как на этапе строительства дома, так и уже в процессе его эксплуатации. Вопрос стыковки бетонного и свайного фундаментов мы на своем канале подробно рассматривали.

Терраса в доме — полностью открытая, без стен и крыши. Так она не препятствует попаданию в дом солнечного света, но в знойный день на ней будет некомфортно. Для защиты от дождя и солнца можно разместить на террасе большие зонты, какие используют на летних площадках кафе.

А как вам решение с открытой террасой? Подойдет такое для вашего региона? Пишите свое мнение в комментариях. И подписывайтесь на наш канал — в следующей статье мы расскажем про навес из клееного бруса с хозблоком, который также размещен на этом участке.

Видео с планировкой дома:

Видео от NORD HOUSE Дома, коттеджи из клееного бруса