Найти в Дзене

Межкомнатные перегородки своими руками из газоблоков(сибита)

Всем привет, в этой статье расскажу как делал межкомнатные перегородки своими руками в своем доме, дом у меня из газоблоков, на полу залита бетонная плита, сверху постелил пеноплекс 30 мм, под теплый пол, если вы собираетесь делать перегородки из газоблоков, надеюсь информация будет полезна. Разметка бедующих стен Первое что нужно сделать это нарисовать планировку, очень важный момент, мы с женой перерисовывали ее раз 10, итоговый вариант я перенес в скетчап, вот что получилось: Далее приступаем к разметке, для удобства купил лазерный дальномер, обошелся он мне в 1990 руб, было это 4 месяца назад, сейчас посмотрел он уже 2690 стоит, цены растут нереально. Прсле для наглядности выставляем первый ряд и смотрим все ли устраивает. Далее вырезаем пеноплекс по разметке чуть шире чем толщина газоблоков: Затем для гидроизоляции постелил рубероид: Первый ряд перегородок Первый ряд ставим на пескоцементную смесь 2-3 см., между блоками на клей для плитки, горизонталь проверял пузырьковым уровн
Оглавление

Всем привет, в этой статье расскажу как делал межкомнатные перегородки своими руками в своем доме, дом у меня из газоблоков, на полу залита бетонная плита, сверху постелил пеноплекс 30 мм, под теплый пол, если вы собираетесь делать перегородки из газоблоков, надеюсь информация будет полезна.

Разметка бедующих стен

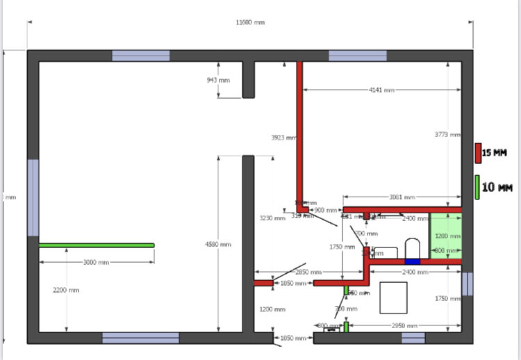
Первое что нужно сделать это нарисовать планировку, очень важный момент, мы с женой перерисовывали ее раз 10, итоговый вариант я перенес в скетчап, вот что получилось:

План первого этажа, по итогу немного изменили его
План первого этажа, по итогу немного изменили его

Далее приступаем к разметке, для удобства купил лазерный дальномер, обошелся он мне в 1990 руб, было это 4 месяца назад, сейчас посмотрел он уже 2690 стоит, цены растут нереально.

Прсле для наглядности выставляем первый ряд и смотрим все ли устраивает.

Далее вырезаем пеноплекс по разметке чуть шире чем толщина газоблоков:

Вырезал пеноплекс под бушующую перегородку
Вырезал пеноплекс под бушующую перегородку

Затем для гидроизоляции постелил рубероид:

Это будет спальня
Это будет спальня

Первый ряд перегородок

Первый ряд ставим на пескоцементную смесь 2-3 см., между блоками на клей для плитки, горизонталь проверял пузырьковым уровнем, а ровность ряда лазерным уровнем:

Первый ряд
Первый ряд
Спальня
Спальня

Резал блоки ножовкой по газобетону,

следуюшие ряды ставил на клей для плитки, каждый третий ряд присверливал к стене на вот такие подвесы:

-6

Дверные проемы

На проемы ставил перемычки газобетонные, кроме одного где толщина стены 15 см, такой толщины не было перемычек, высоту проема делал 215 см, с учетом что будет стяжка, в ряд не попал делал так присверливал к стенкам деревянную доску, на нее отрезанные в размер блоки и на них перемычку, как на фото :

Сверху лежит перемычка
Сверху лежит перемычка

Завршение

Последний ряд до потолка делаем не в плотную оставляем зазор 2-3 см. Который потом запениваем монтажной пеной.

У меня получился ряд высотой 10 см, пилить его нажевкой я бы замучился, покупать сабельную пилу не хотелось, пилил дисковой пилой диском по дереву, нормально пилится только очень пыльно, пилил на улице в респираторе.

Вот и все, наши межкомнатные перегородки готовы, на все про все у меня ушло 1,5 месяца работы по вечерам, делал первый раз.

Всем кто дочитал спасибо, буду очень рад если подпишитесь, хочется уже набрать 10 подписчиков 😁