Найти в Дзене
СК Время Жить

Старт реализации индивидуального проекта в комплектации «Тёплый контур»

О проекте :⠀⠀⠀⠀⠀
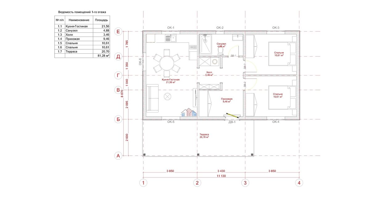
Кухня-гостиная - 21,56 м2⠀⠀⠀⠀⠀⠀⠀⠀
Спальня - 10,61 м2⠀⠀⠀⠀⠀⠀⠀⠀⠀⠀⠀⠀
Спальня - 10,61 м2
С/У - 4,88 м2⠀
Коридор - 3,46 м2⠀⠀
Прихожая - 9,46 м2
Терраса - 20,7 м2 Габариты 11,1х8,9
Площадь застройки 90,48 м2⠀⠀⠀
Полезная площадь 81,28 м2⠀⠀⠀
Подшив потолка по стропильной системе.⠀ Техническая сторона проекта:⠀⠀⠀⠀⠀⠀⠀
Фундамент: Ж/Б забивные сваи
Силовой каркас- сухой строганный пиломатериал
Утепление стен 200мм, пол/потолок/крыша 200мм 
Мембраны: Ondutiss (проклеена скотчем Eurovent )
Пол: Предчистовое покрытие ЦСП 20.
Кровля: Металлочерепица Grand Line 0,5 (свесы в скандинавском стиле)⠀⠀⠀
Окна: Пятикамерный профиль VEKA Softline 70мм.
Выход на террасу: Дверь ПВХ Входная группа VEKA Softline 70мм.
Перила и огорождения (хвоя)
Фасад: Фиброцементные панели БетЭко
Пол терраса и крыльцо: Лиственница 28мм АВ
Закладные гильзы
Кровельный вентиляционный выход
Водосточная система и пробное бурение — в Подарок!

О проекте :⠀⠀⠀⠀⠀
Кухня-гостиная - 21,56 м2⠀⠀⠀⠀⠀⠀⠀⠀
Спальня - 10,61 м2⠀⠀⠀⠀⠀⠀⠀⠀⠀⠀⠀⠀
Спальня - 10,61 м2
С/У - 4,88 м2⠀
Коридор - 3,46 м2⠀⠀
Прихожая - 9,46 м2
Терраса - 20,7 м2

планировка
планировка

Габариты 11,1х8,9
Площадь застройки 90,48 м2⠀⠀⠀
Полезная площадь 81,28 м2⠀⠀⠀
Подшив потолка по стропильной системе.

Техническая сторона проекта:⠀⠀⠀⠀⠀⠀⠀
Фундамент: Ж/Б забивные сваи
Силовой каркас- сухой строганный пиломатериал
Утепление стен 200мм, пол/потолок/крыша 200мм 
Мембраны: Ondutiss (проклеена скотчем Eurovent )
Пол: Предчистовое покрытие ЦСП 20.
Кровля: Металлочерепица Grand Line 0,5 (свесы в скандинавском стиле)⠀⠀⠀
Окна: Пятикамерный профиль VEKA Softline 70мм.
Выход на террасу: Дверь ПВХ Входная группа VEKA Softline 70мм.
Перила и огорождения (хвоя)
Фасад: Фиброцементные панели БетЭко
Пол терраса и крыльцо: Лиственница 28мм АВ
Закладные гильзы
Кровельный вентиляционный выход
Водосточная система и пробное бурение — в Подарок!