Добавить в корзинуПозвонить
Найти в Дзене
Дизайн для жизни

Две квартиры в одну яркую!

Проект двух квартир, объединенных в одну 85 м2 - для семьи с двумя мальчишками-подростками. Семья выросла из существующих квадратных метров и решила переехать в новую квартиру, которая должна соответствовать новым требованиям в дизайне и удобстве для каждого члена семьи. Мы законно объединили 2 квартиры, разделили на две зоны : родительскую и детскую. Из маленькой 29,5 м2 предусмотрели все необходимое для родителей. Мастер-спальня, гардеробная и свой санузел. Другая часть квартиры под прихожую, кухню-гостиную и две детские. Прихожая суперфункциональная, несмотря на её размер. В нише за шпонированной панелью скрыты системы хранения. Вся гамма интерьера в теплых натуральных терракотовых и персиковых оттенках. На стенах декоративная штукатурка "под шёлк".
Фурнитура в матовой латуни поддерживает атмосферу.
Шкаф для верхней одежды неспроста подвесной, этот приём очень удобен для расположения обуви с улицы. Напольное покрытие в этом проекте не боится влаги, ударопрочен и тактильно приятен

Проект двух квартир, объединенных в одну 85 м2 - для семьи с двумя мальчишками-подростками.

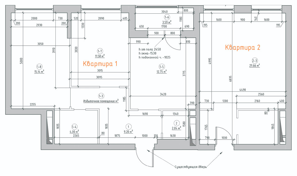
Обмерочный план
Обмерочный план
3Д вид квартир ДО
3Д вид квартир ДО

Семья выросла из существующих квадратных метров и решила переехать в новую квартиру, которая должна соответствовать новым требованиям в дизайне и удобстве для каждого члена семьи.

Мы законно объединили 2 квартиры, разделили на две зоны : родительскую и детскую. Из маленькой 29,5 м2 предусмотрели все необходимое для родителей. Мастер-спальня, гардеробная и свой санузел. Другая часть квартиры под прихожую, кухню-гостиную и две детские.

Планировочное решение
Планировочное решение

Прихожая суперфункциональная, несмотря на её размер. В нише за шпонированной панелью скрыты системы хранения.

Вся гамма интерьера в теплых натуральных терракотовых и персиковых оттенках. На стенах декоративная штукатурка "под шёлк".
Фурнитура в матовой латуни поддерживает атмосферу.
Шкаф для верхней одежды неспроста подвесной, этот приём очень удобен для расположения обуви с улицы.

Напольное покрытие в этом проекте не боится влаги, ударопрочен и тактильно приятен - кварцвинил или ламинат spc.

Сразу из прихожей проходим в открытую кухню-гостиную. Она очень небольшая по площади и мы долго проектировали её до нужных нам пожеланий. Это было важно для нашей заказчицы, которая часто готовит на кухне, то есть нужна рабочая зона для готовки и также предполагался комфортный отдых, семейные обеды и ужины.

-6

В этой зоне есть даже лоджия кота, у него свой шкаф с его принадлежностями, когтеточка и лежанка.

Детских комнат всего две. У каждого сына по своей комнате, которые отражают их интересы и стиль жизнь. В одной из детских подростков мы создали уютное и функциональное пространство. Кровать на подиуме - можно использовать как место для отдыха с друзьями, чтения книг или прослушивания музыки.

У детей есть свой санузел - графичный и геометричный за счёт мозаичной плитки в форме сот. Но в то же время яркий из-за оранжевой затирки. Душевая большая, так что можно не опасаться за брызги.

Для родителей мы предложили создать благородный интерьер в их спальне. Фреска с золотой росписью на стене, сочетание дерева и теплых терракотовых оттенков придают спальне элегантности. Большое круглое зеркало за кроватью создает дополнительную глубину интерьера.

Фишкой этой спальни - бар возле окна, который может служить и рабочей зоной, и местом для утреннего кофе.

Гардеробная за тоннированным стеклом с подсветкой позволит хранить сумки и красивую обувь, где можно найти все.

Родительский санузел такой же оригинальный и с необычной плиткой.

Вся семья яркая, интересная и обожает путешествия.
Интерьер не должен быть монохромным и блеклым.
Яркие акценты, тепло дерева и домашний уют - вот что хотят видеть наши любимые заказчики!
Уже идет реализация этого проекта и вскоре мы покажем, что получилось.
Не забудь подписаться!)