Добавить в корзинуПозвонить
Найти в Дзене

Лучший двухэтажный дом 10 на 10 с террасой.

Если говорить точнее, то с террасой, четырьмя спальнями, гардеробными, котельной и кладовыми - в доме есть все для комфортного проживания большой семьи и при этом его можно построить на достаточно скромном участке шириной от 16 метров. 204-й проект самый популярный дом у наших Клиентов, которые тем не менее зачастую стремятся внеси в него свои изменения - заменить материал стен, добавить метр в глубину, но в любом случае выбирают именно его за превосходное сочетание практичности и относительной компактности. Планировка. На первом этаже есть все, что нужно для дневной и технической зон - полноценная котельная под любой котел, гостевой санузел с небольшой душевой и пара кладовых - на кухне и под лестницей, которая может быть задействована в качестве гардеробной для спальни. По поводу спальни на первом этаже - она может быть незаменима для ваших пожилых родителей, ее можно использовать как гостевую или в крайнем случае как рабочий кабинет. Кто знает, может и вам со временем не захочется
Оглавление

Если говорить точнее, то с террасой, четырьмя спальнями, гардеробными, котельной и кладовыми - в доме есть все для комфортного проживания большой семьи и при этом его можно построить на достаточно скромном участке шириной от 16 метров.

Передний фасад
Передний фасад

204-й проект самый популярный дом у наших Клиентов, которые тем не менее зачастую стремятся внеси в него свои изменения - заменить материал стен, добавить метр в глубину, но в любом случае выбирают именно его за превосходное сочетание практичности и относительной компактности.

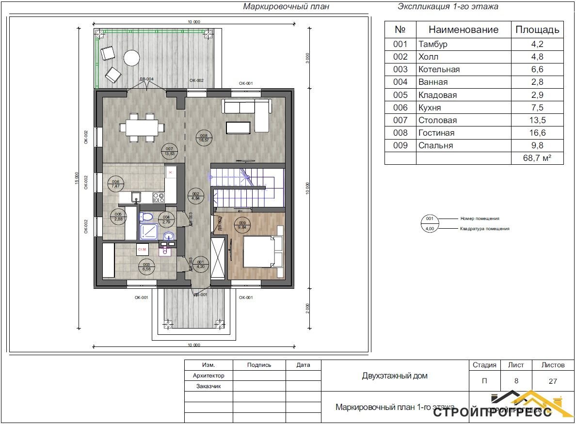
Планировка.

Первый этаж.
Первый этаж.

На первом этаже есть все, что нужно для дневной и технической зон - полноценная котельная под любой котел, гостевой санузел с небольшой душевой и пара кладовых - на кухне и под лестницей, которая может быть задействована в качестве гардеробной для спальни.

По поводу спальни на первом этаже - она может быть незаменима для ваших пожилых родителей, ее можно использовать как гостевую или в крайнем случае как рабочий кабинет. Кто знает, может и вам со временем не захочется подниматься по лестнице?

Выход на террасу осуществляется из кухни - очень удобно во время обеда и приготовления еды на свежем воздухе. Ну а кладовая на кухне - это просто подарок:)

Единственное слабое место здесь - относительно небольшая прихожая и гостиная, но чудес не бывает - наружный размер всего 10 на 10 метров.

Второй этаж.
Второй этаж.

На втором этаже у нас полноценная приватная зона с тремя спальнями. Причем здесь все идеально - детские спальни изолированы от родительской и разделены гардеробными нишами.

Родительская же спальня может похвастать собственной ванной и гардеробной комнатой.

Мокрые точки в этом проекте сосредоточены в одной зоне - это особенно важно для второго этажа - никому не хочется вести трубы канализации через гостиную.

Лестница полноценная, без забежных ступеней.

-4

Вид сзади
Вид сзади

Внешняя отделка и материалы.

По умолчанию здесь заложен газобетонный блок 40 см +облицовочный кирпич - оптимальные показатели для Москвы и более северных регионов. На Юге можно спокойно обойтись газобетоном 30 см+облицовка.

К баварской кладке мы добавили имитацию лепнины - получилось очень нарядно и на наш взгляд - это один из самых красивых подобных проектов.

Вид на террасу
Вид на террасу

В целом проект S-204 - пример прекрасно сбалансированного дома, который не вызовет лишних трудностей (затрат) при строительстве и обеспечит комфорт даже для семьи из 8 человек.

Этот проект на нашем сайте - https://stroyprogress-belgorod.ru/projects/2146

Посмотреть состав проекта вы можете здесь - https://dzen.ru/media/stroyprogress31/sostav-arhitekturnogo-proekta-stroiprogress31-na-31102022-636128773694f30c57010a70